
Za tenisem, fotbalem a tak dál. I vesnické sportoviště může být od architektů
Uprostřed Studence v Podkrkonoší vzniká ostrov současné architektury. Tvoří ho tam ateliér Chrama. Architekti pro obec navrhli nové zázemí pro tenisty, fotbalisty, lyžaře, atlety.
EARCH.CZ , 14. 1. 2025
Ateliér Chrama proměňuje Studenec a do sotva dvoutisícové vesnice v podkrkonoší vnáší současnou architekturu. V minulém roce bylo slyšet o jejich přístavbě k tamní základní a mateřské škole, realizace totiž obdržela nominaci na Českou cenu za architekturu a v soutěži Grand Prix Architektů získala cenu v kategorii Novostavba.
Chrama má ale ve Studenci realizace rovnou tři, mimo školy ještě dvě pro sport. Jedná se o zázemí pro tenisový klub a zázemí pro fotbalové hřiště. Obojí je od budovy základní a mateřské školy vzdálené jen kousek. Společně tedy tvoří pomyslný ostrůvek současné architektury. A vzhledem k tomu, že má Studenec dost roztroušenou strukturu zástavby, tak také společenské centrum obce, kde se mohou scházet žáci, sportovci i fanoušci.

Studenec byl vždycky obec sportovní. Fotbalový klub SK Studence zde vznikl už v roce 1923 a brzy kromě fotbalistů sdružoval taky atlety, orientační běžce nebo lyžaře. Blízkost Krkonoš ostatně k běžkování nebo sjezdování vybízí.
Tenisový ani sportovní klub ovšem ve Studenci dlouho neměly důstojná zázemí. Kurty a fotbalové hřiště doprovázely jen provizorní stavby, ze kterých čas sice udělal objekty dlouhodobé, ale ne důstojné. Teď je už vše jinak, vznikly tady dvě novostavby, které jsou funkční i reprezentativní.
Zázemí pro tenisty
Když se na kurtech nehraje, vypadá tenisové zázemí jako drobný domeček se sedlovou střechou, do kterého přes perforovanou plechovou fasádu nejde skoro ani vidět. Podle architektů je to způsob, jak stavbu ochránit proti vandalství, kterým trpělo zázemí původní.
Fasáda se však dá otevírat, odhalí se tak velkoformátové prosklení, přes které je možné tenis sledovat z tepla klubovní místnosti. Součástí je také kuchyňka, šatna a sociální zázemí se sprchou. To vše na pouhých 25 metrech čtverečních.

Zázemí pro fotbalisty, atlety, lyžaře i fanoušky
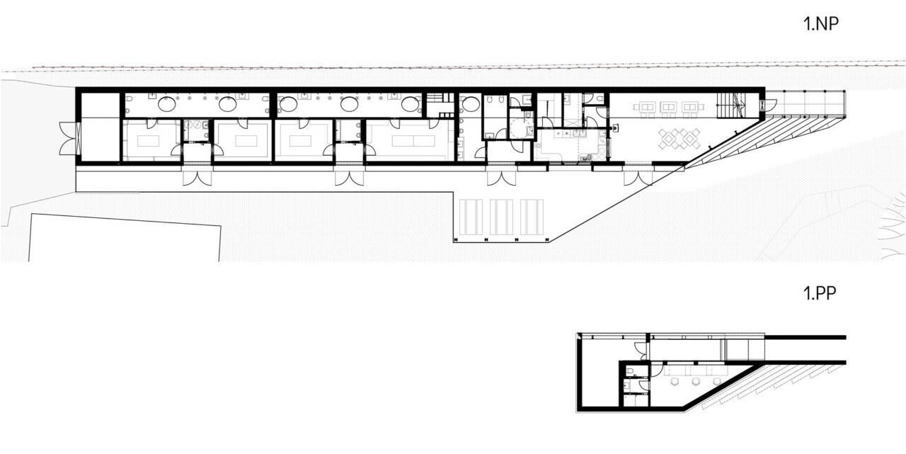
Zázemí u sousedního fotbalového hřiště je stavba větší. Neslouží totiž jen fotbalové sekci klubu, ale celému SK Studenec. Architekti z Chrama objekt navrhli jako podlouhlou hmotu, která studenecký sportovní areál – jehož součástí je ještě tělocvična, atletické hřiště a hřiště s umělým trávníkem – funkčně odděluje od okolní zástavby rodinných domů.
Více k tématu
Budova při fotbalovém hřišti má jakési dvě provozní části. Směrem dál od hřiště jsou umístěny šatny s hygienickými zázemími. Naopak blíže hřišti – aby na něj byl výhled – architekti situovali prostory klubovny. Pro diváky nechybí okénko s občerstvením, u kterého se dá posedět na kryté terase. Padající góly se ale ještě lépe pozorují z vyvýšené tribuny, jejíž kovová konstrukce hmotu celého objektu zázemí příjemně graduje a zakončuje.

- Autoři: Martin Junek, Adam Cigler
- Ateliér: Chrama
- Země: Česká republika
- Město: Studenec
- Realizace: 2018 (zázemí tenisového klubu), 2021 (zázemí sportovního klubu)
- Zastavěná plocha: 25 m² (zázemí tenisového klubu), 1220 m² (zázemí sportovního klubu)
- Investor: Obec Studenec
- Zhotovitel: Stavební společnost Hostinné s.r.o. (zázemí sportovního klubu)
- Fotograf: Tomáš Slavík