
Zbrojnice dobrovolných hasičů Krásná Studánka v Liberci slouží také ke společenským akcím
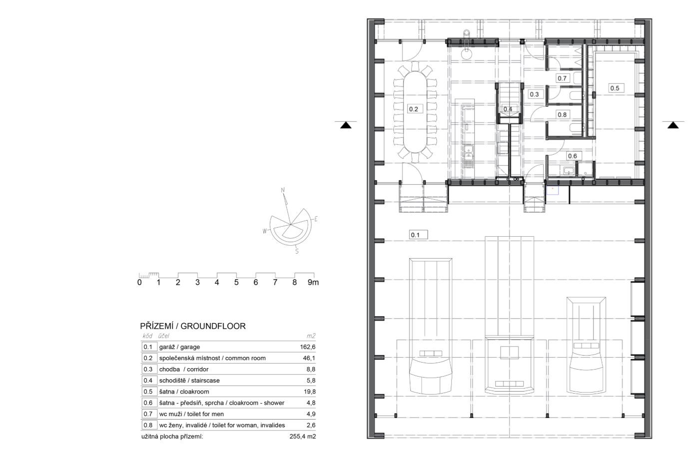
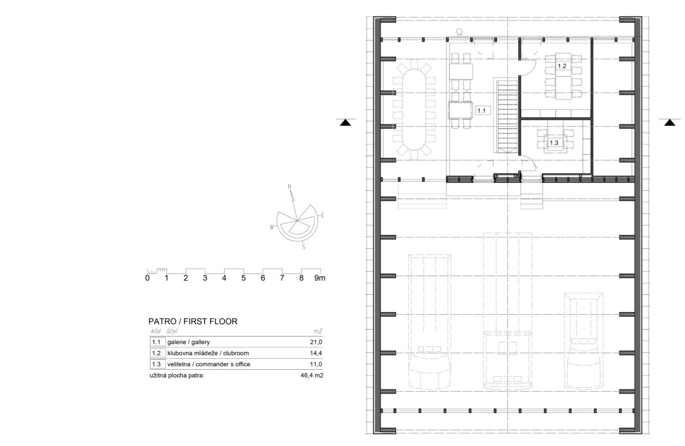
Dobrovolní hasiči z liberecké městské části Krásná Studánka se po dlouhých letech dočkali zbrusu nové hasičské zbrojnice, kterou navrhl jeden z členů jednotky sboru, architekt Vojtěch Šrut. Hasičská zbrojnice současně představuje jedinou veřejnou budovu v celé Krásné Studánce, a proto má velký význam také pro všechny místní obyvatele. Při návrhu stavby proto bylo důležité, aby zbrojnice mohla sloužit ke společenským akcím a také jako volební místnost. Otevřená dispozice proto kromě garáže a velitelny poskytuje také víceúčelovou místnost i klubovnu mládeže.
Vojtěch Šrut Architekt , 16. 4. 2019
- Autoři: Vojtěch Šrut
- Země: Česká republika
- Generální dodavatel: TOMIVOS s.r.o.
- Město: Liberec - Krásná Studánka
- Ulice, číslo: Dětřichovská, 339
- Suma: 14 000 000.00
- Měna: CZK
- Datum projektu: 2014
- Realizace: 2018
- Užitná plocha: 302.00m2
- Zastavěná plocha: 287.00m2