Architektura / rodinné domy

Život na vodě

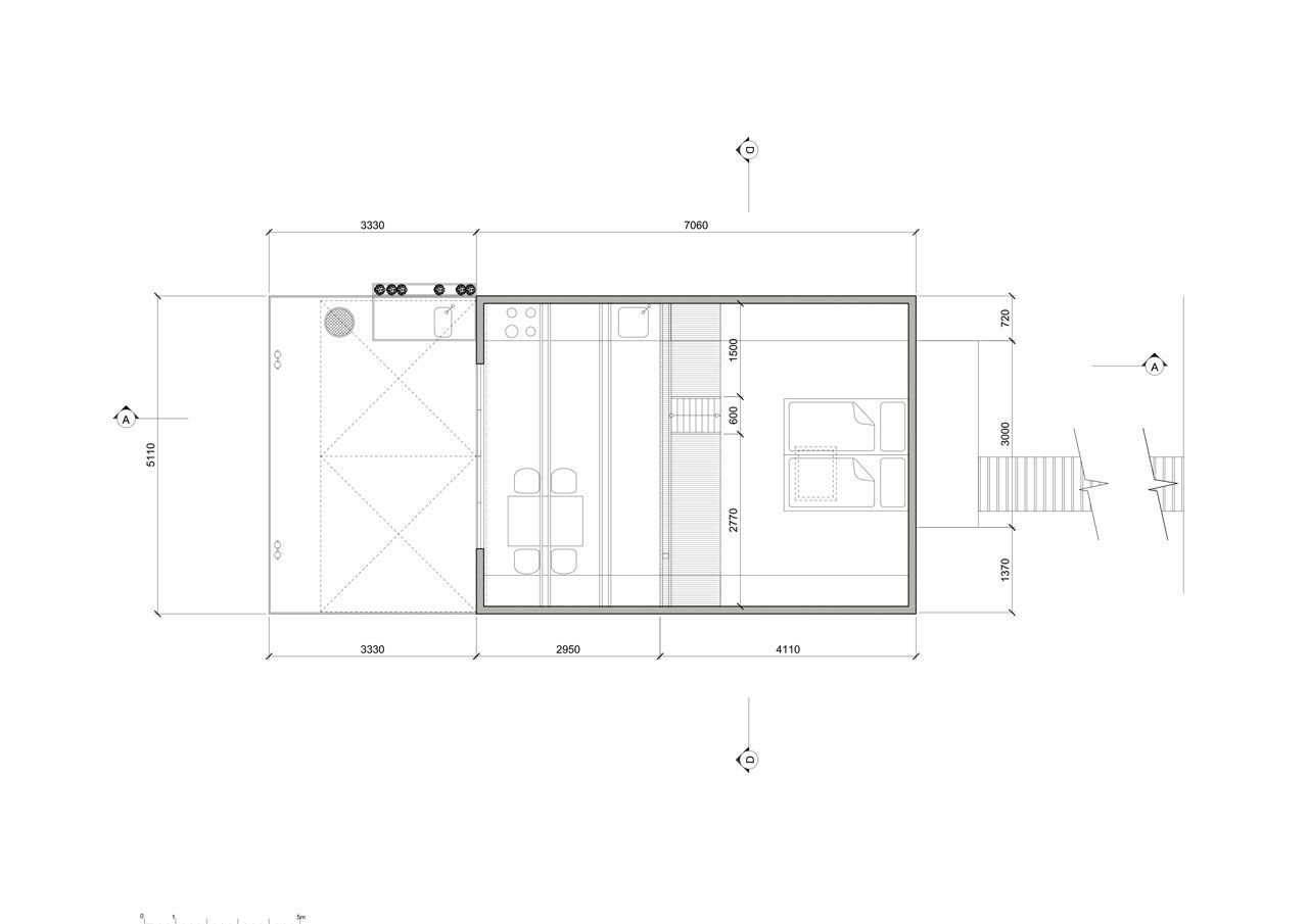
Je jen o málo větší, než sousedící garáže pro lodě kotvící ve vltavské zátoce… Žádný člun se zde ale neukrývá, jde o obytný prostor, místo k bydlení. Majitel tohoto hausbótu, dobrodruh a cestovatel, toho jistě zažil a viděl mnoho, ale uklidňující pohled na hladinu řeky přímo z obýváku má určitě i pro něj stále neopakovatelné kouzlo.

DDAANN , 12. 9. 2016

  • Autoři: Daniel Baudis, Daniel Rohan
  • Ateliér: DDAANN
  • Země: Česká republika
  • Realizace: 2014
  • Město: Praha 5 - Smíchov
  • Datum projektu: 2014
  • Realizace: 2014
  • Užitná plocha: 47.00m2
  • Foto ©: BoysPlayNice, Jan Vondrák
  • autor: DDAANN *
  • publikováno: * 12. 9. 2016
  • zdroj: * Autorská zpráva

Klíčová slova:

DDAANN hausbót řeka Vltava Smíchov

Mohlo by vás zajímat

Generální partner
Hlavní partneři