B

Bambusový les - V studio

Lokalita tohoto projektu je velmi unikátní – jedná se o střechu velikého nákupního centra. Klient si přál na tomto místě postavit malou budovu, ve které bude moci odpočívat a scházet se s přáteli. Objekt se nachází v hlavní obchodní čtvrti města. Celé okolí je proto velmi rušné.

Návrh vychází z těchto jedinečných podmínek – vytváří místo, které je naprosto odlišné od hektického okolí. Snahou bylo docílit toho, aby se návštěvníci pro průchodu hlučnými a rušnými ulicemi ocitli v čistém a klidném prostoru, který silně kontrastuje se svým okolím.

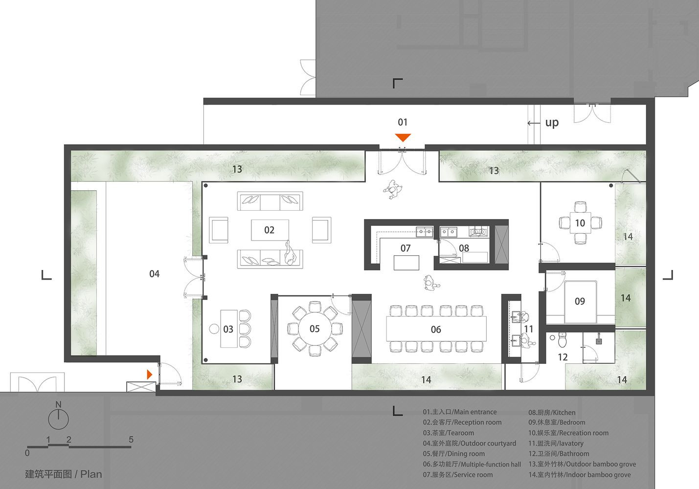
Projekt se nachází na jihovýchodní straně střechy. Jedná se o prostor ve tvaru písmene U, který je obklopen místnostmi s různým využitím. Novostavba nemá velké rozměry, celkově na zastavěné ploše 220 metrů čtverečních poskytuje o 320 metrů čtverečních užitné plochy. Prostor působí velmi jednoduše. Kubická hmota byla vložena dovnitř prostoru ve tvaru U, zatímco jeho otevřenou stranu uzavírá stěna zajišťující soukromí. Mezi novou stavbou a zdí je ponechána volná plocha pro dvůr s terasou, ze kterých vyrůstají bambusy a vytvářejí tak dojem, že budova je skrytá v bambusovém lese.

Světlo, sněhově bílá barva a zeleň bambusů představují hlavní prvky prostoru. Nádvoří, terasa a světlíky nestírají pouze hranici mezi interiérem a exteriérem, ale zároveň umožňují slunečnímu světlu vnikat ze všech stran až do vnitřku budovy. Bílá barva sjednocuje všechny prvky a materiály interiéru a vytváří tak atmosféru abstraktního prostoru.

Bambusový les okolo objektu je metafora přírody: vytvoření představy, díky které se lidé připadají, že se nacházejí ve skutečném lese. Světlo, bílá barva a zeleň bambusů vytvářejí abstraktní éterický prostor, díky čemuž se návštěvníci cítí uvolnění a v bezpečí.

  • Autoři: Hu Quanchun
  • Ateliér: V Studio
  • Země: Čína
  • Realizace: 2017
  • Užitná plocha: 320.00m2
  • Plocha pozemku: 220.00m2

Související architekti

Související ateliéry a firmy

Generální partner
Hlavní partneři