Byt Holešovice II

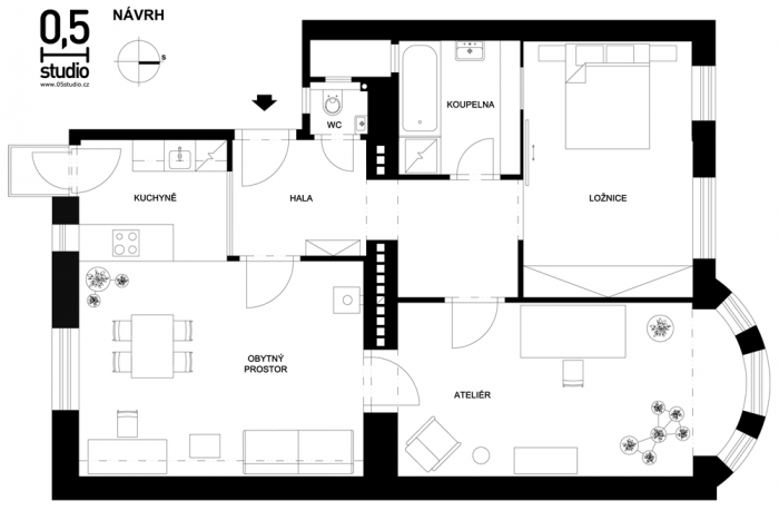
Samotný byt se nachází v činžovním domě z 30. let a je součástí bloku bytových domů v klidné části Holešovic. Požadavkem klienta bylo vytvořit obytný prostor s kuchyní, ložnici a ateliér, který v budoucnu bude sloužit jako dětský pokoj. Důležitou roli při návrhu hrála návaznost na atmosféru místa. Hlavním požadavkem investora bylo přizpůsobit prostor předmětům, které si do bytu přestěhuje. Prvotním vstupem 0,5 Studia bylo typologické přehodnocení jednotlivých prostor a jejich vzájemných návazností, zejména přemístění obytné místnosti a kuchyně do prostor orientovaných na jih a zjednodušení dispozic, což obnášelo odstranění několika příček a posuny dveří.
Atmosféra bytu je spíše „utilitární“, nikoliv však ve vyprázdněném pojmu minimalismu. „Naším cílem bylo obnovit starší prvky bytu a vytvořit neutrální prostředí, které by se nabízelo jako prostor pro zabydlení“. Odlišným přístupem jsou pojaty obslužné prostory - chodby, WC, koupelny a kuchyně. Pojítkem mezi jednotlivými místnostmi se stalo přirozené denní světlo, které je důmyslně vedeno do všech částí bytu. Rekonstrukce vytvořila pozadí pro předměty, které jsou do něj vkládány. Atmosféra bytu je klidná, tlumená šedou a bílou barvou. Podlahy jednotlivých místností jsou z původních smrkových prken, které byly zbroušeny a navoskovány bílým voskem. Přiznání tmavých spár a nerovností podlahy nenuceně vytváří atmosférou časovosti. Členité obslužné prostory jsou opticky sjednoceny geometrickým obkladem v barvách šedé, bílé a modré.
Vstupní prostor je tlumeně osvětlen denním světlem skrze opálovou makrolonovou stěnu. Stěna záměrně kontrastuje s původními profilovanými dveřmi. Při jejím řešení byl zvolen jako materiál právě makrolon, nejen kvůli jeho estetickým vlastnostem, ale i z důvodu instalace velké plochy a manipulace s materiálem v objektu. Obytný prostor, orientovaný na jih do vnitrobloku, je složen ze dvou částí, kuchyně a obytného prostoru s jídelnou. Barevnost kuchyně je sladěna s šedou barvou dlažby. Skrz kuchyň je přístup na malý provozní balkon. Sám obytný prostor je formulován jako bílé pozadí pro různě barevné předměty a činnosti. Jeho pojítkem jsou police, které scelují prostor. Původně k vytápění složila kamna, která byla v obytném prostoru ponechána. Totožnou atmosféru jako obytný prostor má i ateliér. V současnosti je v něm mimo pracovního místa i „lokální prales s květinami a akváriem“. Ložnice vznikla z prostor bývalé kuchyně a malého pokoje pro služku. Je zde velká vestavěná skříň a posuvné dveře v bílé barvě. Koupelna byla zvětšena a skrze původní okno do ní prostupuje přirozené denní světlo. Kotel a pračka jsou vestavěny do skříně na míru a navazují na bílý koncept prolínající se celým interiérem.
Díky aktivnímu přístupu a osvícenosti investora při formování celého konceptu bydlení se podařilo vytvořit prostor, v němž je díky citlivé práci architektů zachována původní atmosféra. Na pozadí prostoru, zformulovaném architekty, vynikají a lehce dýchají různé předměty s rozdílnými příběhy, stářím a estetickou kvalitou, jež si investor do bytu pořídil nebo přinesl.
- Ateliér: 0,5 Studio
- Země: Česká republika
- Město: Praha 7 - Holešovice
- Realizace: 2014
- Užitná plocha: 82.00m2
Mohlo by vás zajímat





















