Byt na modré vlně

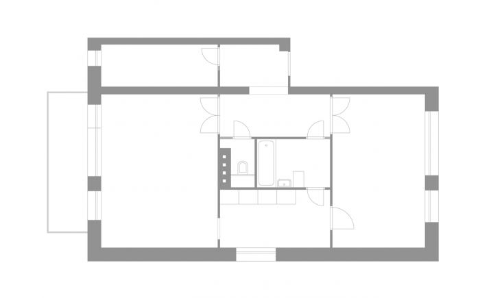
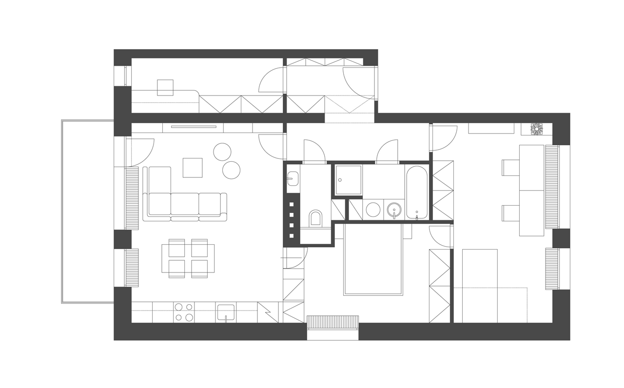
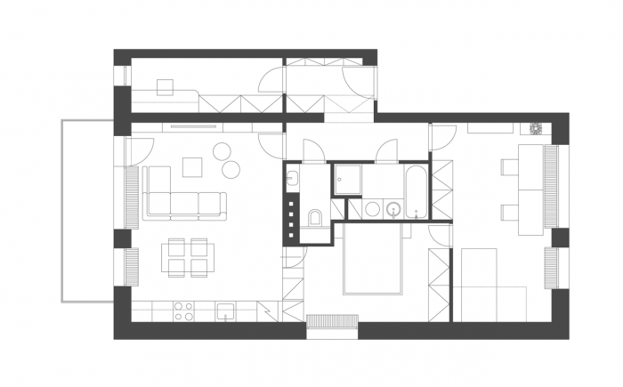
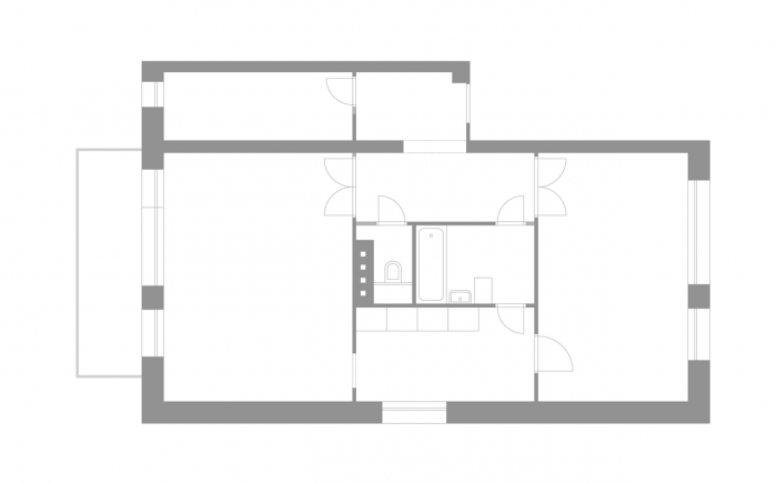
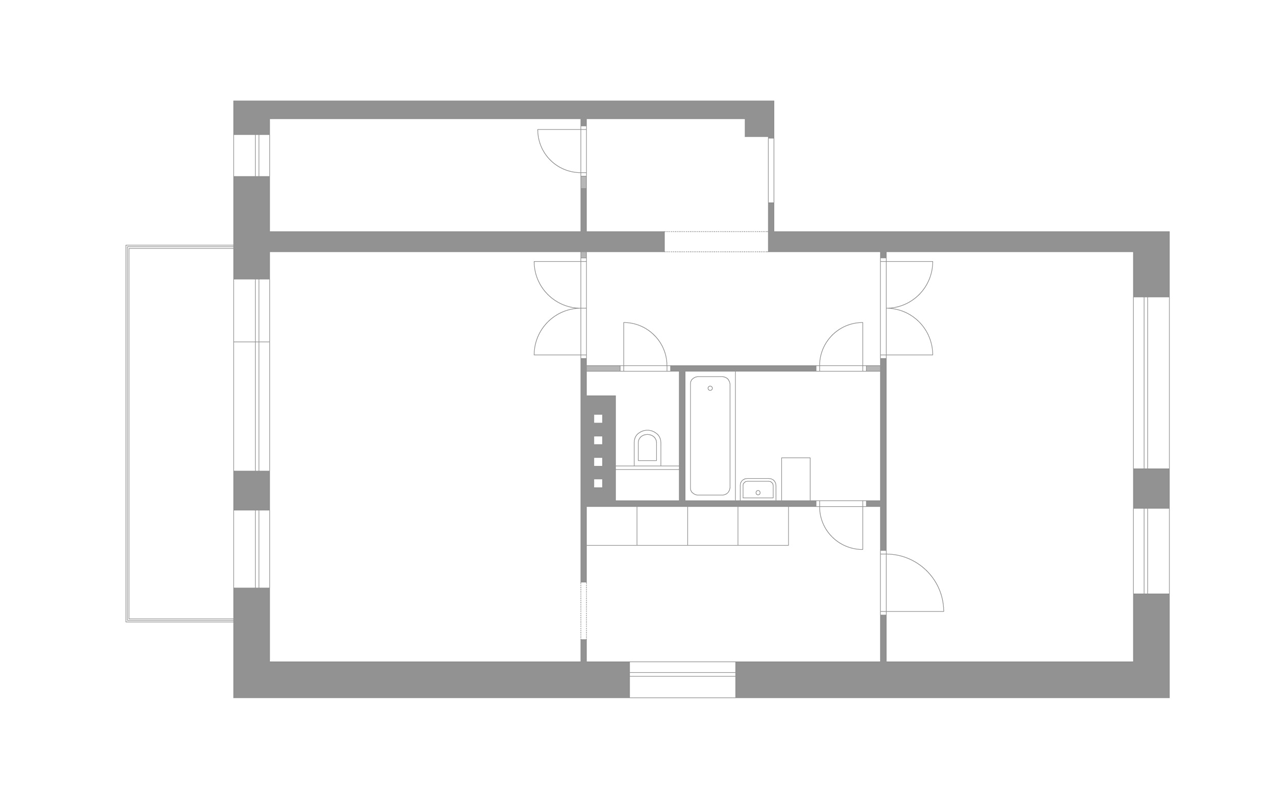
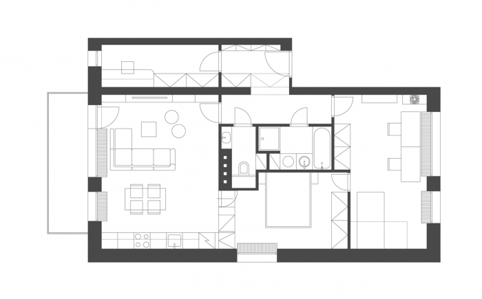
Původní byt čítal separátní kuchyni, velkorysý obývák, pokoj, koupelnu a poměrně širokou chodbu. Klienti si však přáli zanechání velkého pokoje pouze pro děti, tedy vyvstávala otázka kam umístit jejich ložnici. Řešení jsme nalezli v kuchyni. A to doslova.
Namísto stávající kuchyně je nyní ložnice, sice skromných rozměrů, takže připomíná jakousi kajutu, ale svému účelu slouží, myslíme, dostatečně. Nová kuchyně se naopak bez problémů vešla i s jídelnou do obývacího pokoje. Z ložnice je možný přímý vstup do dětského pokoje, a také skrz „tajné“ dveře zabudované v kuchyňské lince, do obývacího pokoje.
Materiály a doplňky nesou všechny stejný „punc“ a to modrou petrolejovou barvu v kombinaci s dekorem dubu. Jako společný jmenovatel si majitelé totiž zvolili námořní a cestovatelskou tematiku, proto se v bytě objevují i motivy kruhových dveřních světlíků, ručně kresleného vlnobití v dětském pokoji a také záchranných kruhů v ložnici. Stylizovaná vlna probíhá i koupelnou a WC, v podobě bílo-modré velkoformátové mozaiky.
Klienti se nechali vtáhnout do hry s tímto konceptem a po celou dobu se aktivně zapojovali i při hledání různých doplňujících dekorací jako obrazy z vyplaveného dřeva či jiných doplňků.
- Autoři: Petra Bíšková, Klára Císařovská
- Ateliér: Mooza architecture
- Země: Česká republika
- Město: Praha 5 - Košíře
- PSČ: 150 00
- Datum projektu: 2016
- Realizace: 2016
- Užitná plocha: 81.00m2
- Foto ©: Iveta Kopicová
Související projekty
Související architekti
Související ateliéry a firmy
Mohlo by vás zajímat













