Byt Žižkov

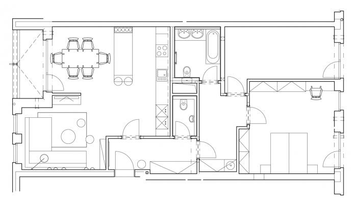
Bytová jednotka byla původně navržena jako 4+kk, tato dispozice však nebyla vyhovující, zejména kvůli malým pokojům. Vybouráním příčky mezi dvěma místnostmi se získal jednotný prostor pro ložnici s terasou a dostatečným úložným prostorem, včetně místa pro toaletní stolek.
Byt získal dispozici 3+kk s propojeným obývacím pokojem a kuchyní/ jídelnou s terasou, ložnicí, hostinským pokojem a zázemím.
Stavební úpravy zahrnuly výše zmíněné bourací práce, zazdění stavebních otvorů a doplněných dubových podlah. Dále byly přesunuty a doplněny elektroinstalace pro osvětlení a ovladače, které více vyhovovaly novému návrhu. Stejně tak byly upraveny rozvody pro kuchyňskou linku. Vzhledem k tomu, že se jednalo o novostavbu v developerském projektu, další zásahy nebyly potřeba.
Byt majitelka předala bez interiérového zařízení v základním standardu. Přála si praktickou a velkou kuchyňskou linku i dostatek úložných prostor v celém bytě. Důraz byl kladen na přírodní materiály – v tomto případě dub v provedení olej. Celkově měl byt působit lehkým a čistým designem. Barevné ladění interiéru je preferováno do klidných, čistých tónů s oblíbeným modrým odstínem.
Kuchyňská linka s ostrůvkem, knihovny, úložné prostory a zařízení ložnice bylo vytvořeno na míru v atypovém provedení. Opakovaně se používala kombinace dubu masiv a MDF bílé barvy v matném laku. Ostatní typové prvky byly záměrně vybrané od českých výrobců a návrhářů.
- Autoři: Ivana Šustrová
- Ateliér: DESIGNIST, Hezkey s. r. o.
- Země: Česká republika
- Subdodavatel: DEVOTO
- Město: Praha 3 - Žižkov
- Datum projektu: 2015
- Realizace: 2015
- Užitná plocha: 83.00m2
- Poznámka: Foto © Tomáš Dittrich
Související projekty
Související architekti
Související ateliéry a firmy
Mohlo by vás zajímat




















