Double view house

Rodinný dom je situovaný vo svahovitom teréne na úzkom pozemku v husto zastavanej časti mesta. Už tieto podmienky určili prvé mantinely architektúry. Na jednej strane sa z tohto miesta ponúka panoramatický výhľad na mesto, na strane druhej pohľad na zelenú tichú záhradu a ovocné stromy. Dom je rafinovane osadený do svahu tak, aby maximálne využil prednosti a možnosti daného priestoru.
Vďaka osadeniu domu ďalej od ulice vznikol vpredu priestor na malú záhradku s výhľadom na mesto. Výškový rozdiel medzi ulicou a úrovňou prvého podlažia je využitý na prístrešok pre autá, prikrytý zeleňou. Týmto sa podarilo vytvoriť jeden súvislý priestor, ktorý sa ťahá od prednej záhrady až do zadnej záhrady. Vďaka preskleným stenám na oboch stranách domu je celý priestor vizuálne prepojený a zeleň sa tak stáva súčasťou interiéru.
Ďalším praktickým prvkom sú presahy druhého podlažia, ktoré zabezpečujú prekrytie obidvoch terás a umožňujú tak sedenie vonku za akéhokoľvek počasia. Okrem toho slúžia aj ako efektívne tienenie zasklených plôch, ktoré tak v lete neprehrievajú interiér.
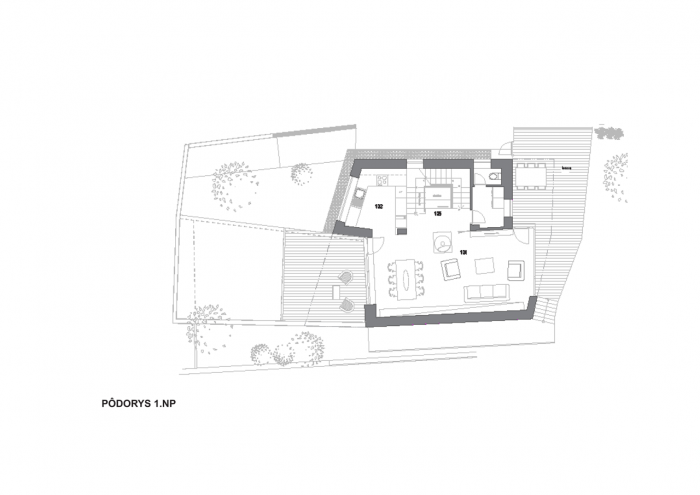
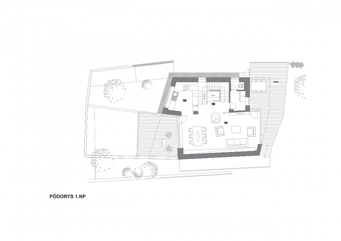
Centrom každodenného života je obývačka s originálnym kozubom. Klient mal jasnú predstavu o priestorovom členení interiéru, ktorý je nadčasový, vzdušný a príjemný. Na prvom podlaží sa nachádza obývačka, kuchyňa a jedáleň, pričom je celý priestor prirodzene prepojený s pohľadmi na prednú a zadnú zelenú záhradu. Na druhom podlaží sa nachádzajú spálne, dve detské izby s výhľadom na mesto a rodičovská spálňa s výhľadom do záhrady. Na najvyššej úrovni domu sa nachádza ešte jedna strešná záhrada s panoramatickým výhľadom na mesto, na ktorú sa dostanete popri malej súkromnej pracovni. Schodisko je ďalším výrazným prvkom tohto domu, tiahne sa odspodu nahor, pričom namiesto zábradlia sú použité praktické nábytkové kubusy.
Architektúra rodinného domu vznikala prirodzene. Základom bol priestorový koncept interiéru a tiež zohľadnenie svetelných a výškových možností pozemku. Výsledkom je nadčasový domov, z ktorého priam srší pohoda komfortného rodinného života.
- Autoři: Tomáš Šebo
- Ateliér: Architekti Šebo Lichý
- Země: Slovensko
- Město: Bratislava
- Datum projektu: 2010
- Realizace: 2013
- Užitná plocha: 221.00m2
- Zastavěná plocha: 120.00m2
- Plocha pozemku: 475.00m2
Související projekty
Související architekti
Související ateliéry a firmy
Mohlo by vás zajímat























