edit! architects - Rekonstrukce domu v Letňanech

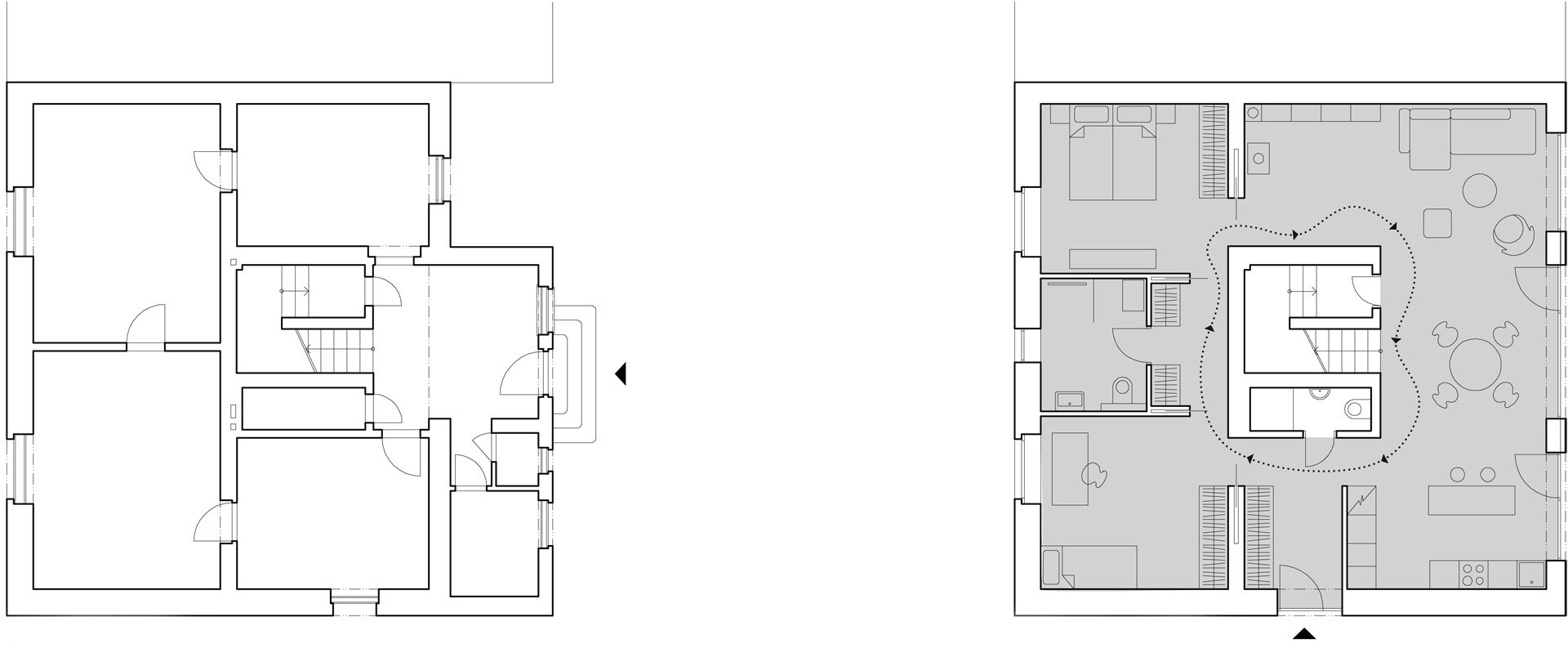
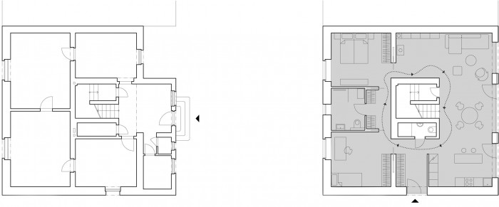
Dvojdům z první poloviny 20. století ve starých Letňanech byl navržen s klasickým uspořádáním – vstup do domu byl umístěn ze dvora tak, aby byl co nejblíže hospodářským stavením, okna obytných místností směřovala do klidné ulice. Přesunutím hlavní obytné části směrem k zahradě a zvýšení terénu na úroveň 1.np. vzniká centrální venkovní pobytový prostor, který propojuje dům se zahradním altánem (bývalou kůlnou) a garáží. Do domu se nově vstupuje z boční příjezdové cesty. Uprostřed dispozice vzniká kvádr se schodištěm obložený borovicovou překližkou, ke kterému doléhají posuvné dveře dvou rohových pokojů a koupelny. V patře jsou umístěny dva dětské pokoje s koupelnou a šatnou.
- Realizace: 2016
- Město: Praha
Mohlo by vás zajímat

Rekonstrukce domu v Letňanech od edit! architects
Foto: edit!
1/12

Rekonstrukce domu v Letňanech od edit! architects
Foto: edit!
2/12

Rekonstrukce domu v Letňanech od edit! architects
Foto: edit!
3/12

Rekonstrukce domu v Letňanech od edit! architects
Foto: edit!
4/12

Rekonstrukce domu v Letňanech od edit! architects
Foto: edit!
5/12

Rekonstrukce domu v Letňanech od edit! architects
Foto: edit!
6/12

Rekonstrukce domu v Letňanech od edit! architects
Foto: edit!
7/12

Rekonstrukce domu v Letňanech od edit! architects
Foto: edit!
8/12

Rekonstrukce domu v Letňanech od edit! architects
Foto: edit!
9/12

Původní stav
Foto: edit!
10/12

Půdorys 1NP - původní a současný stav
Foto: edit! architects
11/12

Půdorys 2NP - původní a současný stav
Foto: edit! architects
12/12