edit! architects - Rodinný dům u Prahy
Aby byla starší nemovitost po koupi obyvatelná, vyžaduje zpravidla výrazný zásah. Tento rodinný dům u Prahy v sobě koncentroval všechny nástrahy, na které u rekonstrukcí narážíme.
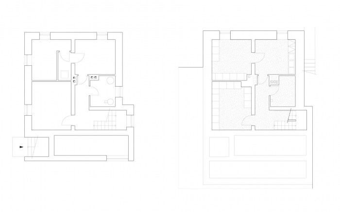
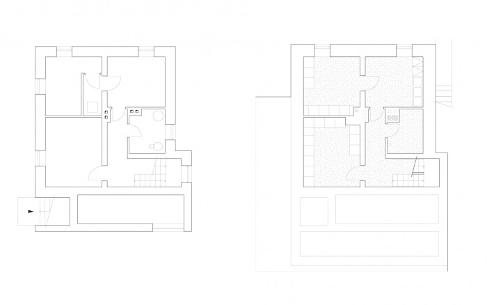
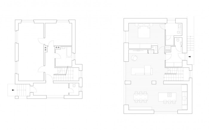
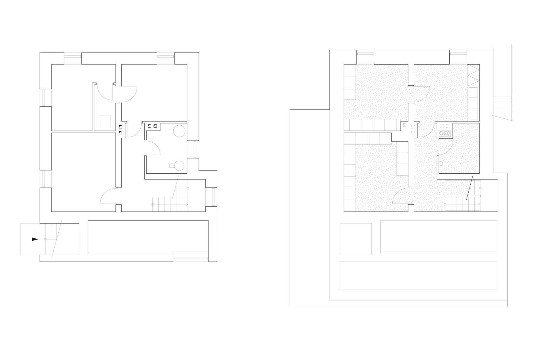
Neforemný objem v sobě ukrýval od základu nefunkční dispozici s obytnými místnostmi orientovanými na sever, navíc do ulice. Vstup byl naopak umístěn na jih, celý dům tak bylo nutné obcházet přes zahradu. Ta nebyla s interiérem domu nijak propojena – důvodem bylo nevhodné osazení objektu na terénu.
V návrhu jsme tyto problémy postupně eliminovali. Vstup do domu jsme přesunuli na severovýchodní fasádu, původní vstupní část jsme strhli a nahradili přístavbou – novou kuchyní a jídelnou. Spolu s odstraněním stanové střechy jsme tak docílili výrazně zajímavější proporce domu. Terén jsme upravili a obě tyto místnosti tak získaly přímý přístup na zahradu.
V objektu jsme navrhli nucené větrání s rekuperací, a díky dalším chytrým řešením tak klienti mohli čerpat plnou dotaci v rámci programu Zelená úsporám.
- Ateliér: edit! architects
- Realizace: 2019
- Realizace: 2019
Mohlo by vás zajímat