Huiini House

Projekt se nachází na odlehlém místě v okrajové části města s názvem Primavera forest, kde je okolní příroda jedním z faktorů, který významně ovlivňuje koncept celého projektu. Dům představuje útočiště pro ženu v penzi, která si nelibuje v oblých tvarech a liniích a naopak jí imponují jednoduché pravoúhlé hmoty. To autorům vnuklo myšlenku postavit dům z kontejnerů. A protože investorka je ženou, jež má ráda jasná a konkrétní řešení, dům “z krabic” byl pro ni lákavou představou.
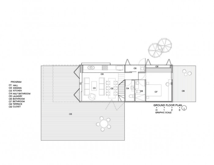
Dům se skládá ze 4 vysokých kvádrových kontejnerů o ploše 30m2. Sestavením těchto hmot vznikají tak vlastně dvě přízemí a dvě patra, mezi nimiž vzniká prostor pro terasu, a to na každé úrovni. Celková plocha domu je pak 120 m2. Jednotlivé funkční zóny jsou v rámci domu umsítěny následovně: v přízemí se nachází obývací pokoj, kuchyň, koupelna, prádelna, ložnice s koupelnou, terasou a místnost pro zahradní načiní. V patře pak nalezneme ložnici pro hosty se šatnou a koupelnou, halu s galerií, studio, terasu a obývací pokoj na výšku dvou podlaží.
Příjemnou vlastností domu je možnost zcela jej otevřít či naopak uzavřít podle momentálního přání obyvatel. Vzhledem k odlehlosti města autoři již při návrhu mysleli na potřebu ubytování případných hostů. Pro tyto účely přidali do programu ještě jeden kontejner, do kterého se pohodlně vejdou dvě mini studia s plně vybavenou koupelnou.
Modulární výstavba má mnoho výhod, jako je recyklace konstrukce, rychlost výstavby, možnost přemístění postavené stavby nebo velmi flexibilní možnosti přístavby podle momentálních potřeb. Výzvou u tohoto typu staveb je mnohdy regulace teploty. Tento objekt je řešen tak, že celý interiér je obložen tepelnou a zvukovou izolací pro udržení optimální tepelné pohody nejen v zimě, ale i v létě. Ponechání vnějšího pláště v původní kontejnerové podobě však způsobuje nesutálý pohyb kovových částí v závislosti na teplotě a rovněž hluk při dešti. Dům je vybaven pasivním systémem vytápění a brzy by měl mít i solární články.
- Autoři: Sara Tamez
- Ateliér: S+ diseño
- Země: Mexiko
- Město: La Primavera - Zapopan
- Realizace: 2013
- Užitná plocha: 148.00m2
- Poznámka: Foto © Mito Covarrubias
Související architekti
Související ateliéry a firmy
Mohlo by vás zajímat



























