Markéta Cajthamlová, Petra Pelešková - Rekonstrukce domu v Třeboni

Dům se nachází v historickém jádru města, jeho barokní podoba vznikla patrně po opakovaných požárech v 18. století. Kromě bydlení byl zřejmě využíván i pro řemeslnou výrobu. Z jeho dvorku je výhled na věž někdejší radnice. 

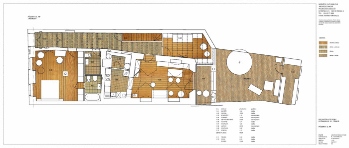
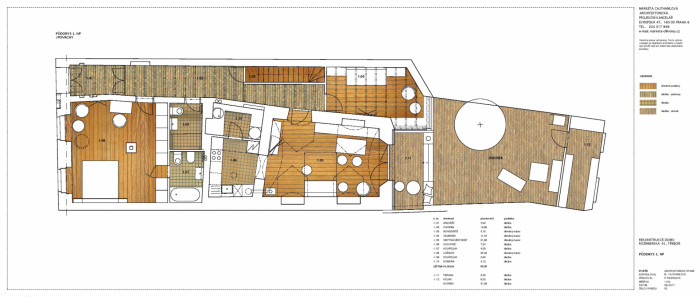
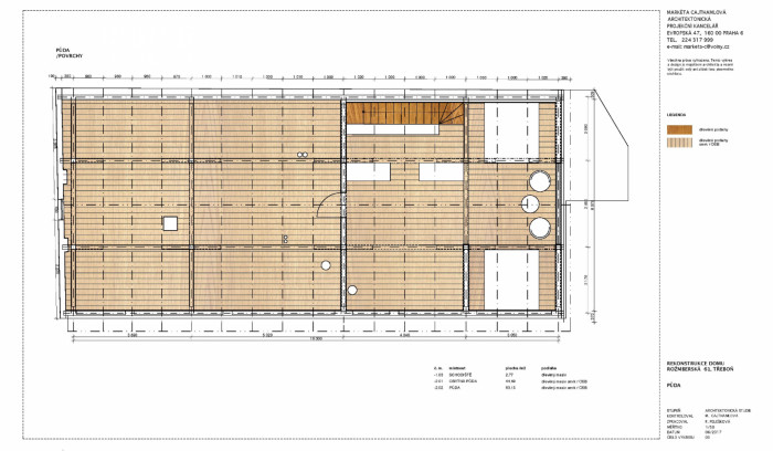
Stavba vyžadovala kompletní rekonstrukci, nacházela se ve značně zchátralém stavu a měla vodou degradované zdivo. Podlahy byly vykopány, odvětrány a srovnány do jedné nivelity. Klenbové stropy v zadní části traktu zůstaly zachovány, dřevěné povalové i trámkové stropy musely být nahrazeny. Krov z druhé poloviny 19. století (některé prvky byly zopakovány ze starších krovů) zůstal prakticky původní. Vyměněno bylo pouze několik poškozených prvků. Do prostoru půdy je vestavěna rezervní ložnice.

Současně bylo vybouráno schodiště do podkroví a na jeho místě, a částečně i na ploše chodby, vznikl „vejminek“ s rohovým oknem akcentujícím výhled na věž.

Z obývacího prostoru v zadní místnosti s valenou klenbou s pětiúhelnými lunetami se vchází na dvorek novým francouzským oknem. Okna z ložnice do ulice byla repasována. Do černé kuchyně ve středu dispozice byl instalován světlovod. Vstupní dveře jsou nahrazeny replikou ve zjednodušené podobě.

Na zadláždění chodby jsme navrhly využít staré půdovky. Pro kuchyň, komoru a koupelny byla zakázkově vyrobena dlažba s historickým vzorem. Ostatní podlahy jsou dubové.

Dvorek se solitérním stromem a zelení v květináčích je vydlážděn odřezky z cihel. Je to další obývací pokoj domu pod širým nebem. Do jeho zadní části je vestavěna nová kůlna s dílnou. Stěna kůlny je sjednocena se severním průčelím domu fasádou z modřínových latí. Všechny nové dřevěné prvky – stropy, příčky, vnitřní dveře – jsou z běleného smrku. 

Část nábytku byla provedena na míru a kombinuje bělený smrk, dubové prkno a lakovanou MDF. Interiér si majitelka doplnila vlastním mobilním nábytkem a lampami.

  • Autoři: Markéta Cajthamlová, Petra Pelešková
  • Země: Česká republika
  • Generální dodavatel: Jiří Janoušek – RENOSTAV Třeboň
  • Město: Třeboň
  • Realizace: 2019
  • Užitná plocha: 203.00m<sup>2</sup>
  • Zastavěná plocha: 143.00m<sup>2</sup>
Generální partner
Hlavní partneři