On the Edge

ZADÁNÍ
On the Edge chce představit projekty a témata balancující na hraně – mezi možným a nemyslitelným/ mezi přítomností a vzdálenou budoucností/ mezi známým a tajemným/ mezi skutečností a fikcí/ mezi normálním a bláznivým/ mezi realitou a hyperrealitou, hybridní témata, témata na pomezí mezi architekturou a jinými obory.
Zastřešující téma je osidlování Sluneční soustavy a pod ním možná jednotlivá zadání ve výčtu uváděná ve směru od Země k okraji Sluneční soustavy:
Výtah na geostacionární orbit s hotelem Orbitální prstencové město Turistické zábavní centrum na Měsíci Kolonizační základna v kráteru na Marsu Těžařská kolonie v Hlavním pásu asteroidů Podmořská vědecká základna na Jupiterově měsíci Europa Plovoucí město v Kraken Mare na měsíci Titan v Saturnově prstenci Podzemní ledové město na Uranově měsíci Oberon Vesmírná loď na dlouhé kolonizační lety vlastní téma
Michaela Kohoutková / MĚSTO PLOVOUCÍ V OBLACÍCH VENUŠE
Samuel Nekola / 5535 ANNEFRANK
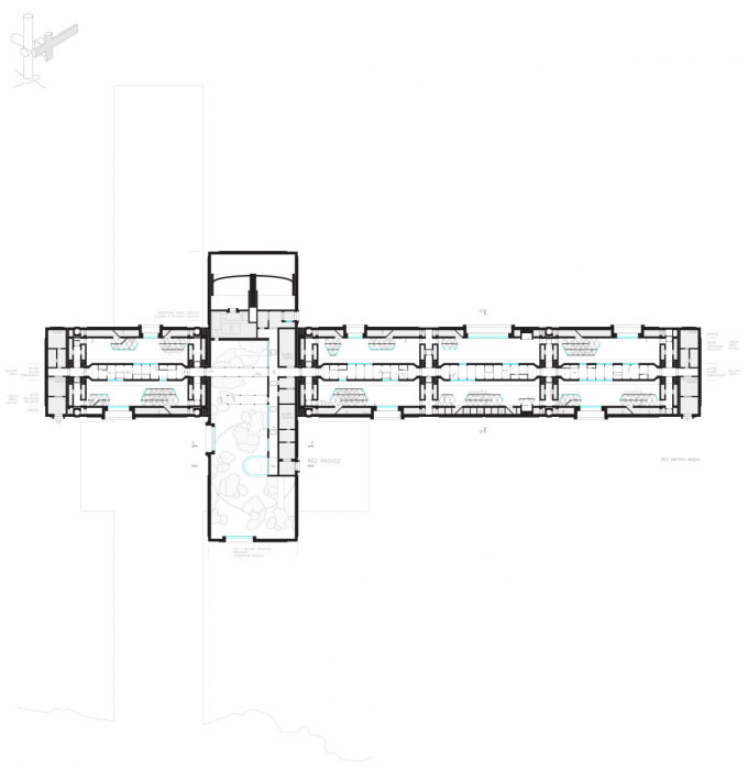
Jana Šmejkalová / GEOSTACIONÁRNÍ VESMÍRNÝ PŘÍSTAV PLANETY ZEMĚ
Nacházíme se v roce 2100. Populace na Zemi dosahuje jedenácti miliard a lidé hnáni touhou překročit hranice naší planety využívají možností kolonizace sluneční soustavy. Mars je již trvale osídlen a na některých dalších planetách běžně fungují výzkumné stanice. Protože se cestování do vesmíru přestává omezovat na jednotlivé kolonizační mise a stává se součástí běžné dopravy, vyskytuje se potřeba vhodnějšího výchozího bodu meziplanetárního cestování, který by snížil náklady takové dopravy a umožnil by do vesmíru cestovat širšímu spektru lidí.
Geostacionární vesmírný přístav je se Zemí spojen orbitálním výtahem. Tento výtah umožňuje vynášení nákladů a lidí na geostacionární dráhu bez použití raketových nosičů. Vesmírný přístav tak otevírá možnosti většího rozmachu vesmírné turistiky a stává se přestupní stanicí při kolonizaci vesmíru. V objektu vesmírného přístavu je na potřebných místech simulována gravitace, které lze dosáhnout využitím odstředivé síly. Ta vzniká při rotaci objektu ve tvaru prstence. Využití přístavu se však neomezuje pouze na ubytování a dopravu, ale slouží také jako překladiště materiálů vytěžených na asteroidech nebo měsíci, zásobování misí a základen v dalších částech vesmíru, výrobna a opravna vesmírných lodí a vědecká laboratoř zkoumající například dlouhodobý pobyt v nulové gravitaci a jeho působení na lidský organismus.
Vesmírný přístav se nachází ve výšce 35 786 km nad Zemí. Jeho kapacita je až 2500 osob, z toho 1700 míst tvoří zaměstnanci, kteří se starají o chod, údržbu a bezpečnost přístavu, vědci, inženýři, programátoři, botanici a lékaři. Zbylá místa obsadí turisté, cestující. V kapacitě je započítána rezerva pro ubytování lidí pracujících ve vesmíru mimo geostacionární vesmírný přístav.
Co se týče potravin, je vesmírný přístav naprosto soběstačný. Rostlinám se ve vytvořeném vnitřním ekosystému dostává péče a dostatek všech potřebných živin díky robotickému pěstování. Rostliny však mají pro vesmírný přístav více významů. Představují vazbu se Zemí, která je důležitá právě kvůli dlouhodobému odloučení se od naší mateřské planety. Proto se v přístavu nachází dostatek zeleně i mimo robotické farmy: v prstenci ve všech obytných patrech najdeme nespočet parků, menších zelených ploch a vertikálních zahrad, dolní část přístavu pak z větší části slouží jako prostor pro rekreaci v nulové gravitaci, který je celý pojat jako park.
Stejně jako měsíc vznikl z odštěpku planety Země, vychází i její geostacionární přístav ze stejné podstaty. Přístav je ostrovem Země plujícím ve vesmírném prostoru, připomíná oblázek odtržený od skály. Ač je oblázek na první pohled hladký, při bližším prozkoumání i na něm odhalíme pukliny a praskliny, stejně jako na struktuře přístavu.
autoři: Michala Kohoutková, Samuel Nekola, Jana Šmejkalováateliér: Zedníčková
- Autoři: Michaela Kohoutková, Samuel Nekola, Jana Šmejkalová
- Země: Česká republika
- Škola: FUA TUL – Ateliér Zedníčková
- Datum projektu: 2016
Související projekty
Mohlo by vás zajímat

































