Rekonstrukce bytu v centru Varšavy / Wilcza
 
                                
                                ANOTACE
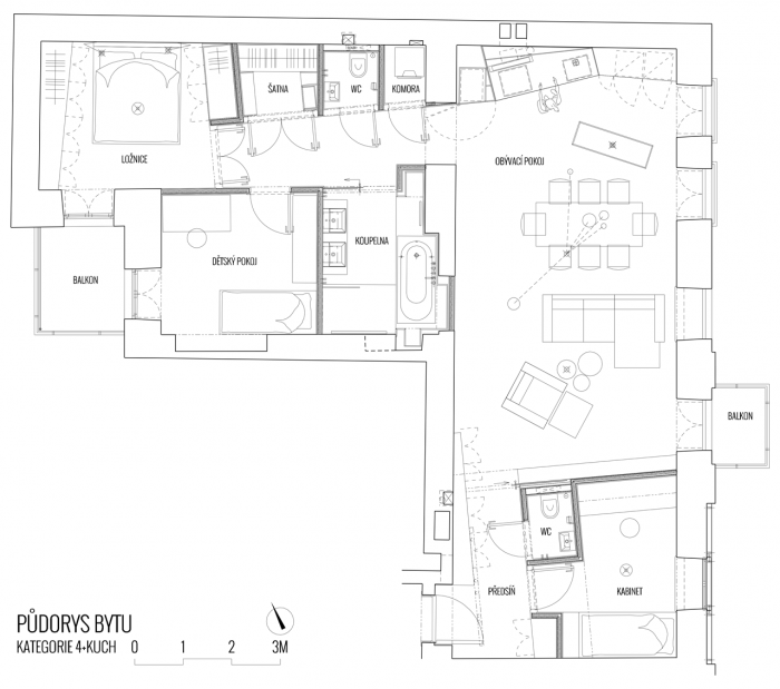
Wilcza 72, dům z roku 1900 v centru Varšavy, prošel neotřelou renovací, jež uchovala stopy varšavského povstání v uliční fasádě. Navrženou úpravou vzniká minimalistická čtyřpokojová dispozice o velikosti 101 m2, která zachovává veškeré původní konstrukce a ctí půvab historických prostor.
REKONSTRUKCE
Nové dělení bytu je vystavěno z montovaných nábytkových stěn. Jejich nepravoúhlé tvarování a převaha vestavěného nábytku umožňují efektivně využít podlahovou plochu. Obývací pokoj je situován ve středu dění. Prostý výraz kuchyně v čele místnosti postrádá hrubost typizovaných kuchyňských koutů; má klidnou, relaxační kvalitu, odpovídající charakteru obývacího pokoje.
Na kuchyň přímo navazuje skříňová stěna, která vytváří předprostor ložnic, propojení mezi denní a noční částí bytu. Ložnice jsou provedeny v klidné kombinaci bílé barvy a světlého dřeva. Na opačném konci obývacího pokoje je v kontrastu k ložnicím obývací stěna z tmavého dřeva, propojená se vstupní předsíní ze stejného materiálu.
Přesahy materiálů mezi jednotlivými místnostmi vytvářejí pocit propojení, zjednodušují orientaci v bytě: celým bytem prochází jediná, přirozeně provázaná a pestrá cesta.
- Autoři: Ondřej Dvořák, Jiří Matys
- Ateliér: skutek architecture
- Spolupráce: Zdeněk Pech
- Země: Polsko
- Město: Varšava
- Ulice, číslo: Wilcza 72
- PSČ: 00-538
- Datum projektu: 2014
- Realizace: 2015
- Užitná plocha: 101.00m2
- Poznámka: Foto © Ondřej Dvořák, Jiří Matys
Související projekty
Související architekti
Související ateliéry a firmy
Mohlo by vás zajímat
 
				 
				 
				 
				 
				 
				 
				 
				 
				 
				 
				 
				 
				 
				 
				 
				 
				 
				 
				 
				 
				 
				 
				 
				 
				 
				 
				 
				 
				 
				 
                             
                             
                             
                             
                             
                                 
                             
                             
                             
                             
                             
                             
                             
                             
                             
                             
                             
                             
                             
                             
                             
                             
                             
                             
                             
                             
                             
                             
                             
                     
             
             
             
             
            		 
            		 
            		 
            		 
            		 
                                                                                                             
                                                         
                                                         
                                                                                                             
                                                         
                                                         
                    