What architects - Přízemní byt

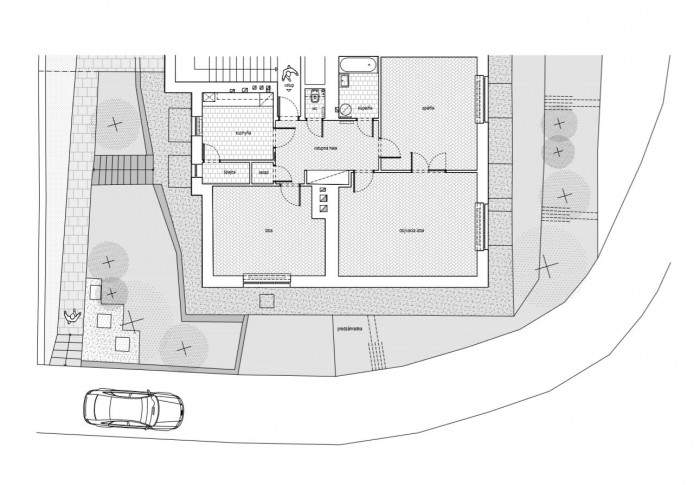
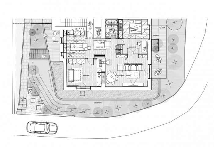
Malý bytový dom v blízkosti bratislavskej kalvárie postavil v druhej polovici 50. rokoch pre svojich zamestnancov Štátny ústav dopravného projektovania. Jeho skladba je jednoduchá, šesť identických trojizbových bytov je usporiadaných zrkadlovo v troch podlažiach s malou garsónkou a mezonetovým bytom v podkroví.

Navonok utilitárna hmota bytového domu však v sebe ukýva veľkorysé a vzdušné obytné priestory, ktoré s pribúdajúci rokmi získali svoju jedinečnú atmosféru. Cieľom rekonštrukcie prízemného bytu, alebo skôr len jeho „faceliftu“, teda nebolo maximálne účelové využitie jeho celej podlažnej plochy, ale adaptácia existujúcej funkčnej prevádzky do novej výtvarnej a architektonickej podoby. Tým vznikla dispozícia, v akej nie je striktne oddelená denná a nočná zóna. Dve samostatné izby v severovýchodnej a juhozápadnej časti križuje priestor kuchyne, vstupnej haly a obytnej miestnosti.

Foto: EARCH

Prízemné byty v mestskom centre ale oproti ostatným trpia zväčša slabším preslnením. V lokalite, kde sa však popri menších obytných celkoch so záhradami nachádzajú prevažne rodinné a vilové domy, návrh reflektuje okolité prostredie: všetky okenné otvory sa znížili takmer na úroveň dverí a spolu s vybudovaním terás prístupných z kuchyne, obývacej miestnosti a spálne v kombinácii s výsadbou okolitej zelene sa tak uprostred bytu vytvorila atmosféra rodinného domu. Nová podoba návrhu prízemného bytu tak rozvíja potenciál jeho pôvodného architektonického riešenia, pričom umocňuje jeho priestorovú kvalitu. Byt/dom v sebe spája rodinné bývanie so životom v mestskom centre. 

Foto: EARCH

Foto: EARCH

Generální partner
Hlavní partneři