EARCH TÝDENÍK: V Kalifornii hoří i prvotřídní architektura. V Pardubicích chtějí největší hokejovou arénu světa a kolem novou čtvrť. Vyšla kniha o pražském metru
Přinášíme výběr novinek z architektury, stavění, bydlení, zahrad, památkové péče a krajiny. Týden na architektonické scéně shrnuje redaktorka Adéla Vaculíková.
Adéla Vaculíková , 13. 1. 2025
Požáry v LA ohrožovaly památky
Požáry v Los Angeles ničí i architekturu. Nezisková organizace Los Angeles Conservacy, která se věnuje osvětě v oblasti památkové péče, situaci sleduje a vede seznam zničených památek. Je na něm například ranč herce Willa Rogerse z 20. let, viktoriánský Andrew McNally House z 80. let 19. století, Keeler House z roku 1991 od Raye Kappeho, spoluzakladatele kalifornské vysoké školy architektury SCI-Arc a další...
Ohrožená byla i Gettyho vila, plná antických soch a dalšího umění. Zasažena byla část jejího pozemku, shořel plot, samotná stavba ale vyvázla bez významných poškození - kulturní veřejnost si vydechla.

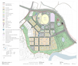
Pardubice s největší hokejovou arénou na světě a novu čtvrtí
Podnikatel a většinový vlastník pardubického hokejového klubu Dynamo Petr Dědek (DD Invest) chce v Pardubicích postavit multifunkční arénu, která by i na hokejové zápasy pojmula neuvěřitelných 22,3 tisíc návštěvníků. To je o čtyři tisíce více než pražská O2 arena, a dokonce i o tisíc více než současná největší hokejová SKA Arena v Petrohradě v Rusku… Potřebují největší hokejovou halu na světě zrovna Pardubice a česká hokejová extraliga?
Pro stavbu multifunkční arény, jejíž součástí by měl být také hotel nebo veřejně přístupné sportovní zařízení, se investorům už dříve podařilo získat zanesení změny do územního plánu. Nyní se v Pardubicích prezentovalo něco nového - magistrát nechal vypracovat územní studii na čtvrť Nová Cihelna, jejíž součástí má být vedle arény nové zdravotnické zařízení a domy s byty pro až 5000 lidí. Zastupitelé teď budou o výsledcích studie jednat.

Kniha Pražské Metro
Vyšla nová kniha o pražském metru – k dostání je na e-shopu Dopravního podniku hl. m. Prahy, v různých knihkupectvích i u nakladatelství Paseka, které knihu vydalo. Titulů o pražském metru vyšla už celá řada, tato ale bude jejich významným konkurentem. Je totiž krásná – je v ní spousta dobových fotografií, má kvalitní grafiku, tisk a nanejvýš kvalifikované autory. Na textech pracovali umělec a popularizátor vizuální kultury z období socialismu Pavel Karous, architekt a památkář Matyáš Kracík, současná architektka pražského metra Anna Švarc a fotografie pořídil fotograf Jan Kuděj.

Publikace o Semlerově rezidenci
Novou knihu vydala také Západočeská galerie v Plzni. Jmenuje se Semlerova rezidence a představuje právě tuto realizaci, za níž stojí architekti Adolf Loos a Heinrich Kulka. Interiéry Semlerovy rezidence pocházejí z let 1933 a 1934 a patří k tomu nejvýstavnějšímu, co tito dva modernističtí architekti v Plzni vytvořili. Jejich realizace se dají navštívit přes iniciativu Adolf Loos Plzeň.
Knihu Semlerova rezidence sepsal kurátor Západočeské galerie v Plzni Petr Domanický a doslovem ji opatřil historik architektury Christopher Long – světově proslulý znalec Loosova díla, života i skandálů.

Zaha Hadid Architects se soudí
Jméno architektky Zahy Hadid je dobrá značka. Ateliér Zaha Hadid Architects ho má ve svém názvu i po předčasné smrti své zakladatelky v roce 2016. Ve světě architektury, stavebnictví a developmentu má váhu.
Že se o jméno nevyplatí přijít za žádnou cenu, prokázal prosincový spor u britského vrchního soudu. Ateliér Zaha Hadid Architects u něj žádal o zrušení povinnosti odvádět nadaci Zaha Hadid Foundation 6 % z jejich každoročního výnosu. V roce 2018 to podle serveru Dezeen bylo na 21 milionů liber. Soud ovšem žádosti nevyhověl – systém, který pro financování činnosti nadace nastavila už Zaha Hadid, bude dále platit. Pokud by s tím Zaha Hadid Architects přestalo, znamenalo by to pro něj ztrátu licence na používání jména Zahy Hadid v názvu ateliéru.
Třicítkou na Praze 6
Na Praze 6 plánují zavést rychlost 30 km/h pro většinu rezidenčních oblastí. První zóny omezující rychlost dopravy tato městské část zavedla už v roce 2016. A jelikož se podle radnice osvědčily, je možné je rozšířit. První změny by se mohly odehrát už v první polovině tohoto roku.
Více k tématu
Nejlepší stavby tohoto čtvrtstoletí
Co jsou nejvýznamnější architektonické realizace poslední doby? Tuto otázku si položila redakce magazínu Dezeen a přišla s cyklem článků „25 Years 25 Buildings“. Od 6. ledna pravidelně každý pracovní den publikuje text věnovaný jedné z „nej“ staveb 21. století, dohromady jich bude 25 – jedna za každý rok tohoto století.
Už vyšly články třeba o Tate Modern od švýcarského ateliéru Herzog & de Meuron, skokanském můstku v rakouských Alpách od Zaha Hadid Architects nebo základní škole v Burkině Faso od Francise Kérého. Zatím jde o samé držitele Pritzker Architecture Prize, tedy nejvyššího profesního ocenění, jakého mohou architektky a architekti dosáhnout.