Student pražského ČVUT navrhl Tiny house se zelenou střechou i fasádou. Sloužit bude jako showroom společnosti Saint-Gobain
Tiny house se zelenou fasádou a velkými okny – tak vypadá nový showroom firmy Saint-Gobain. Navrhl ho student architektury.
EARCH.CZ , 9. 10. 2024 / Advertorial
Návrhy vzniklé ve studentských soutěžích se realizují jen ojediněle
Před dvěma lety dostali studenti Fakulty stavební ČVUT toto zadání: navrhnout design showroomu, kde se uplatní produkty skupiny Saint-Gobain – sádrokartony, izolace, fasádní, podlahové či zateplovací systémy.
Zvítězil František Exner. „Návrh porotce zaujal především díky štědré ploše zasklení, širokému využití zeleně a velkému zastoupení udržitelných materiálů,“ vysvětluje Zdeněk Černošek, odborník na prefabrikaci ze společnosti Saint-Gobain a jeden z porotců studentské soutěže.
Soutěž pro studenty vyhlašovala firma Saint-Gobain spolu s Fakultou stavební Českého vysokého učení technického. Bonus pro vítěze byl, že se jeho návrh skutečně realizuje.
Výstavba trvala pouhé tři měsíce a pavilonek se tak brzy dočkal prvních návštěvníků. Sloužit má především odborníkům z řad projektantů, architektů i realizačních firem k představení nejmodernějších technologií, materiálů a řešení.

Drobný zelený objekt v kontrastu výrobního areálu
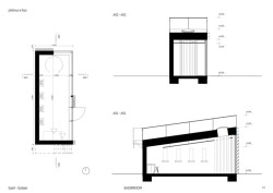
Tiny House se nachází ve výrobním areálu Rigips hned vedle budovy Školy suché výstavby. Při pohledu na jeho lichoběžníkové průčelí na sebe v pozadí upozorňuje opačným směrem běžící výrobní dopravník. Navrhovat do továrenského prostředí bylo zajisté náročné, ale student František Exner vytvořil objekt, jež do tohoto komplexu skvěle zapadá.
Udržitelně postavený pavilonek je koncipován jako dřevostavba. Nosným prvkem jsou dřevěné KVH hranoly opláštěné konstrukčními sádrokartonovými deskami. Fasádu pokrývá zeleň v květináčích Flora Pot. Konstrukci zelené fasády tvoří produkty firmy Flora Urbanica a také značky Isover. Objekt má kromě fasády zelenou i střechu, jíž doplňuje světlík opláštěný deskami Glasroc F Riflex.

Jednoduchá podélná dispozice umožňuje klientovi vstoupit, prohlédnout si vystavené materiály značek skupiny Saint-Gobain Isover, Rigips, Glassolutions a Weber, a nakonec nasát špetku futurismu ze skleněných lamel. Ty totiž navazují na střešní světlík a rozptylují žluté světlo dál do interiéru. Z tohoto prvku se rychle stal „instagramový spot“.
A co by to bylo za showroom bez vystavených modelů? V interiéru jsou zavěšeny celkem čtyři modely fasádních systémů. Prvním z nich je systém provětrávané fasády Glasroc X, jež nabízí rovný povrch bez nevzhledných otevřených spár. Druhý model představuje obvodovou stěnu Rigistabil, která je jen s drobnými odlišnostmi použita i na obvodové stěně tohoto objektu. Třetí sytém, jehož model visí v budově, je zateplovací systém se skleněným povrchem Weber Therm Style. Posledním systémem vyobrazeným na zavěšeném modelu je Etics Weber Therm Elastik E Mineral, což je vnější tepelně izolační kompozitní systém.
Více k tématu
Podpora akademického prostředí
Společnost Saint-Gobain podporuje pražskou i brněnskou techniku dlouhodobě. Tato soutěž byla ovšem unikátní: „Soutěž byla pro studenty velmi zajímavá. Bylo to snad poprvé, kdy vítěz měl příslib toho, že se jeho dílo bude realizovat. Já mnohokrát děkuji společnosti Saint-Gobain, že to takto vymyslela a byl bych velmi rád, kdyby i ostatní vyhlašovatelé přišli s něčím podobným,“ uzavírá Jiří Máca, děkan Fakulty stavební ČVUT.
- Autoři: František Exner
- Země: Česká republika
- Město: Horní Počaply
- Zastavěná plocha: 24 m²
- Realizace: 2024
- Nosný prvek: dřevěné KVH hranoly