Architektura / interiér

0,5 Studio proměnilo padesátimetrový byt pro pohodlné bydlení čtyřčlenné rodiny

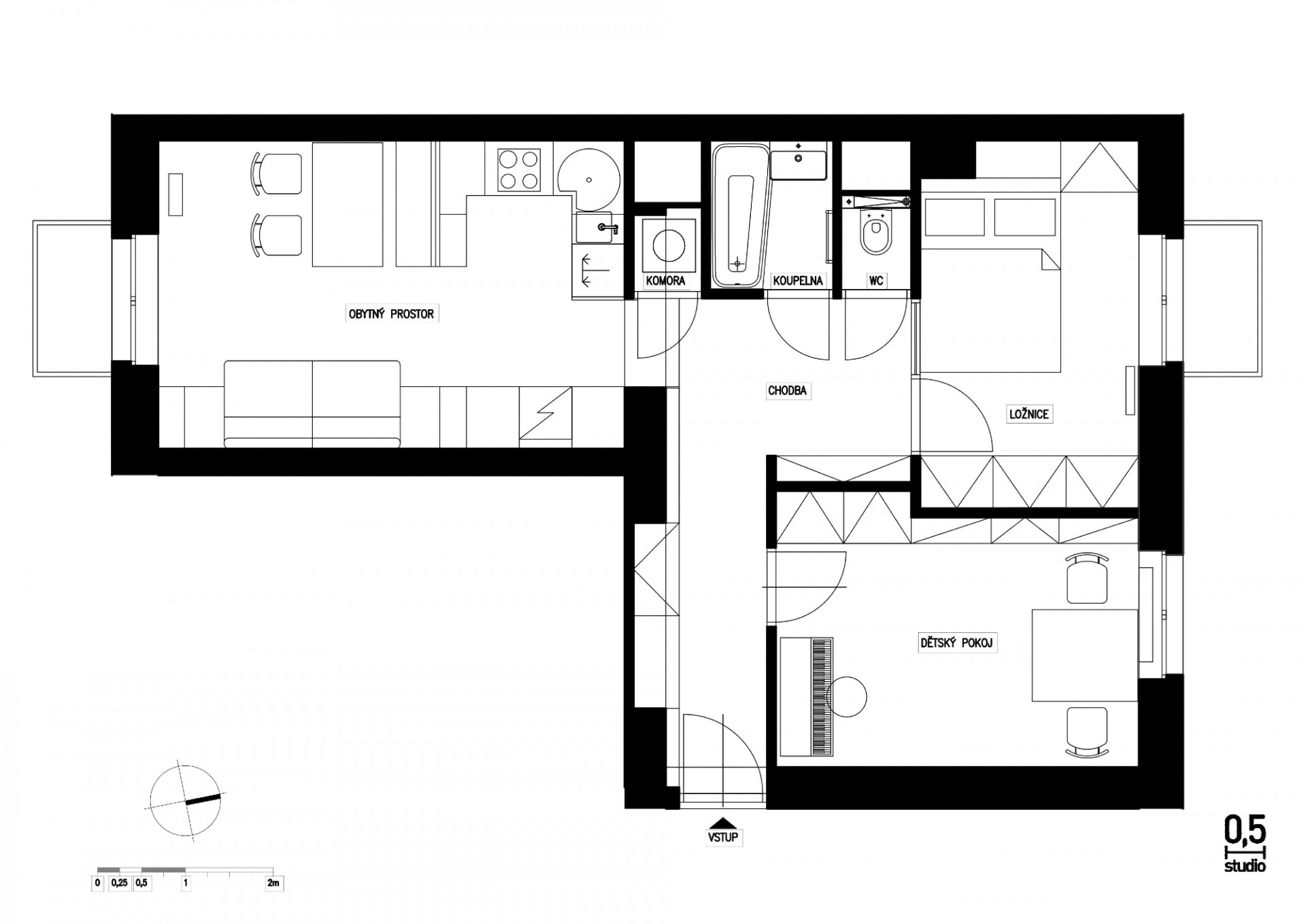
Změna dispozice a důmyslná úprava příček napomohly čtyřčlenné rodině k pohodlnému bydlení v menším pražském bytě, který prošel celkovou rekonstrukcí podle návrhu 0,5 Studia. Spojení kuchyně s obytnou zónou dalo prostor ke vzniku dětského pokojíku i samostatné ložnice. Dostatek úložných prostor se architekti rozhodli řešit pomocí rafinovaně volených vestavěných skříní napříč celým bytem.

0,5 Studio , 19. 7. 2021

  • Ateliér: 0,5 Studio
  • Země: Česká republika
  • Realizace: 2020
  • Město: Praha 6 - Vokovice
  • Realizace: 2020
  • Užitná plocha: 55.00m2
  • autor: 0,5 Studio *
  • publikováno: * 19. 7. 2021
  • zdroj: * Autorská zpráva

Klíčová slova:

rekonstrukce bytu interiér

Mohlo by vás zajímat

Generální partner
Hlavní partneři