Architekt si svépomocí postavil pasivní rodinný dům na hranici historického jádra Telče
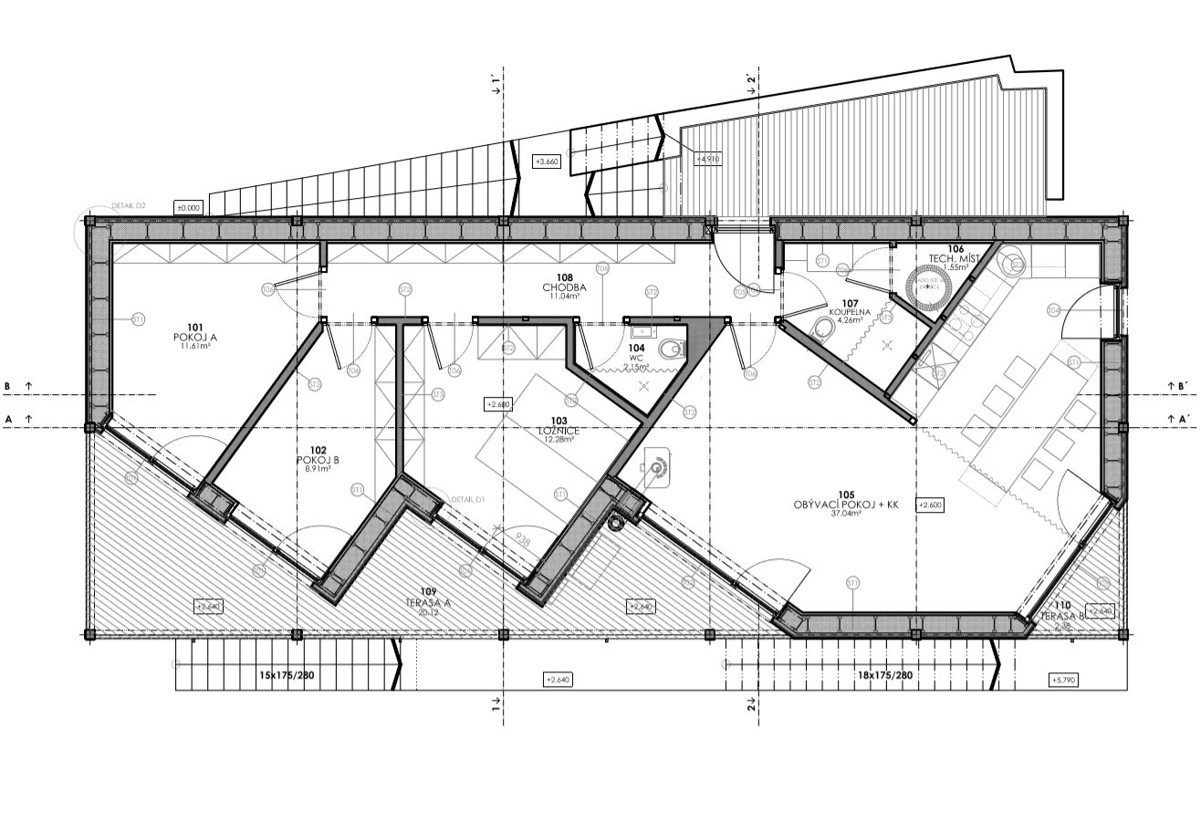
Pod dohledem barokní sochy Anděla Strážce, na místě bývalých mlýnských domků stojí rodinný dům Jiřího Ondráčka, architekta z telčského studia ARCHOO. Jednoduchý kvádr dřevostavby efektivně využívá skromnou plochu pozemku s vodopádem, nad nímž se vznáší pomocí subtilních betonových sloupů. Stavba, která byla nominována na Cenu za architekturu 2018, je povedeným příkladem souladu historie lokality, současné architektury a přírody s živým prvkem vodopádu.
Jiří Ondráček , 3. 10. 2018
- Autoři: Jiří Ondráček, Lukáš Komín, Jaroslav Svoboda
- Ateliér: ARCHOO s.r.o.
- Spolupráce: Libor Kavalec, Miroslav Hack
- Země: Česká republika
- Realizace: 2015
- Město: Telč
- Datum projektu: 2011
- Realizace: 2015