Budovu základní školy v Nezamyslicích rozšířila nová přístavba podle návrhu ateliéru Malý Chmel
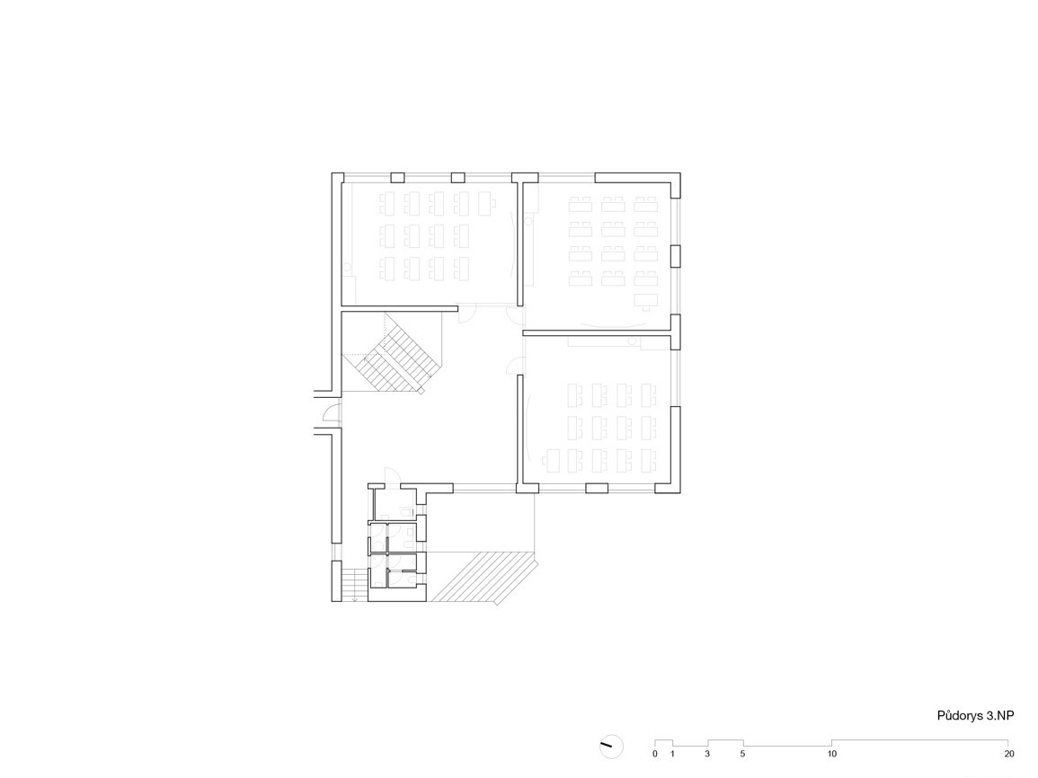
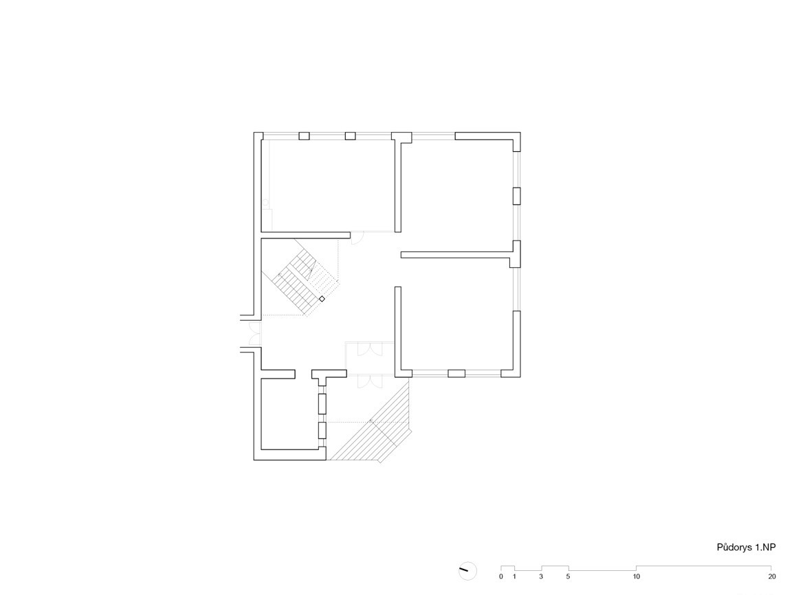
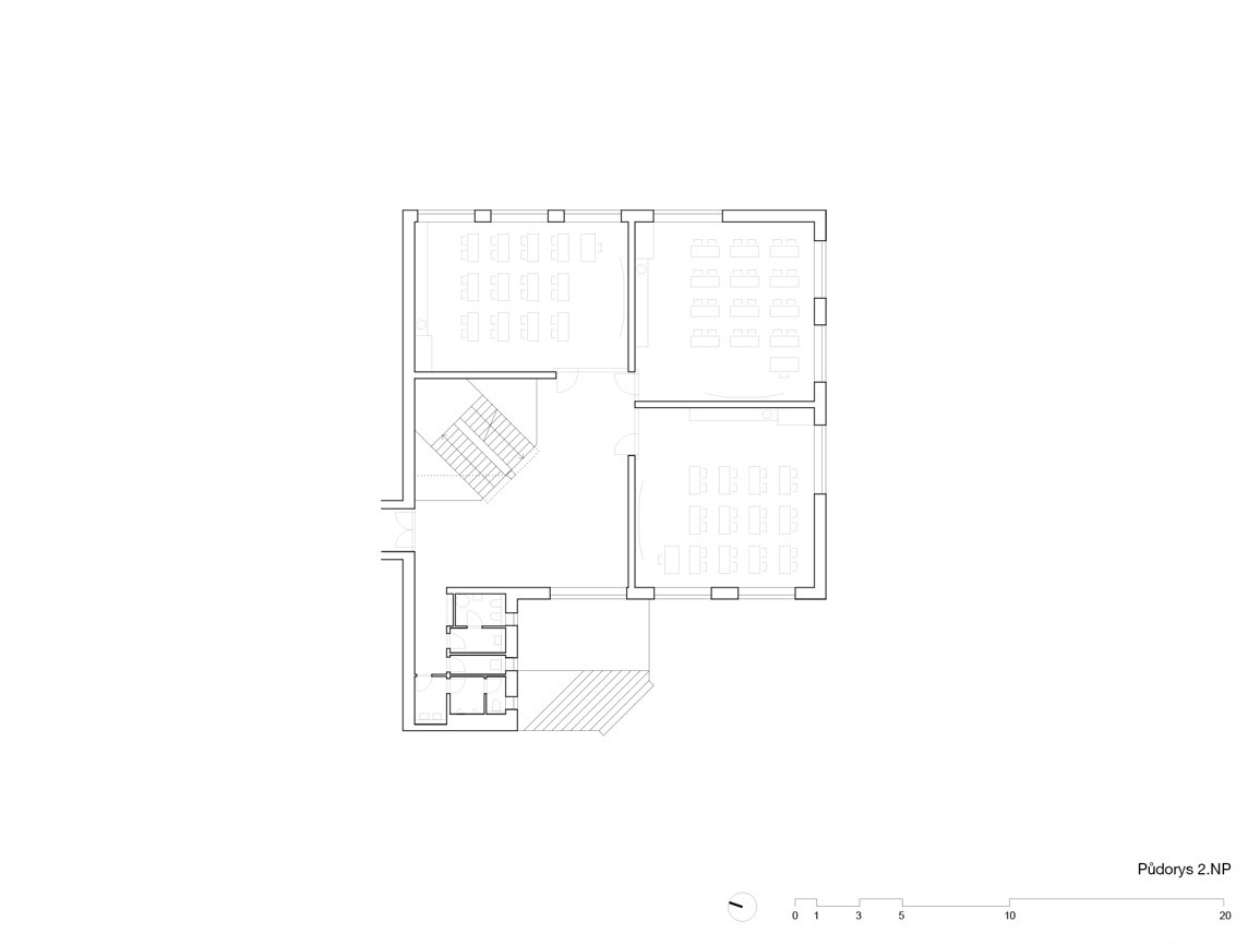
Pozemek vymezený obecními budovami v jihomoravských Nezamyslicích uzavřela nová budova podle návrhu architektonické kanceláře Malý Chmel, která doplnila stávající budovu místní základní školy. Přidáním jednoduché pravoúlé hmoty se škola rozšířila o čtyři nové učebny s netradičním čtvercovým půdorysem, který umožňuje větší variabilitu výuky. Při návrhu učeben kladli architekti důraz na dostatek světla v interiéru – učebny proto mají namísto klasického osvětlení zleva (výhodné pro praváky) velká okna po dvou stranách. Interiér charakterizují barevně neutrální materiály, jako je pohledový beton, kov, teracová dlažba, přírodní linoleum nebo nabílo natřené stěny z pálené cihly.
Malý Chmel , 24. 1. 2019
- Autoři: Petr Malý, Miroslav Malý, Zdeněk Chmel, Miroslav Chmel, Gabriela Sládečková, Jiřina Bubeníková
- Ateliér: Malý Chmel, Malý Chmel, Malý Chmel, Malý Chmel
- Země: Česká republika
- Realizace: 2017
- Město: Nezamyslice
- Ulice, číslo: 1. máje, 234
- PSČ: 49826
- Datum projektu: 2016
- Realizace: 2017