
Bydlet v koláži. Ze dvou pokojů tři a působivá kombinace starého a nového
Místo předsíně koupelna a místo koupelny kuchyně. Byt v domě z 30. let v Košicích nevyhovoval současným požadavkům na bydlení a bylo třeba chytře změnit uspořádání. Úkolu se chopilo lokální studio RAN, které zároveň zachovalo kouzlo historie.
EARCH.CZ , 11. 12. 2023
V širším centru Košic se nachází rodinný dům z 30. let, který je rozdělený na byty v patrech. Jeden z těchto bytů si majitelé přáli zrekonstruovat. Byt je sám o sobě velkorysý, přece jen potřeboval proměnu tak, aby vyhovoval současným požadavkům na bydlení a přáním klientů. A tak se rozhodli oslovit lokálního architekta z Košic.
„Hlavním cílem rekonstrukce bylo proměnit velkorysý dvoupokojový byt na plnohodnotný třípokojový se samostatnou kuchyní, zachovat jeho prostorové kvality a zároveň vyzdvihnout jeho historickou hodnotu,“ uvádí rekonstrukci Zoran Trpčevski ze studia RAN, které v Košicích sídlí.
Více k tématu
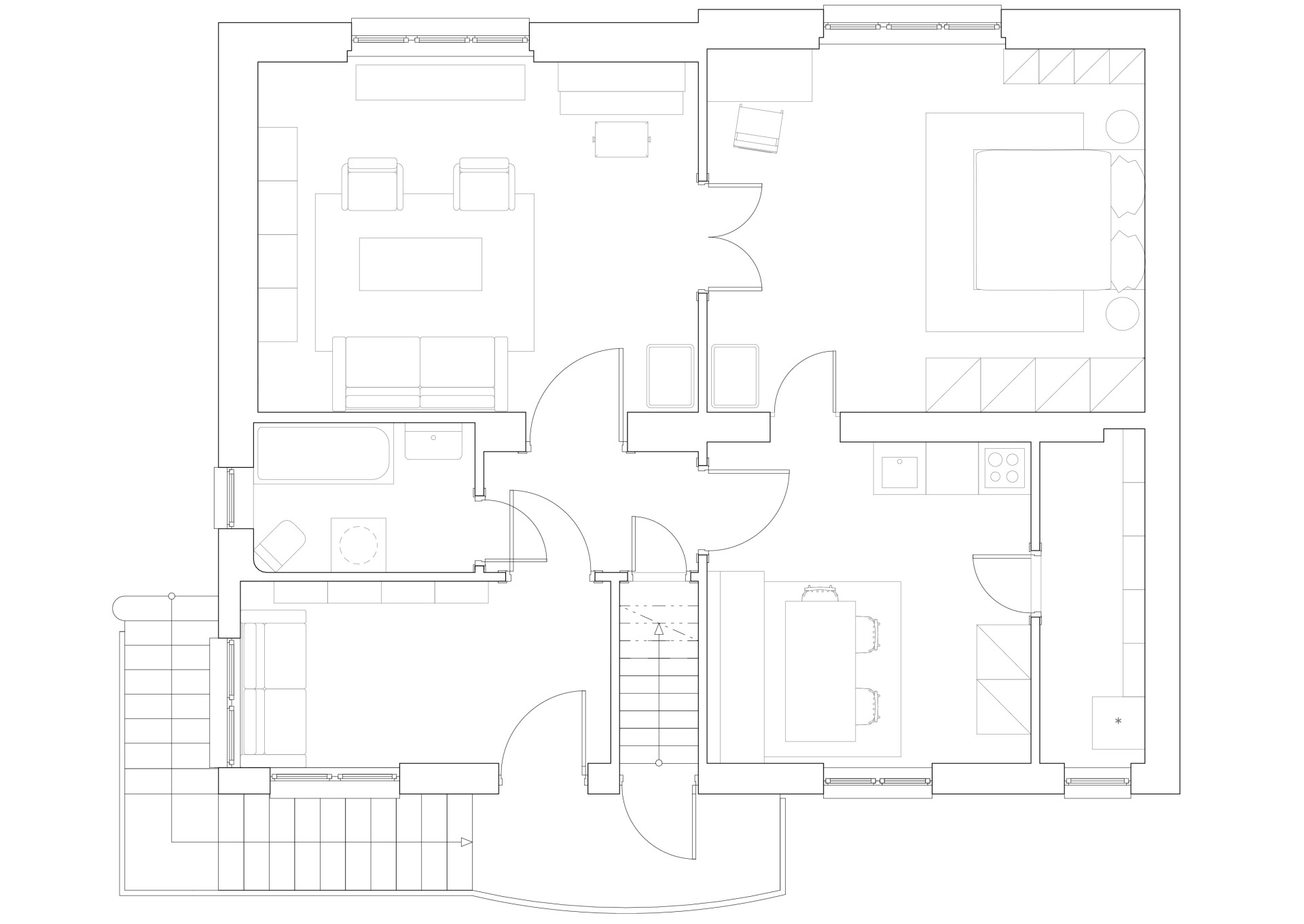
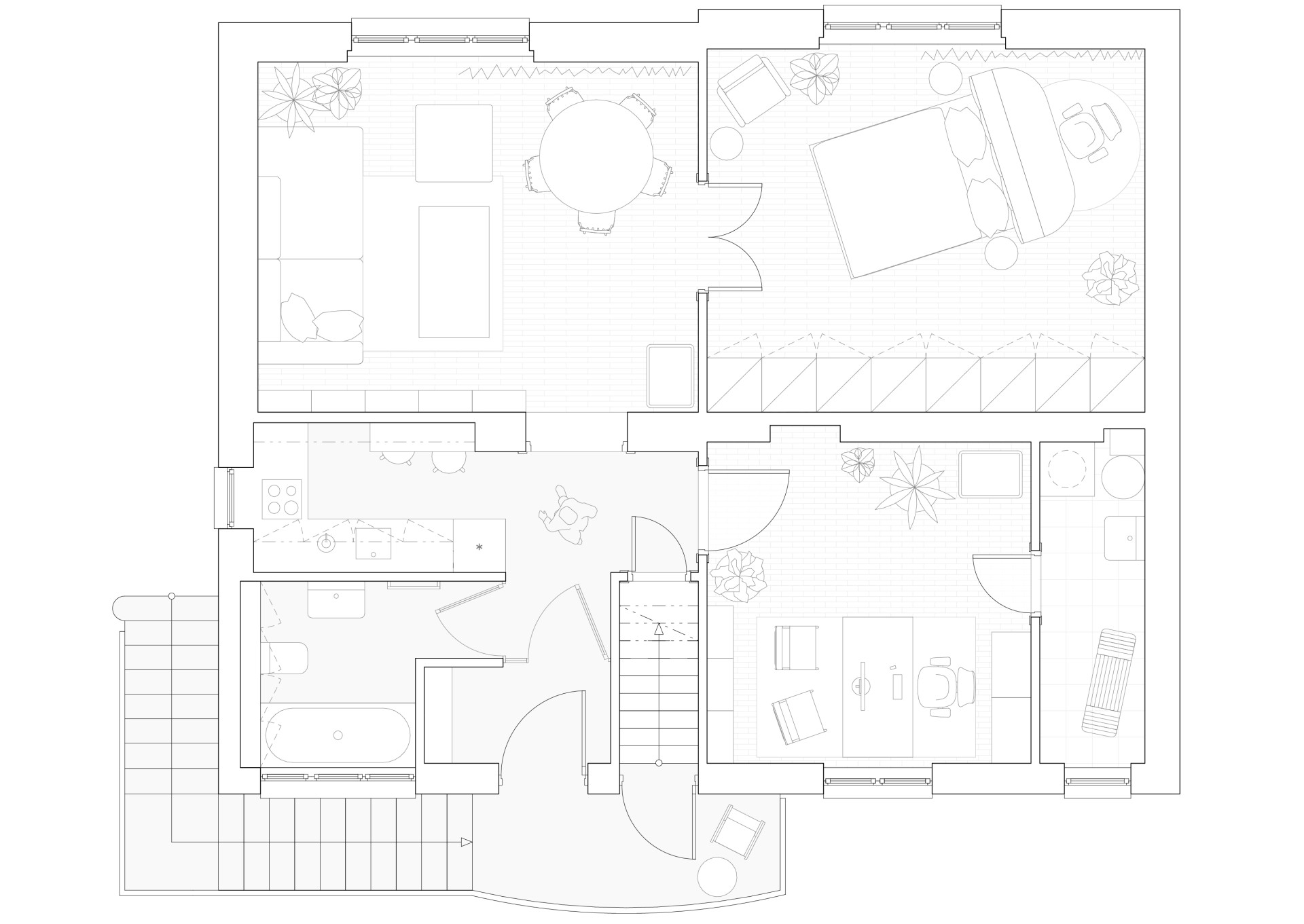
Důmyslná změna dispozice
Nejdůležitějším aspektem návrhu bylo chytře, jednoduše a s citem proměnit dispozici bytu, která zvětší jeho prostor a zefektivní jeho provoz. Původní dispozice měla několik nedostatků – v rámci velikosti bytu nepoměrně velkou předsíň, malou kuchyni a nepřehledný prostor haly uprostřed dispozice s několika dveřmi. Architekt se tak rozhodl pro logické přeskupení těchto celků a odstranění zbytečných dveří.

„Na místě původní koupelny byla navržena kuchyně, která je otevřená do dispozice a tvoří ústřední bod bytu. Velká předsíň byla zmenšena na nezbytné minimum a na zbytku předsíně vznikla koupelna. Díky dispozičnímu řešení v jižní polovině bytu bylo možné z kuchyně se spíží vytvořit plnohodnotný obývací pokoj s technickou místností,“ upřesňuje Zoran Trpčevski.
Koláž současného s původním
Společně s chytrou proměnou dispozice dostal interiér nový kabát. I když ne úplně nový. Architekt zde chytře využil stávajícího kouzla původního a citlivě do něj začlenil současné interiérové prvky. Vznikla tak pozoruhodná koláž vybavení a nábytku, které dominuje dřevo a důmyslný řemeslný detail a autentické původní výmalby v pokojích, které dohromady tvoří silný estetický celek.

„V každé místnosti byla výmalba ve vysoké míře zachována, ale v jiné podobě. Ostatní cenné prvky, jako jsou masivní dveře, dubové parkety a rákosový strop, rozhodly o citlivém přístupu s co nejmenším zásahem do konstrukce,“ doplňuje Zoran Trpčevski a dodává: „Nový nábytek byl navržen v symbióze s původními prvky obydlí. Jazyk detailů je současný a jasně čitelný, ale s ambicí citlivě zapadnout do prostředí.“
Stačí „málo“
Rekonstrukce košického bytu ukazuje, že i autentické a velkorysé prostory domu z 30. let lze proměnit v současný prostor pro bydlení tak, aby neztratil původní kouzlo a co možná víc, aby bylo novým návrhem posíleno. Pokud architekt dostatečně „nasaje“ autentický prostor, dokáže vymyslet řešení logicky využívající původní struktury, které aktualizuje ke zlepšení jeho kvalit.

„Dubové parkety byly demontovány a následně znovu použity v nepravidelné vazbě. Stejně tak kachlová kamna, která byla součástí domu od jeho výstavby. V místech, kde byly vybourány příčky, bylo vylito teraco a ve zbytku obnoveno,“ uzavírá Zoran Trpčevski a potvrzuje tak, že někdy stačí „málo.“ Ve smyslu bourání a složitých zásahů. V košickém bytu se bouralo a odstraňovalo pouze v nezbytných případech, což dokazuje promyšlenost a sofistikovanost architektonického řešení.
- Autoři: Zoran Trpčevski
- Ateliér: RAN
- Země: Slovensko
- Město: Košice
- Projekt: 2021
- Realizace: 2022
- Fotograf: Tomáš Lazorik