
Kouzlo starých časů u kolonády. Poznávacím znakem bytu v Karlových Varech se stala oprýskaná omítka
Byt s vysokými stropy a výhledem do zeleného svahu potřeboval vlastně jenom málo - odstranit zbytečné nánosy a vytvořit logickou funkční dispozici. Úkolu se ujaly architektky ze studia Plus One Architects. Celý byt sjednotily a vytvořily autentickou atmosféru za použití minima materiálů.
Jan Bureš , 15. 9. 2023
Byt se nachází v jednom z historických domů v centru Karlových Varů. Měl sice stále velkorysost a půvab starých bytů z tohoto období, potřeboval ale důkladnější a razantnější „facelift“, který mu dodá nový šmrnc. Investor se tedy rozhodl oslovit mladý ateliér Plus One Architects, který tvoří dvojice architektek Kateřiny Průchové a Petry Ciencialové, aby se tohoto úkolu ujaly po svém.
Více k tématu
Hlavní jejich úkol bylo odstranit nánosy roztodivných konstrukcí, obkladů, podhledů, dispozičních změn, očistit "Díky maximální důvěře a vzájemném respektu s investorem jsme si mohli dovolit ve velké míře probourat otvory, zrušit dveře, a naopak přidat skleněné světlíky, obnovit průchody a znovu jim dát původní rozměry," vysvětlují architektky.

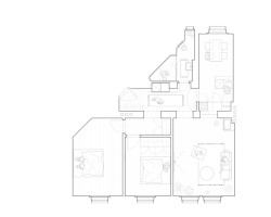
Největší důraz kladli architektky na dostatečné prosvětlení dispozice a otevřenost prostoru. Mezi obývacím pokojem a kuchyní nově přibylo výdejní okénko, jež bylo pro byty z tohoto období běžnou záležitostí; oba prostory funkčně a vizuálně propojuje. Zrušili průchozí pokoje, ale vytvořili současnější uspořádání se dvěma neprůchozími ložnicemi a obytným jádrem. Přibyla šatna, v koupelně byl kreativně využit nepravidelný trojúhelníkový prostor, který nově obsadil velkorysý sprchový kout.
Co se týče materiálů, snažily se autorky jít cestou minimalismu. Ovšem ne ve smyslu strohosti, která často končí chladnými a neosobními prostory, ale ve smyslu využití minima materiálů a výrazových prostředků. Cílem bylo vytvořit příjemnou a autentickou atmosféru, která současným způsobem – s citem a respektem k původnímu – celý interiér harmonicky sjednotí.

Charakteristickým rysem a prostupující linkou celého interiéru se po odhalení stala původní výmalba na stropech i stěnách, s proměnlivými barevnými odstíny a texturami. Tato na první pohled nedokonalost, byla estetickým záměrem – stala se výzdobou, abstraktní malbou dodávající interiéru příjemnou patinu původního.
V ložnicích byla zachována původní dřevěná prkenná podlaha, která kontrastuje s novou litou podlahou šedého odstínu. Ta zvýrazňuje původní výmalbu na stěnách, pečlivě vybrané kusy nábytku od mladého designerského studia Jánský & Dunděra a další designové kousky a v neposlední řadě i původní glazovaný krb, který se nově stal dominantou obývacího pokoje.
Architektkám z ateliéru Plus One Architects se tak podařilo menšími zásahy a za použití minima materiálů vytvořit současný interiér pro bydlení respektující původní kouzlo bytu. Jako by zde nic nebylo navíc, a přece nepůsobí chladně a nezabydleně. Všeho jen tak akorát.

- Autoři: Petra Ciencialová, Kateřina Průchová
- Ateliér: Plus One Architects
- Spolupráce: Janský & Dunděra
- Země: Česká republika
- Město: Karlovy Vary
- Adresa:: Svahová 37, Karlovy Vary
- Projekt: 2022
- Realizace: 2023
- Užitná plocha: 68 m²
- Náklady: 1,2 mil. CZK