Citlivě s odvahou. Studio Davida Chipperfielda proměnilo německý klášter ze 17. století
Studio světoznámého anglického architekta Davida Chipperfielda představilo svoji nejnovější realizaci – konverzi historického komplexu v německém městě Paderborn, který původně sloužil jako kapucínský klášter i nemocnice. Stejně jako v případě Galerie Jamese Simona na Muzejním ostrově v Berlíně zde architekti citlivým způsobem pracují s kontextem i samotnou historií objektu.
Gabriela Sládečková , 21. 12. 2020
KLÁŠTER, NEMOCNICE A SÍDLO RODINNÉ FIRMY
Historie komplexu původního kapucínského kláštera v památkovém srdci středověkého města Paderborn na severozápadě Německa sahá až do 17. století. O dvě století později začal objekt sloužit jako nemocnice sv. Vincenta – a její provoz pokračoval až do roku 2013, kdy jej koupila místní rodinná firma Jacoby. Ta se následně obrátila na slavné architektonické studio David Chipperfield Architects s cílem přeměnit historický komplex na sídlo firmy.
Více k tématu

Objekt se nedochoval ve své původní historické podobě – zásadnějšími úpravami prošel zejména během druhé světové války, kdy byl klášter výrazně poničen a následně opravován. Z toho důvodu bylo hlavním záměrem návrhu studia Davida Chipperfielda znovunalezení historických kvalit staveb skrytých pod nánosy jednotlivých úprav a jejich doplnění o nové budovy.

ODKRÝVÁNÍ HISTORIE
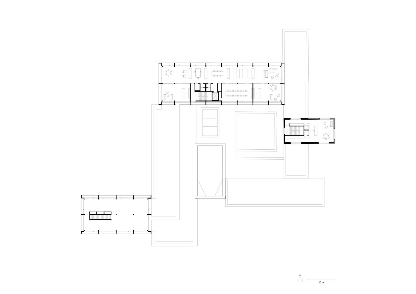
Podle dochovaných plánů z 19. století měl komplex původně čtyři křídla obklopující rajský dvůr. Ta se ovšem dochovala pouze zčásti. Při odstraňování poválečných přístaveb včetně veškerých omítek architekti objevili kromě samotného rajského dvora a původního východního křídla také historickou kapli a sklepení ze 17. století. Autoři se rozhodli tyto historické elementy z lomového kamene zachovat v jejich odhalené podobě a po dohodě s klientem je nechali zapsat pod památkovou ochranu.
Historickou ruinu poté doplnila dvou a třípodlažní křídla sloužící jako administrativní zázemí firmy, u kterých dominuje především beton v kombinaci s dřevěnými detaily. Architekti nová křídla navrhli s respektem k původní ortogonální struktuře objektu, tak aby se rajský dvůr opět ocitl v srdci areálu. Z původní kaple se pak stal nezastřešený vstup do celého komplexu.

UDRŽITELNÝ PŘÍSTUP
Architekti se během projektu snažili o maximálně šetrný přístup nejen k historickému objektu, ale taky k životnímu prostředí. Z toho důvodu pracovali s lokálními zdroji, zachováním a využitím starých konstrukcí zároveň výrazně snížili množství vyprodukovaného odpadu. Důležitým zdrojem se stala také místní řeka Pader, kterou budova dnes využívá pro výrobu energie s pomocí tepelného čerpadla.
Celý projekt mezinárodně působícího architektonického studia měla na starosti jeho berlínská pobočka, kterou vede Alexander Schwarz.

Tento článek vznikl za podpory společnosti Českomoravský beton v rámci popularizace tématu "Beton v architektuře".
Českomoravský beton, a. s., je holdingovou společností, která prostřednictvím vlastních betonáren a dceřiných společností dodává transportbeton v široké škále pevnostních tříd a druhů na území České a Slovenské republiky. Skupina, jejíž vznik spadá do počátku 90. let minulého století, v současné době provozuje sedmdesát nově postavených nebo zrekonstruovaných betonáren, které mají zavedený systém řízení jakosti ČSN EN ISO 9001 a splňují nejpřísnější ekologická kritéria. Celá skupina – holdingová společnost a její dceřiné společnosti – vystupují pod jednou společnou obchodní značkou Českomoravský beton.
- Země: Německo
- Město: Padeborn
- Realizace: 2020
- Plocha pozemku: 12 500.00m2