
Dřevostavba patří i do vilové čtvrti. Pavilon Beseda stojí na Ořechovce a hraje se u něj tenis
V pražské vilové čtvrti stojí nové sportovní zázemí tenisového klubu Beseda Ořechovka. Pavilon z dubového dřeva si můžete prohlédnout na místě, anebo na výstavě u příležitosti Salonu dřevostaveb. Začíná 3. dubna v Národní technické knihovně.
EARCH.CZ , 7. 3. 2025
V samém středu pražské vilové čtvrti Ořechovka stojí nová stavba. Možná byste čekali novou nebo zrekonstruovanou původní vilu, ale není tomu tak. V severní části Macharova náměstí vyrostla nová jednopodlažní budova. Jmenuje se Beseda a slouží jako zázemí tamního tenisového klubu.

Stavět v obklopení prvorepublikových vil byla výzva pro architekty ze studia Hnilička architects. Svým návrhem se prý snažili ctít výrazový charakter první republiky a proto využili klasických architektonických prvků jako je sokl, sloupový řád a překlad s římsou. Takové prvky, které zdůrazňují řemeslné zpracování a tektoniku konstrukce. „Jednotlivé konstrukční prvky jsou viditelné, avšak celkově působí vzdušným dojmem a souzní s parkovým prostředím Macharova náměstí,“ dodávají architekti.
Co v besedě?
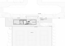
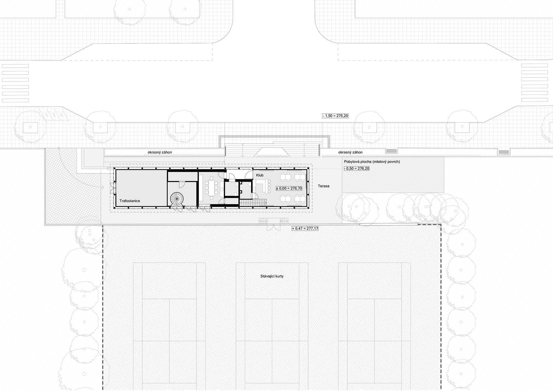
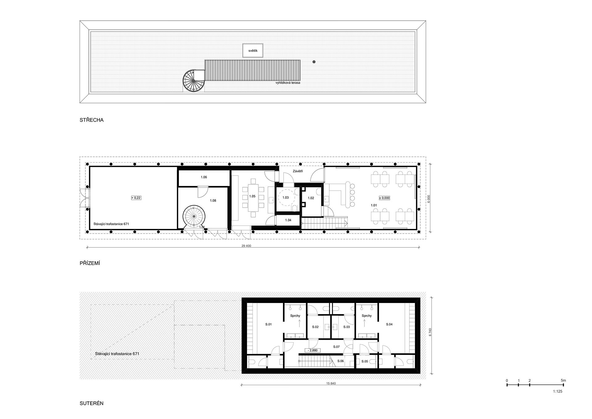
Beseda je jednopodlažní podsklepený objekt a svojí estetikou i tektonikou připomíná lázeňský pavilon. Dělí se na dvě části. Západní část funguje jako technické zázemí. Není vytápěná a zahrnuje sklady sportovního náčiní a antuky a místnost trafostanice. Z této části také vedou schody, po kterých se dostanete na přístupnou pochozí střechu pavilonu s ocelovým zábradlím z nerezových sítí.

Východní část stavby je vytápěná a částečně podsklepená. Nachází se zde prosklená klubová místnost se zhruba 20 místy k sezení a s provozním zázemím. Tato místnost je těžištěm celého tenisového klubu Beseda Ořechovka. Můžou se tu potkávat hráči a trávit společně volný čas během i mimo sportovní utkání. Ze společné místnosti vede také přímý vstup na venkovní terasu, odkud máte výhled na tenisové kurty a můžete pohodlně sledovat tenisové turnaje.
V suterénu jsou umístěny šatny pro sportovce a toalety pro klub. Součástí přízemí je též veřejná toaleta, řešená pro osoby s omezenou schopností pohybu. Tato toaleta je přístupná samostatně z venkovního prostoru a může být provozována nezávisle na klubu.
O urbanistickém umístění stavby
Beseda stojí v parku. Je orientovaná podél chodníku, v přímé návaznosti na stávající tenisové kurty. Ořechovka má strukturu založenou na jasné geometrii, se kterou autoři návrhu při umístění objektu pracovali. „Stěžejním kompozičním prvkem je severojižní osa vycházející z ulice Spojená a vrcholící u pomníku obětem 1. světové války. Osa na kolmo protíná stávající společenský dům (čp. 250) i blok parku s tenisovými kurty,“ popisují architekti.

Právě na osu Macharova náměstí je navržen hlavní prosklený vstup do Besedy. Před vstupem architekti navrhli také pobytové schodiště, které veřejnosti nabízí příjemné místo k posezení s výhledy na nejživější část náměstí.
Dřevěná Beseda je nové komunitní místo na Ořechovce. Místní si tam mohou zajít na tenis a pak si dát nějaký nápoj. Kdo by chtěl o dřevostavbách vědět víc, může 3. dubna vyrazit na konferenci Salonu dřevostaveb. V ten samý den začíná také v Národní technické knihovně výstava, která bude následně putovat po celé České republice. Pavilon na Ořechovce bude jeden z dvaceti vystavených dřevěných realizací.
Více k tématu
O konstrukci: v hlavní roli dub a sklo
Hlavním stavebním materiálem nadzemní části je tvrdé dubové dřevo. Nosný systém pavilonu tvoří sloupy kruhového průřezu. Sloupy jsou spojovány s průvlaky pomocí ocelových patek a hlavic. Klubová místnost je převážně prosklená, otevřená do tří stran – na kurty, na terasu a směrem k ulici. Konstrukce výkladců se skládá ze subtilních kovových rámů s posuvnými a otočnými dveřmi. Podlaha klubu je navržena z litého terazza. Podhled tvoří dřevěný kazetový strop. Obložení plných částí fasády je řešeno širokými palubkami. Sokl, na kterém je konstrukce usazena, je navržen z betonu - viditelné části z pohledového betonu, popřípadě kamenicky opracované.
Článek vznikl v rámci mediálního partnerství se Salonem dřevostaveb.
- Autoři: Pavel Hnilička, Petr Bočan
- Ateliér: Pavel Hnilička Architects+Planners
- Země: Česká republika
- Město: Praha
- Investor: Městská část Praha 6
- Hlavní inženýr: Martin Jirsa
- Hrubá podlažní plocha: 242 m²
- Zastavěná plocha: 130 m²
- Užitná plocha: 168 m²
- Obestavěný prostor: 883 m³
- Projekt: 2020
- Realizace: 2024