
Nový domov pro zlatnici. Bydlí na statku kousek od Berlína
Citlivá rekonstrukce vdechla nový život starému zemědělskému stavení. Opravovalo se jen to, co bylo potřeba. Praskliny na fasádě zůstaly a vyprávějí příběh stavení.
Viktorie Majoberová , 23. 1. 2025
Pouhou půl hodinu cesty autem severně od Berlína se nachází oblast zvaná Braniborská marka. Stojí tu starý venkovský statek, který patří jedné zlatnici. Ta se rozhodla vdechnout mu nový život a vytvořit si ve stavení nový domov. Rekonstruovalo se ale minimálně – hlavním požadavkem bylo zachovat co nejvíce prasklin, které vyprávějí starý příběh domu.
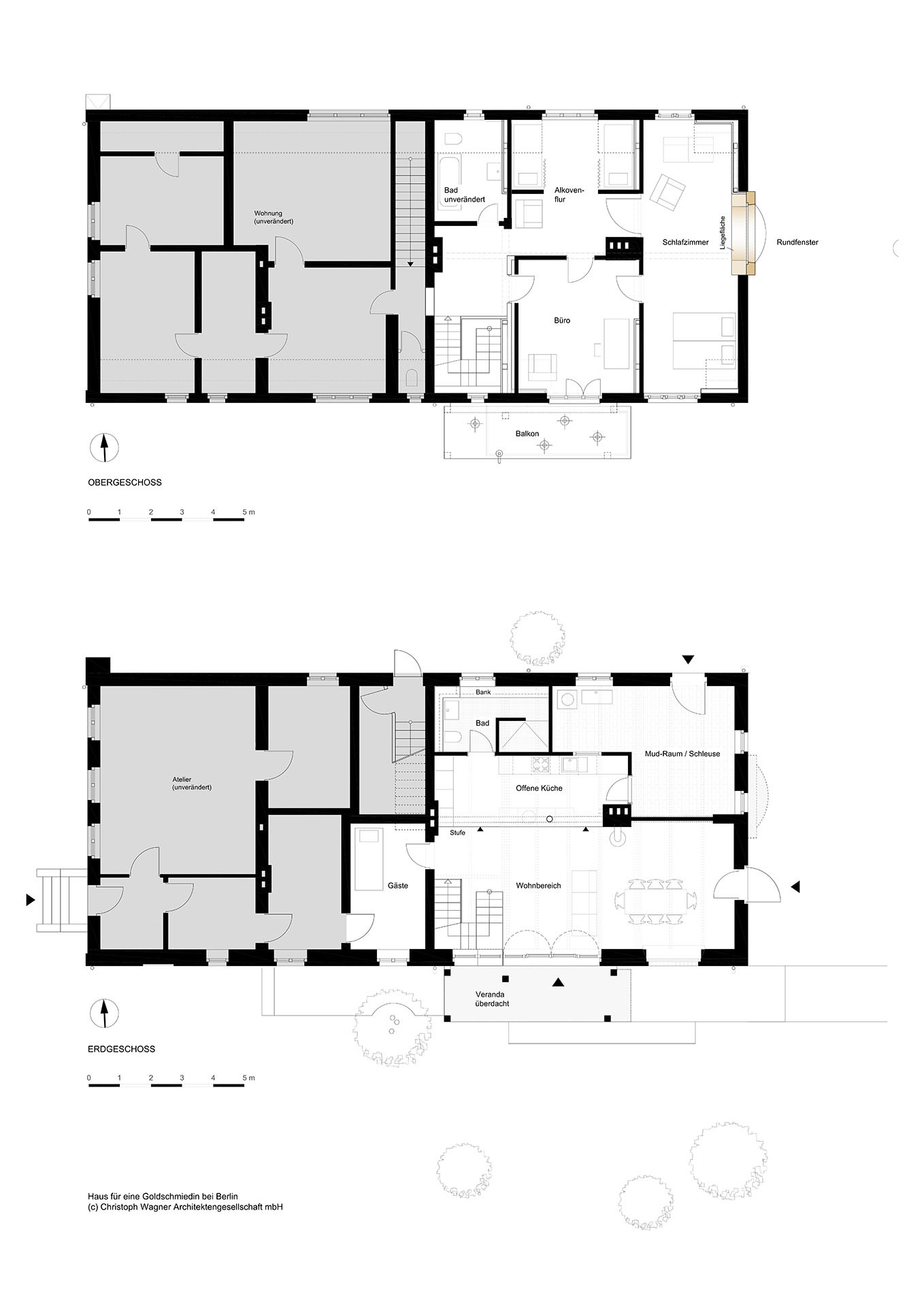
Původně byla budova součástí statku, nacházely se tu stáje a dílny. V 50. letech 20. století se ale tohle využití změnilo a budova byla přestavěná na čtyři byty. Majitelka se nyní rozhodla zachovat pouze jediný původní byt, ve kterým žije stálý nájemník a zaměřila se na úpravy zbývajících prostor, ve kterých si vytvořila svůj vlastní nový domov.

Architekti z ateliéru Christoph Wagner Architekten (CWA) přetvořili dům citlivým způsobem, který respektoval jeho historii a vztah k okolní zahradě. Na dvou podlažích vznikl nový byt o rozloze 140 m², který spojuje obytné i pracovní prostory.
Rekonstrukce s citem
Kompletní rekonstrukce nebyla v plánu – opravy se prováděly pouze tam, kde to bylo nezbytné z konstrukčního hlediska. Veškeré zásahy navrhli architekti tak, aby zachovali autentický charakter stavby, její vrstvy času a patrné stopy minulosti.
Jedním z nejvýraznějších zásahů je nové kulaté okno v původně bezokenní štítové zdi. Okenní otvor je na fasádě umístěn asymetricky a propouští denní světlo hluboko do interiéru. Zajímavým detailem je zakřivený, na míru vyrobený mosazný okenní rám, který odráží světlo a zároveň chrání dřevo před vodou. Skleněná tabule atypického okna je přímo zasazená do dřevěného arkýře z CLT panelu.

Další výrazný prvek, který změnil výraz statku, je nové terasové okno navržené na jižní fasádě. Nové okno příjemně prosvětluje interiér a spodní patro je díky němu v přímém kontaktu s okolní zahradou.
Architekti dovnitř statku navrhli nové schodiště, které propojuje dvě obytná patra. Probourali část stropu a interiér díky tomu působí velkoryse a vzdušně. „Schodiště zároveň vymezuje soukromí horního patra – boční stěna horního schodišťového ramene slouží jako vizuální bariéra a zasahuje do prostoru jako výrazný architektonický prvek,“ vysvětlují autoři.
Více k tématu
Materiály a re-use
Veškeré cihly, které zbyly z demolice stěn, byly znovu využity na nenosné vnitřní stěny. Podlahy byly vytvořeny z kombinace skleněného štěrku a regionální hliněno-konopné směsi, která má velmi odolné vlastnosti, což umožnilo obejít se bez hydroizolačních membrán. Jako materiál pochozích ploch byly zvoleny staré repasované parkety z jiných objektů.

Architekti z ateliéru CWA tvrdí, že rekonstrukce je dlouhý proces. U tohoto projektu pro ně bylo důležité dům nejprve poznat a pochopit, aby zásahy mohly ctít jeho charakter. Tento přístup vyžaduje čas a trpělivost. Dům prý působí, jakože není dokončen – a možná nikdy nebude. „Architektura se totiž neustále vyvíjí spolu s těmi, kdo ji obývají,“ zní jejich filosofie.
- Ateliér: Christoph Wagner Architekten GmbH
- Země: Německo
- Statické řešení: DBV Ingenieure Berlin
- CLT: FHS Holzbau GmbH, Grassau
- Hliněno-konopné výplně: Hanffaser Uckermark, Prenzlau