Dům pod 5 milionů. Je malý, ale může vyrůst
Úsporný dům se stavěl tak, aby měl co nejmenší náklady a co nejjednodušší tvar. Architekt Luka Križek ale chtěl také architektonickou čistotu a krásu. Výsledkem je krychle jako z učebnice modernismu.
Karolína Vránková , 5. 2. 2026
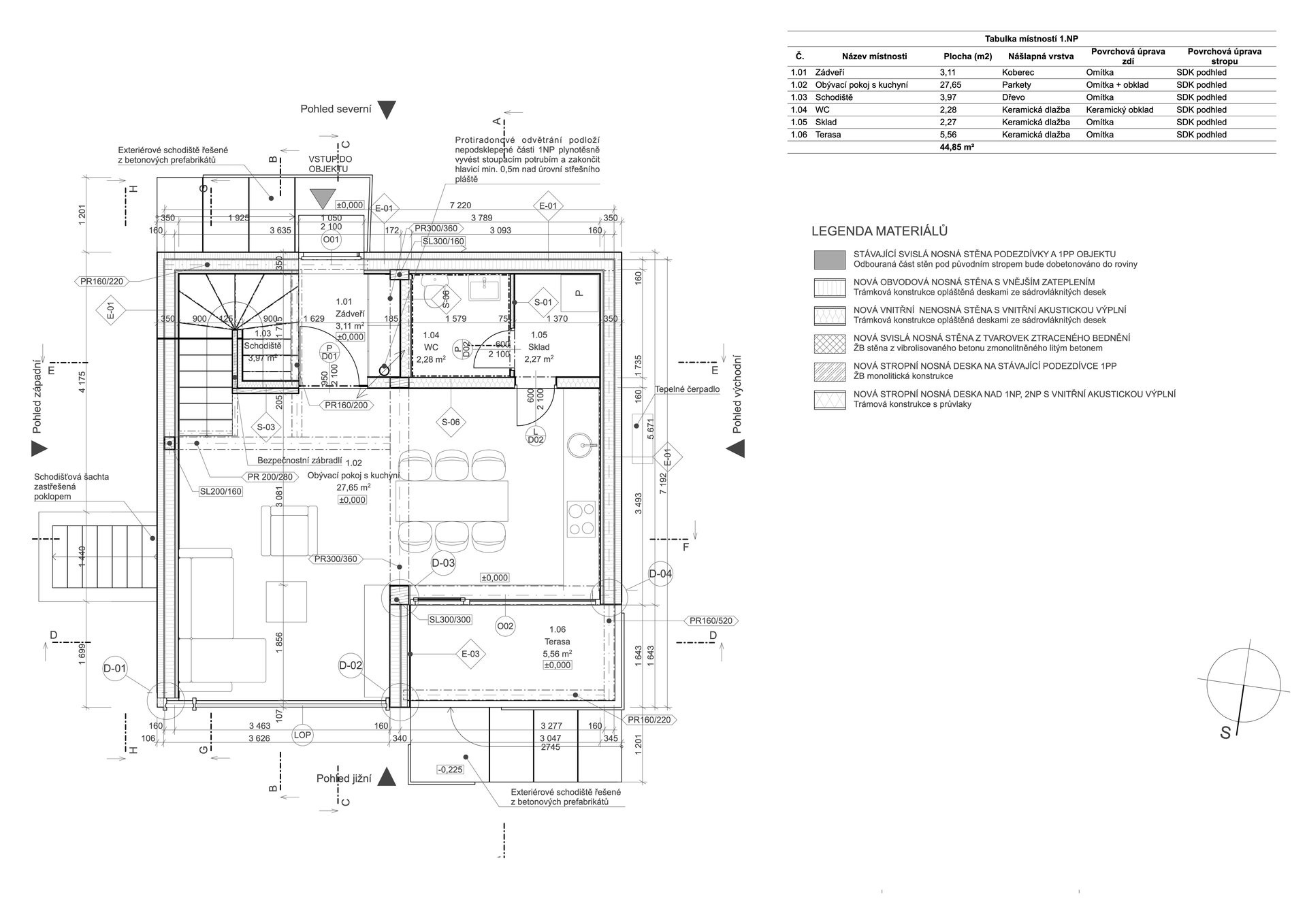
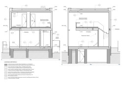
Dům má půdorys jen 7,5 krát 7,5 metrů, je to dřevostavba opláštěná sádrovláknitou deskou a není tu nic zbytečného. Proto stál pouhé 4,4 miliony bez DPH. Rodině se dvěma dětmi stačí, a kdyby bylo potřeba, dá se snadno přistavět.
„Jedinečnost domu spočívá v tom, že umožňuje růst společně s přibývajícími potřebami rodiny. Při zvyšujících se plošných nárocích je možné k domu velmi snadno připojit modulární jednotku, která dům rozšíří o potřebnou funkci,“ vysvětluje základ své úvahy architekt Luka Križek.

Napomáhá tomu i technologie suché výstavby, jedná se o konstrukci z dřevěných KVH hranolů o průřezu 60×160 mm, opláštěných sádrovláknitou deskou. Je to cenově příznivý a rychlý způsob výstavby, umožňuje přistavování dalších modulů. Také všechny ostatní materiály a postupy byly co nejúspornější – dům má například i plastová okna. Hlavní luxus byla velká prosklená plocha přes téměř celou severní stěnu domu, ta má ovšem rám z hliníku.
Jak dům funguje? V přízemí má rodina hlavní pobytovou místnost s kuchyní propojenou přes velkoplošné sklo se sadem, je tu také sklad a WC. V patře se nachází pracovna, a to na ochozu nad obývacím pokojem – odtud se dá dívat dolu do místnosti anebo přes velké okno na scenérii vltavského údolí. Najdeme tu také dětský pokoj a ložnici.

Dům je částečně podsklepený. To je pozůstatek původní chaty, která tu stála dříve. Kvůli špatnému technickému stavu bylo však nutné ji zbourat. Na místo ní vyrostla forma mnohem elegantnější, krychle. Čtverce stěn člení čtverce oken a doplňují je kvádry venkovního schodiště a terasy. „Těmito jednoduchými prostředky bylo docíleno maximálního výtvarného efektu,“ říká architekt Luka Križek; schválně se vyhnul i všem módním a trendovým záležitostem jako jsou třeba barevná okna. „Zvolil jsem tu úplně nejjednodušší formu,“ shrnuje.
Více k tématu
Je zajímavé, že projekt měl původně stát na druhé straně vltavského údolí v chatové osadě v Mníšku pod Brdy, také na základech původní chaty. Nerealizoval se, ale po více než deseti letech byl postaven na novém místě. Vzhledem ke své jednoduchosti a čistotě nijak nezestárl. A nepřišel ani o výhled na vysílač Cukrák – ten byl totiž jak z původní parcely, tak z té současné.
- Ateliér: IO Studio
- Autoři: Luka Križek
- Země: Česká republika
- Fotograf: Petr Toman
- Dodavatel stavby: Dřevostavby Kučera
- Realizace: 2022
- Město: Vrané nad Vltavou