Když se z rodinného domu odstěhují děti. Proměna řadového domu na Břevnově
Řadový rodinný dům na pražském Břevnově prošel v tomto miléniu už druhou zásadní rekonstrukcí. Ne proto, že by dosloužil, ale proto, že se proměnila životní situace jeho obyvatel. Už v něm nežije pět lidí, ale jen dva. Aby jim nebyl zbytečně velký, musel se znovu proměnit.
Adéla Vaculíková , 16. 1. 2026
Původní dům z 50. let se na přelomu tisíciletí rekonstruoval podle návrhu studia ADR pro pětičlennou rodinu. O více než dvacet let později se k němu architekti vracejí znovu, tentokrát ateliér Mimosa architekti. Děti se odstěhovaly, jejich někdejší pokoje zůstaly nevyužité a dům se ocitl v typické situaci, při které řada rodičů zvažuje stěhování do menšího.
Na Břevnově se ale majitelé rozhodli jinak. Dům pro ně dál funguje jako rodinná základna – místo pro setkávání širší rodiny, oslavy, zázemí pro přátele, kteří u nich často přespávají. Nešlo tedy o zmenšení ale změnu vnitřního rytmu stavby.
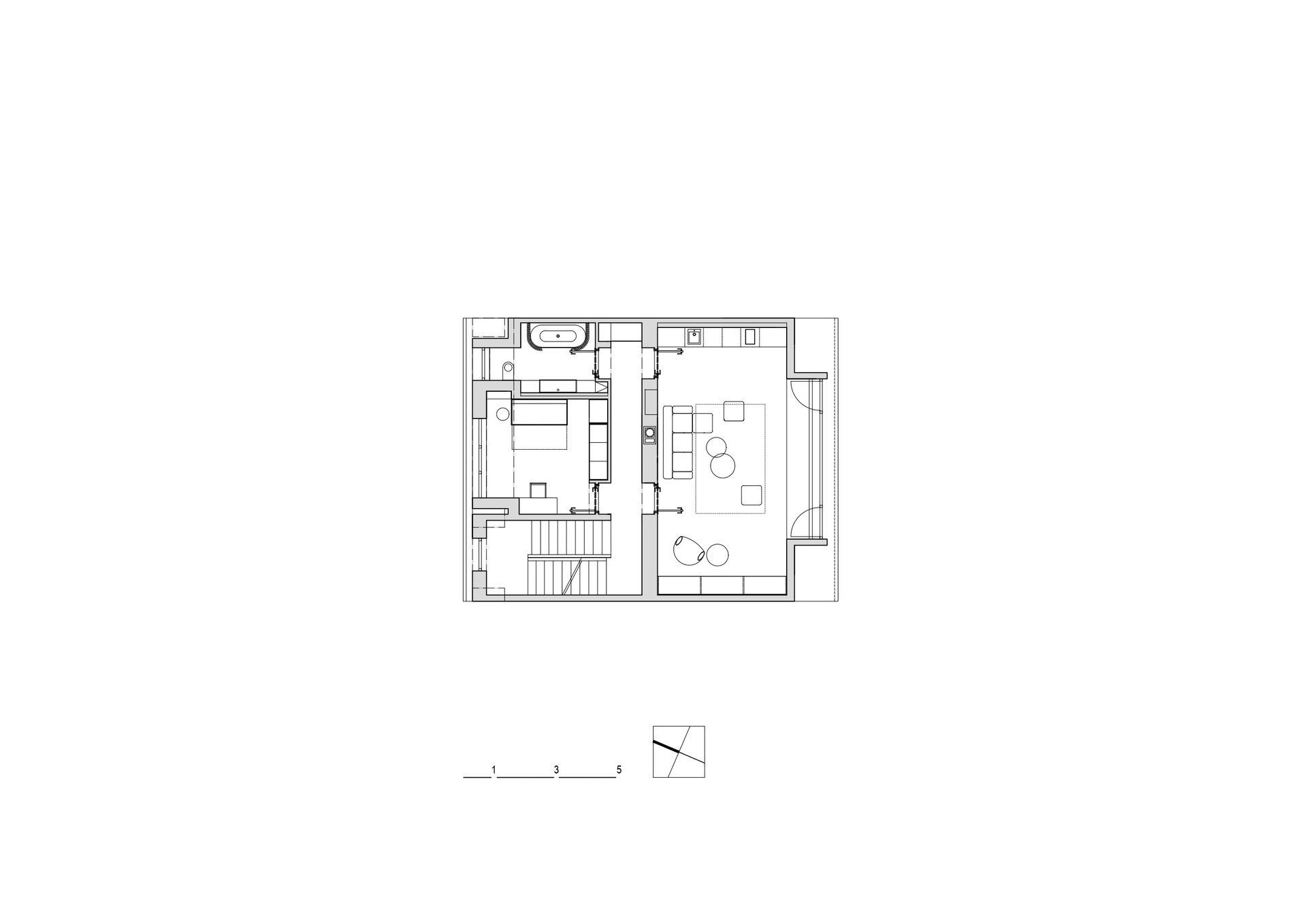
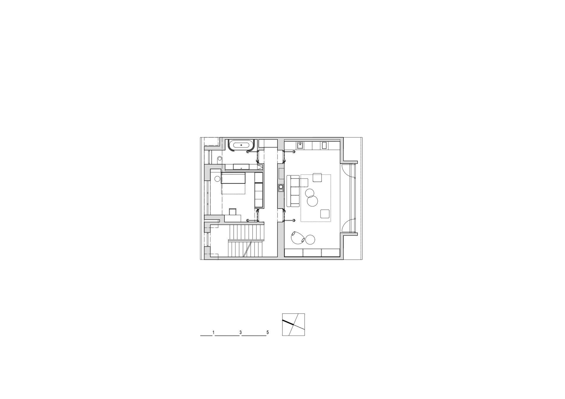
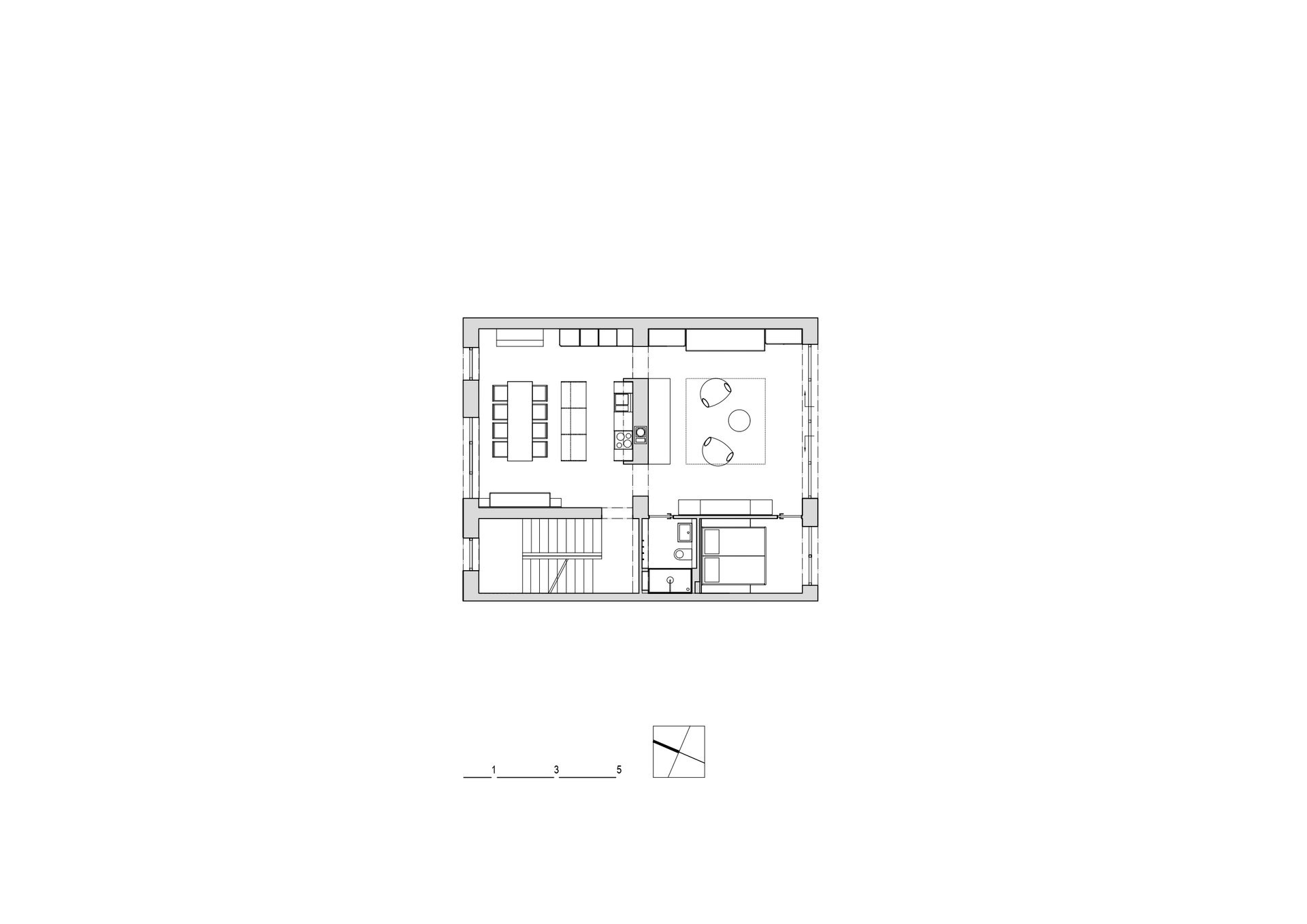
Architekti proto dům rozdělili do dvou jasně čitelných částí. Přízemí slouží každodennímu životu manželského páru, zatímco patro s podkrovím funguje jako společenská a hostovská zóna.
V přízemí se dnes soustředí kuchyně s jídelnou, obývací pokoj a nově také ložnice s koupelnou. Právě ty v původní dispozici chyběly. „Podařilo se vyšetřit místo zmenšením průchodu na zahradu a drobnými souvisejícími změnami“ popisují architekti. Každodenní život se tak odehrává na jedné úrovni, bez nutnosti běhat po schodech a pocitu, že je tady pro dva prostě příliš mnoho prostoru.

Patro, dříve vyhrazené dětem, změnilo charakter. Někdejší dětské pokoje se proměnily v salon pro slavnostní setkání, společné večeře i promítání filmů. Podkroví pak poskytuje zázemí pro hosty i při delších pobytech. Obytná plocha se nezmenšila, jen se jinak hierarchizovala.
„Navenek dům zásadní rekonstrukci vnitřních prostor příliš nedává znát,“ říkají architekti. Kdo ale ví, jak dům vypadal předtím, pozná, že jsou některé věci jinak – a to především kvůli vyměněným oknům, která teď lépe reagují na charakter jednotlivých místností. Použila se okna různých konstrukčních i materiálových řešení: dubová, bělená smrková či bezrámová. Nejvýraznější změnou je nový vikýř do zahrady, který nahradil původní dvě malá okna.

Dům dostal také novou fasádu s tlumenější barevností. A stejná zdrženlivost pokračuje i v interiéru – převládá bílá a šedá výmalba, místy doplněná překližkou, nové vybavení je z masivu. Z původního se zachovaly třeba parkety, schodišťové zábradlí či dveře s nadsvětlíky – úplně všechno tedy pryč nešlo.
Více k tématu
Dále interiéry vybavují věci, ke kterým mají majitelé osobním vztah. „Kamna v obývacím pokoji vytvořil přítel rodiny Jürgen Rajh, truhlářské vybavení z masivu vyrobil syn Jakub, skleněná socha na kamnech je dílem kamarádky Dany Vachtové. Textilní prvky si investorka ušila sama z vlny dovezené ze Skotska, světla nad jídelním stolem pocházejí z dánského bazaru,“ vyjmenovávají Mimosa architekti. V nové podobě starého domu má tohle všechno své místo.
- Ateliér: Mimosa Architekti
- Autoři: Jana Zoubková, Petr Moráček, Pavel Matyska
- Země: Česká republika
- Město: Břevnov-Praha
- Realizace: 2025
- Užitná plocha: 314 m²
- Plocha pozemku: 390 m²
- Zastavěná plocha: 190 m²
- Fotograf: Petr Polák
- Truhlářské výrobky: Duba hardwood manufacture
- Dodavatel kamene: Trikamon
- Osvětlení: Bulb
- Keramické obklady: Archtiles
- okna: Janošík Okna-Dveře