Filmový kotouč jako zdroj inspirace. Prachatice se dočkaly rekonstrukce letního kina
Letní kina se opět stávají vyhledávanou atrakcí – jenže ve většině měst jsou až příliš velká a zchátralá. V Prachaticích prošlo staré letní kino zdařilou modernizací. Jako inspirace architektům posloužila mechanika filmového kotouče.
EARCH.CZ , 11. 8. 2023
Druhá polovina 20. století byla dobou letních kin, která vznikala všude po republice a těšila se velké návštěvnosti. Postupem času ale začala jejich obliba upadat, spousta velkých areálů zela prázdnotou a vlastníci nevěděli, co si s nimi počít.
V posledních deseti letech se ale letní kina opět stala vyhledávanou rekreací pro teplé měsíce, města se snaží vrátit jim zašlý lesk a zároveň je přizpůsobit současným požadavkům. Jedno takové kino, které se dočkalo kompletní rekonstrukce podle projektu studia Mimosa Architekti, se nachází v Prachaticích nedaleko městského centra v blízkosti Štěpánčina parku.
Více k tématu
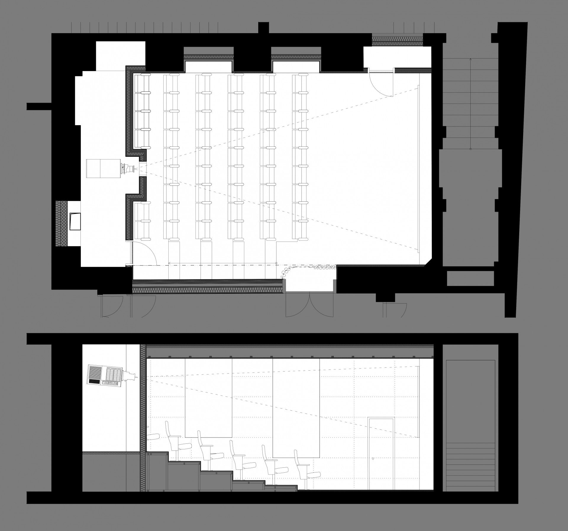
„Kompletní rekonstrukcí se chátrající letní kino s přibližně 800 místy k sezení změnilo na funkční areál s realističtější kapacitou přibližně 350 míst. Zmenšení areálu umožnilo vytvoření odpovídajících ploch mezi bytovou výstavbou a vlastním areálem, realizaci akustických opatření a v neposlední řadě vytvoření nové cesty do centra přes park,“ vysvětlují autoři návrhu.

Původní objekty kina byly pro svůj špatný technický stav a nevyhovující dispozice odstraněny a nahrazeny třemi novými stavbami, které svou černou barvou a povrchem z vlnitého plechu udávají nový charakter místa. Jeden z nich se nachází u vstupu s pokladnou, bufetem a sociálním zázemím, jeden obsahuje promítací kabinu, na třetím je umístěna promítací stěna.
„Systém kotoučů, vedoucích film v promítačce, návrh volně přepisuje do formy zastřešení s lany. Plachta zastřešení, subtilní ocelové konstrukce a vlnitý plech vytvářejí dojem lehkých, zdánlivě dočasných, „letních“ objektů,“ upřesňují autoři koncept návrhu.

Vlnitý černý plech podle autorů odkazuje „k filmová iluzi“ a jeho segmenty se podobají sekvenci snímků filmu. Dalším charakteristickým materiálem je žula. Je použitá na dlažbu a na výplně gabionových stěn oddělujících areál od bytové zástavby.
Mimo své akustické vlastnosti textilní zastřešení kina také „zvyšuje komfort účinkujících i diváků ať už ve slunečném odpoledni či deštivém večeru.“ doplňují autoři. Pro autory však bylo důležité, aby nad hlavami diváků dál bylo volné nebe a atmosféra letního večera.

Úpravu letního kina doplnila rekonstrukce Štěpánčina parku od studia M2AU, jež byla dokončena přibližně ve stejnou dobu. Prachatice se tak dočkaly komplexní obnovy a kultivace veřejného prostranství nedaleko městského centra. Mimo místa pro filmovou projekci a rekreaci zde vzniklo kvalitní kulturní zázemí i pro další akce a letní atmosféru si tu mohou užít místní i návštěvníci.
- Ateliér: Mimosa Architekti
- Autoři: Petr Moráček, Jana Zoubková, Pavel Matyska
- Spolupráce: Zdeněk Hromádka
- Země: Česká republika
- Město: Prachatice
- Adresa: Na Sadech, 383 01 Prachatice
- Projekt: 2015
- Realizace: 2023
- Zastavěná plocha: 218 m²
- Užitná plocha: 164 m²
- Plocha pozemku: 2949 m²
- Investor: Město Prachatice