Hotel Bridge v polské Vratislavi se začleňuje do zástavby historického centra

V historické části polské Vratislavi vyrostl nový Hotel Bridge, jehož návrh pojali architekti ze studia Forum Architekci s ohledem na kontext prostředí Tumského ostrova. Stavba v sobě kombinuje moderní technologie a výrazové prostředky s požadavky na památkovou ochranu okolních historických budov.
Karolína Řeháčková , 18. 6. 2020
Sklo, hliník a pálené cihly
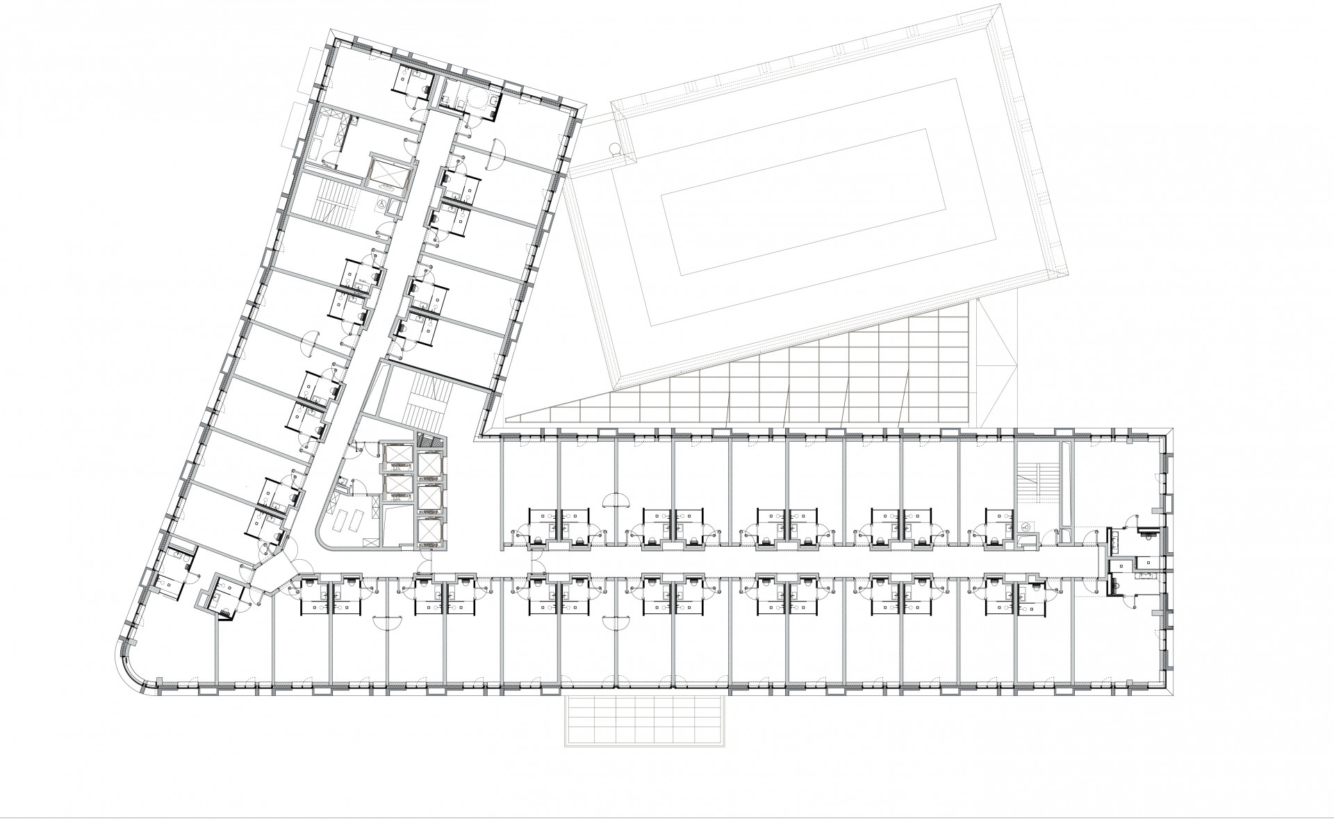
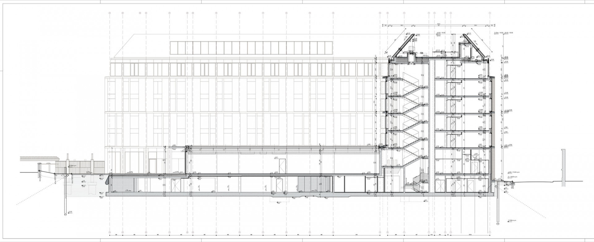
Z urbanistického hlediska uzavírá budova hotelu náměstí s katedrálou sv. Jana, které představuje východní bránu do nejstarší části Vratislavi. Architekti se snažili navrhnout tvar budovy tak, aby vhodně doplnila siluetu Tumského ostrova při pohledu z nábřeží řeky Odry. Vznikla tak hmota s pravidelným horizontálním i vertikálním rastrováním, zakončená masivní střechou na prosklené podnoži lehce ustoupeného podlaží.
Charakter budovy do značné míry definují použité stavební materiály. Architekti z vratislavského architektonického studia Forum Architekci použili jako dominantní materiál cihly vypálené v historické Hoffmanově peci a právě tento tradiční materiál podporuje historickou kontinuitu místa. Do kontrastu s pálenými cihlami pak vstupují velké prosklené plochy z drátoskla vložené do hliníkových rámů. Zdůrazněná vertikalita zděných prvků spolu s rastrováním sloupko-příčkové fasády z hliníkových profilů Aluprof poukazuje na záměr autorů o vytvoření určité reminiscence na historickou architekturu. Uplatnění systému hliníkových oken s vynikajícími izolačními vlastnostmi spolu s řadou dalších inovativních technických řešení přineslo budově certifikát LEED Gold.
Více k tématu

Nový život v nejstarší části města
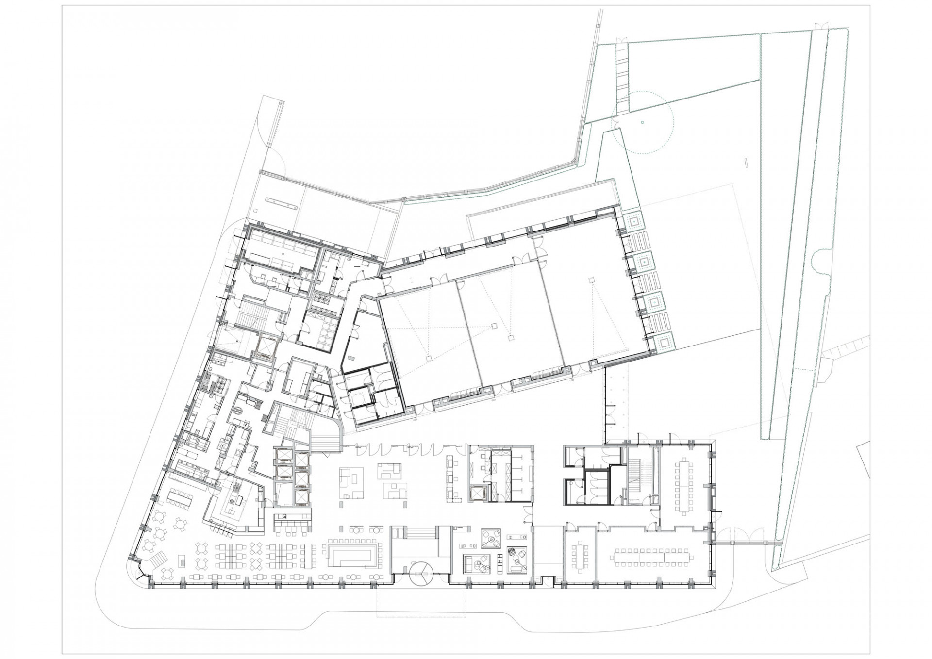
Hotel Bridge se otevírá do sousedství proskleným parterem, kam architekti umístili veřejné funkce stavby, které oživují historický prostor náměstí. Součástí návrhu nové budovy hotelu bylo i dořešení parkové úpravy před katedrálou sv. Jana, kde kromě zeleně vznikly také nové komunikace pro pěší i cyklisty.
Snahou autorů bylo začlenit hotel nejen do historické struktury města, ale i do života této čtvrti. Hotelová zahrada a střešní terasa slouží jak hotelovým hostům, tak i všem místním obyvatelům a návštěvníkům Vratislavi. Zahrada se vedle relaxace snaží plnit i vzdělávací funkci. Jeden z edukativních prvků představují neobvyklé sluneční hodiny s děrovaným gnomonem s názvem „Eye of Time“. V interiéru hotelu pak vzniklo několik nástěnných grafik, které odkazují na historii tohoto místa i celé Vratislavi.

v historickém centru Tumského ostrova ve Vratislavi
Tento článek vznikl za podpory společnosti ALUPROF SYSTEM CZECH s.r.o.
- Ateliér: Forum Architekci
- Země: Polsko
- Město: Vratislav
- Ulice, číslo: pl. Katedralny 8
- Realizace: 2019
- Užitná plocha: 12 700.00m2