
Jednoduchou dřevěnou chatu na jihočeském venkově oživuje prostorné zapuštěné zápraží
V jihočeské obci Senotín vyrostl drobný rekreační objekt navržený studiem Majo architekti. Domek respektuje charakter a měřítko okolní zástavby a je ukázkou dobře orientované stavby.
EARCH.CZ , 13. 2. 2023 / Advertorial
Malý dům navrhli Majo architekti pro fotografa, který jej plánuje pronajímat k rekreačním účelům. Domek stojí v jihočeské vesničce Senotín, která má pouze na 30 obyvatel a její zástavbu tvoří především tradiční podlouhlá stavení. „Jedná se o novostavbu malého rodinného domu, který bude sloužit především k individuální rekreaci,“ říkají architekti o objektu, který vyrostl vedle vzrostlé třešně, a proto nese název Dům pod třešní.
Více k tématu
Cílem autorů projektu bylo novostavbu přizpůsobit rázu místa. Umístění a orientace domu proto respektuje charakter a měřítko okolní zástavby. Hřeben střechy je rovnoběžný s vrstevnicí svahu a odpovídá tak okolním objektům. „Je umístěn v zadní části pozemku zhruba 25 metrů od obecní komunikace,“ dodávají architekti.

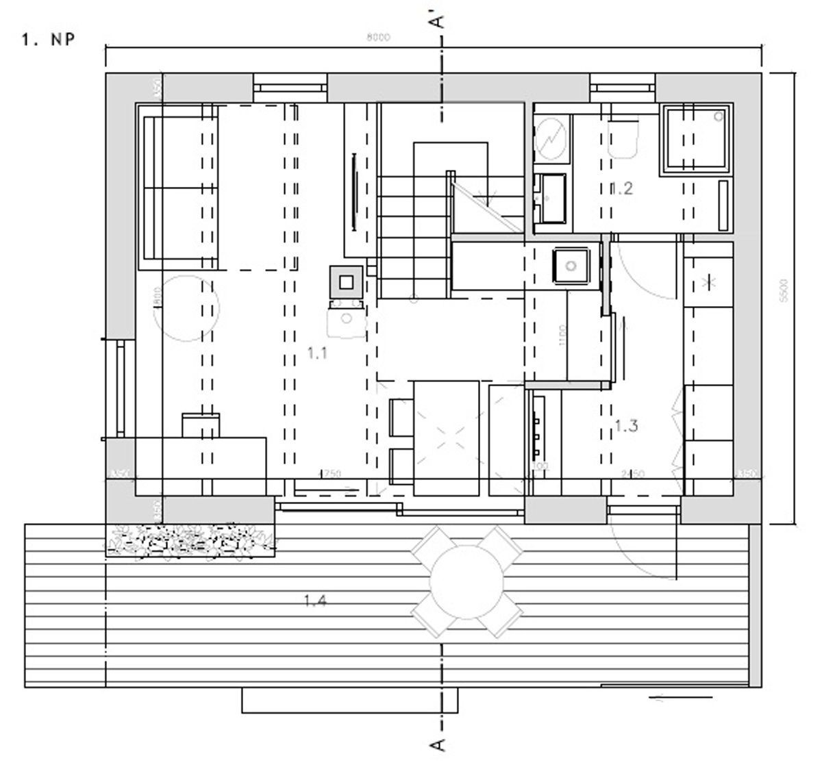
Nejvýraznějším prvkem domu, jehož zastavěná plocha je pouze 44 metrů čtverečních, je velkorysá zapuštěná terasa, kterou před povětrnostními podmínkami chrání přesah střechy. Tu architekti s ohledem na místo navrhli jako sedlovou, dům tak dostal tradiční siluetu. Skládaná je z cementovláknité krytiny Cembrit Rhombus, která je díky svým čistým liniím a trvanlivému povrchu vhodná i pro střechy moderních staveb v náročných klimatických podmínkách. Jako fasádní obklad pak architekti zvolili dřevo s šedobílým a přírodním nátěrem, na tyto barvy navázalo i ladění interiéru.

V přízemí rekreačního domu se nachází hlavní obytný prostor, jehož příjemnou atmosféru dotváří krbová kamna. Po schodišti se dá vystoupat do patra, kde se nachází ložnice a menší pokoj. Podlahy, podhledy i schodiště v interiéru jsou zhotoveny ze dřeva stejně jako povrchy terasy kryté přesahem střechy.
- Autoři: Martin Poláček, Štěpán Jablonský
- Ateliér: majo architekti
- Země: Česká republika
- Město: Senotín
- Projekt: 2016
- Realizace: 2017
- Zastavěná plocha: 62 m²