
Architektura
/
občanské stavby
Kampus pražské univerzity doplnil zahradní altán z vrbového proutí od IO Studia
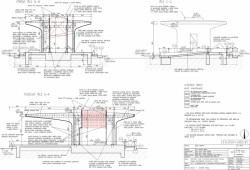
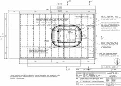
IO Studio Luky Križka navázalo na své dřívější projekty v areálu České zemědělské univerzity v Praze-Suchdole a doplnilo vysokoškolský kampus o nový zahradní altán. Objekt ve tvaru hřibu přináší kampusu dvě funkce: altán poskytuje venkovní odpočinkovou krytou plochu, v jeho podpoře se ale zároveň nachází strojovna chladící sousední přednáškové sály. Neobvyklé je materiálové zpracování, povrch altánu totiž tvoří vrbové proutí.
IO Studio , 18. 1. 2019
- Autoři: Luka Križek, Radek Bláha
- Ateliér: IO Studio
- Země: Česká republika
- Město: Praha 6 - Suchdol
- Ulice, číslo: Kamýcká, 129
- PSČ: 16000
- Realizace: 2017
- Zastavěná plocha: 131.00m2
- Plocha pozemku: 2 000.00m2