Klášter, ve kterém se místo modlení pracuje a pije káva. Chátrající památku v Rožnavě zachránil místní spolek
V bývalém klášteře v Rožňavě se dá ubytovat v novém apartmánu, který propojuje historii objektu se současnou architekturou. Autoři za svojí práci získali ocenění CE ZA AR.
Viktorie Majoberová , 17. 10. 2024
Františkánský klášter ve slovensko-maďarském pohraničí dlouho chátral. Až do chvíle, kdy se ho v roce 2015 rozhodli místní aktivisté a občanské sdružení OZ Kláštor transformovat. Společně s dobrovolníky a architekty přetvořili starý objekt na kulturně kreativní centrum s různorodými funkcemi. Prostor, kde původně žili mniši, se proměnil na coworkingové kanceláře, ateliéry, kavárnu a knihkupectví. Cíl byl jasný. Zachovat historickou hodnotu objektu a zároveň vytvořit prostor pro současnost.
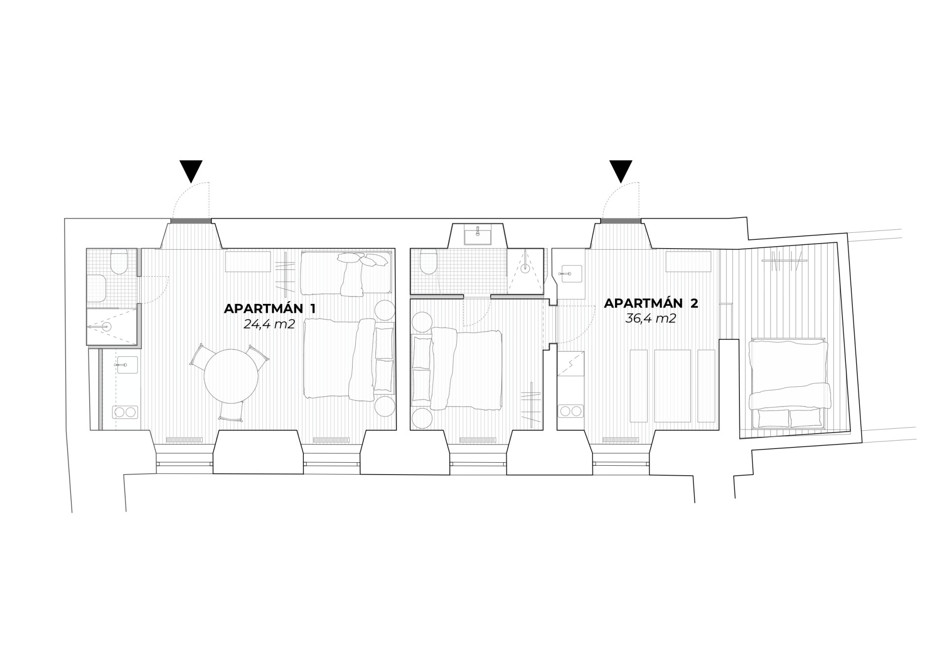
Součástí areálu jsou také dva nové byty, obytné jednotky s koupelnou a kuchyňským koutem, které nabízejí možnost se v klášteře ubytovat. Ty citlivě zrekonstruovali architekti a architektky ze studia Sadovsky & Architects. Za svoji práci získali ocenění v soutěži CE ZA AR v kategorii Fenomény architektury.

Návrh bytů je minimalistický. Autoři a autorky totiž chtěli respektovat původní asketické prostředí kláštera. Materiálová paleta interiéru by se dala shrnout dvěma slovy: dřevo a omítka. Charisma interiéru vytváří především citlivě zrestaurované původní omítky. Ty v kombinaci se světlým odstínem dřeva dodávají interiéru pocit útulna. Všechny materiály, které Ateliér Sadovsky & Architects použil, jsou navíc lokální.

Podle odborné poroty je rekonstrukce kláštera v Rožnavě „ukázkou síly místní participace a kolektivního úsilí“. Vyzdvihují také to, jak se zde podařilo obnovit vrstvu místní historie a zároveň se ve městě posílil rozvoj komunity. „Podařilo se dosáhnout rovnováhy mezi tradicí a funkčností. Dříve chátrající budova se proměnila v příjemné kulturní centrum, které reaguje na potřeby současnosti,“ dodává porota CE ZA AR 2024.
Příběh kláštera
Základní kámen kláštera byl položen roku 1745, když do Rožňavy přišli františkáni. Dokončení prací se v pramenech datuje roku 1780, to už měl klášter 11 cel, refektář, kuchyň, dílny. A žilo tu osm mnichů. Klášter fungoval a rozvíjel se až do padesátých let dvacátého století.

Do jeho osudu tragicky zasáhla Barbarská noc v noci ze 13. na 14. dubna roku 1950. Příslušníci státní bezpečnosti na území celého Slovenska násilně zlikvidovali 76 mužských klášterů a mnichy deportovali. V následujících letech byl areál v majetku různých vlastníků, chvíli také fungoval jako domov důchodců. Postupně se ale dostal do majetku města. Ale chátral – až do roku 2015.
Více k tématu
Právě tehdy se objevilo sdružení OZ Kláštor. Po dlouhém přesvědčování jim Rožňava klášter pronajala na dalších dvacet let. Během rekonstrukce tu zorganizovali několik brigád, kterých se zúčastnily desítky příznivců projektu, místních i z dalekých koutů Slovenska.
A tak se podařilo chátrající sídlo obnovit. Znovu žije, i když jinak. Kromě nových apartmánů, do kterých se můžete přijet ubytovat, zde místní spolek pravidelně organizuje kulturní akce, například debaty či autorská čtení. Je možné se tady také jenom zastavit v kavárně. U pití kávy nebo čaje se nabízí pohled na nástěnnou malbu poslední večeře. Také tu se místnímu spolku povedlo odhalit.
- Ateliér: Sadovsky & Architects
- Autoři: Oliver Sadovský, Martin Červienka
- Země: Slovensko
- Město: Rožňava
- Projekt: 2021
- Realizace: 2022
- Podlažní plocha: 68 m²