Konverze továrny na výstavní prostory
Na okraji Milána, v areálu bývalé likérky, vyrostla ne jedna galerie, ale hned celý výstavní a umělecký areál. Fondazione Prada, nadace pro podporu současného umění, si zde zřídila své trvalé sídlo a někdejší výrobní prostory přeměnila na muzea, galerie, výstavní prostory, divadelní plochy a kino. Namísto továrny na alkohol tak nastoupilo celé umělecké městečko – a další z finalistů ceny Miese van der Rohe.
OMA , 23. 2. 2017
Komplex Fondazione Prada – nadace Prada – přitom podle svých autorů nechce být ani konzervací industriální památky, ani novou architekturou. Dva přístupy, které normálně zůstávají oddělené, zde koexistují v neustálé interakci a nabízí mozaiku fragmentů, které nelze redukovat na jediný dojem.
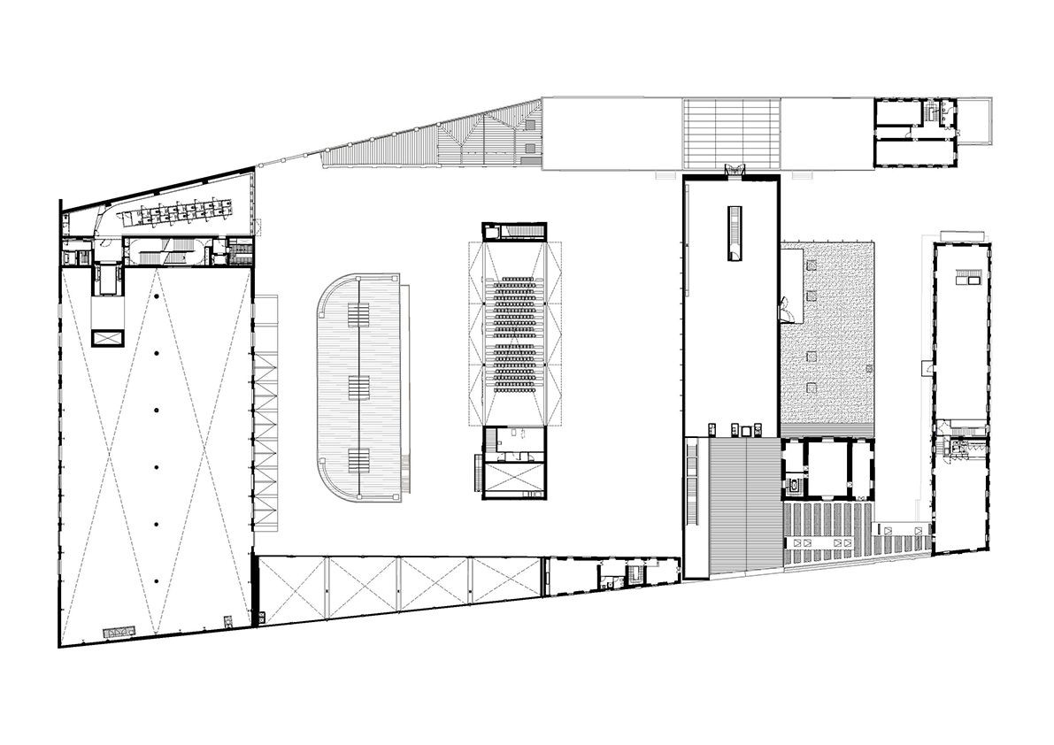
Nový komplex organizace Fondazione Prada byl navržen v bývalém průmyslovém areálu s nevídaně rozmanitým prostorovým rozvrhem. Architekti do tohoto repertoáru vkládají další tři budovy – velký výstavní pavilon, věž a kino – takže komplex Fondazione Prada nabízí nejen kolekci současného umění, ale i skutečnou sbírku architektonického umu. Nové, staré, horizontální, vertikální, široké, úzké, bílé, černé, otevřené, uzavřené – každý jeden z vzájemných kontrastů a zároveň všechny dohromady tvoří škálu dojmů, kterými Fondazione působí. Uvedení všech rozmanitých prostorových proměnných dává prostor pro pohyblivé a otevřené uspořádání, ve kterém architektura i umění těží ze sebe navzájem.
Areál se rozkládá na místě závodu na destilaci ginu z roku 1910, v průmyslové zóně Largo Isarco na jihu Milána. V komplexu nadace koexistují budovy nové i regenerované: staré sklady, laboratoře a varná sila, ale i novostavby obklopující rozsáhlý dvůr. Uvnitř stávajícího území stály původně dvě nezávislé struktury, z nichž jedna byla stržena, aby uvolnila místo rozsáhlému dvoru pro open-air akce. Mimořádná rozmanitost ve výsledku rozšiřuje repertoár prostor, v nichž lze umění vystavovat nebo předvádět. Jsou zde podium, prostory pro dočasné výstavy, multimediální auditorium… Nejdůležitější objekty potom autoři pojmenovali podle své funkce či vzhledu. Nazývají je Torre, Deposito, Cisterna, Velká hala, Podium a Kino.
Torre, nově postavená devítipatrová věž, je prostorem pro stálou výstavu kolekcí a aktivit nadace Prada.
V západní části areálu zase stojí Deposito, sloužící jako hybridní depozitář. Ten je určen ke skladování i vystavování exemplářů zároveň.
Cisterna, ležící na východ od objektu Velké haly, se dělí na tři místnosti a k jejím zvláštnostem patří vnitřní „kazatelna“, propojená s balkónem v exteriéru.
Kino v celku pozemku představuje autonomní jednotku, kterou lze zároveň propojit s prostorem dvora. Stačí jen složit mohutné skládací dveře. Svažitý prostor k sezení lze přitom proměnit v plochou podlahu. Prostor tak může měnit funkce, od veřejných divadelních událostí až po další krytý galerijní prostor.
Ve čtyřech stavbách, jež hledí do dvora ze severu, nakonec sídli nadační kanceláře a galerie se stálou expozicí. V nich nalezneme také „strašidelný dům“, budovu pokrytou lístkovým zlatem. Ke stavbám potom přiléhá Podium, stojící v křížení dvou kolmých cest, jež celý areál protínají. Podium tak představuje přirozené centrum uměleckého komplexu. Stavba kombinuje prosklený povrch podia v přízemí s galerií v prvním patře, opláštěnou hliníkovou pěnou.
Jak vidno, Fondazione Prada pokrývá celé mediální spektrum současného umění, a to včetně architektury. Pokud tedy tápete, jak proniknout do tajů moderního umění, potom je areál nadace Prada v Miláně tím pravým místem, kde začít.
Více k tématu
- Autoři: Rem Koolhaas, Chris van Duijn, Federico Pompignoli
- Ateliér: OMA, OMA, OMA
- Země: Itálie
- Realizace: 2015
- Město: Milano
- Realizace: 2015
- Užitná plocha: 28 340.00m2
- Plocha pozemku: 22 680.00m2