Kulturní památka Opavy prošla důslednou rekonstrukcí. Přibyla i nová kavárna ukrytá pod zemí
Poslední dochovaná stavba někdejšího zámeckého areálu v Opavě má za sebou velmi pestrou minulost, během které sloužila jako hradební kuchyně nebo sýpka. Důsledná rekonstrukce spojená s moderní přístavbou uzpůsobila Müllerův dům pro výstavy a další společenské a kulturní události.
EARCH.CZ , 24. 8. 2022
Opava se může pochlubit vůbec nejstarším muzeem ve střední Evropě, které bylo založeno už roku 1814. Sídlí v historické výstavní budově poblíž centra města, kde ji ke konci 19. století vystavěli podle návrhu vídeňských architektů Johanna Scheiringera a Franze Kachlera. Tou dobou v jejím sousedstvím stála už několik století mnohem skromnější stavba nazývaná dnes Müllerův dům.
Historie Müllerova domu sahá totiž až do 13. století, kdy stavba sloužila jako detašovaná kuchyně přemyslovského hradu. Později sloužil také jako hradní sýpka i obydlí hradního správce nebo rodiny místního právníka Müllera, po němž byl dům pojmenován. Stavba procházela v průběhu času pochopitelně řadou úprav, svou nynější barokní podobu získal přesně před 200 lety. Slezskému zemskému muzeu patří Müllerův dům od 20. let minulého století, kdy se v něm zřídily expoziční prostory. Současně se jedná také o poslední a jedinou dochovanou stavbu někdejšího zámeckého areálu, který byl kompletně zbořen.
Více k tématu
Ještě před pár lety se však tato kulturní památka nacházela v žalostném stavu, a to z velké části vinou neodborných stavebních zásahů v období normalizace. „V 80. letech minulého století byly provedeny sanační úpravy spodního vlhkého zdiva, které měly za následek ještě větší vlhnutí a destrukci suterénního zdiva. Ty se musely odstranit a nahradit soudobými opatřeními,“ říkají autoři nedávné rekonstrukce z ATELIERU 38, která domu vrátila jeho zašlou noblesní podobu a přizpůsobila jej pro expoziční účely Slezského zemského muzea.
Přestože byla věnována zvláštní pozornost původnímu krovu – poslednímu baroknímu v Opavě –, nepodařilo se jej kvůli špatnému stavu zachovat. Na jeho místě tak dnes najdeme jeho věrnou kopii včetně spojů, který v sobě integruje alespoň několik původních prvků.

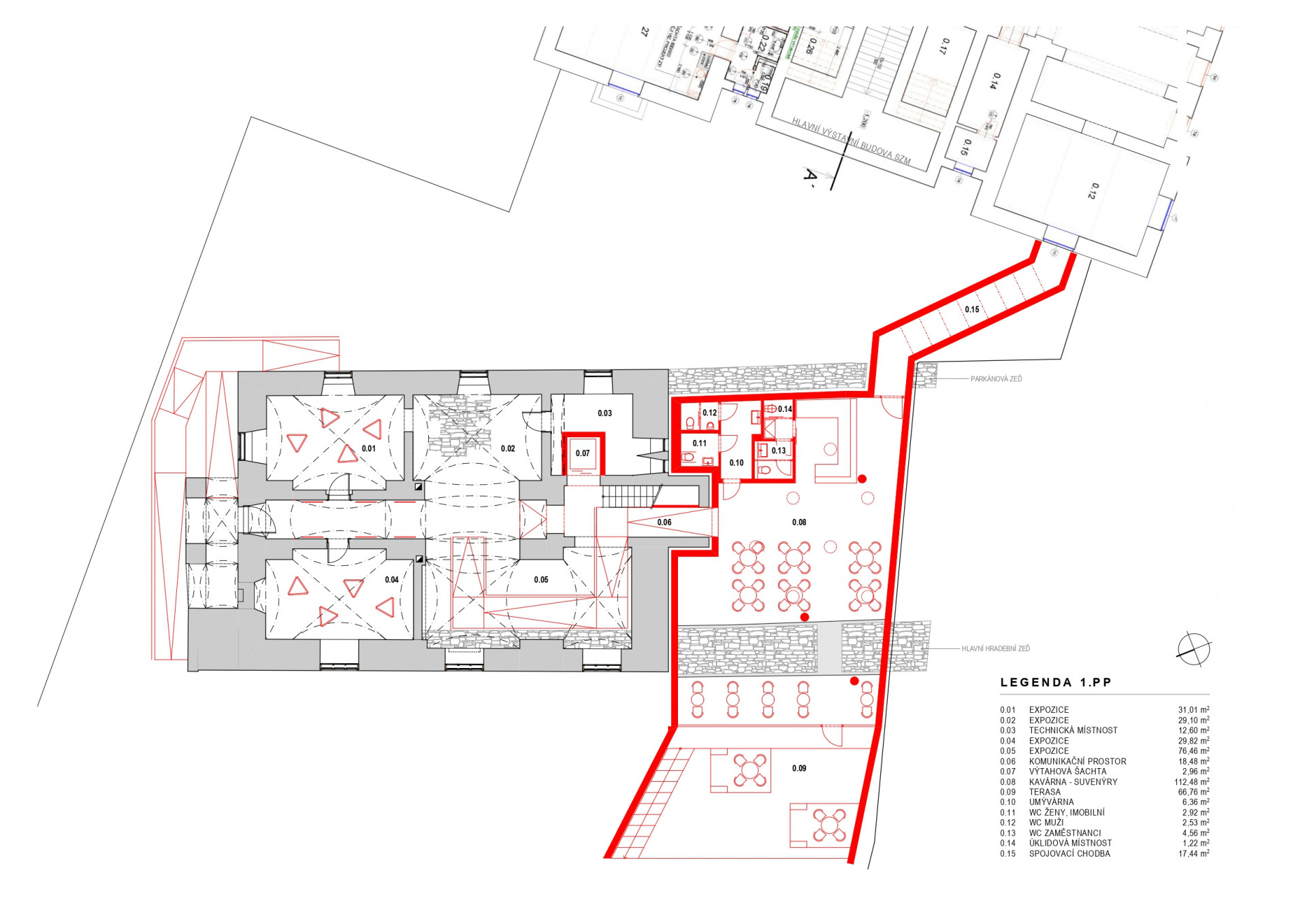
„Vlastní objekt jsme navrhli rekonstruovat s maximálním zachováním všech historických vrstev bez zásahu do vzhledu a objemu domu a při zachování jeho solitérní podoby,“ přibližují svůj záměr architekti. Z toho důvodu nechali novou přístavbu kavárny zapustit pod terén. Kavárna se otevírá do zahrady přes dřevěnou terasu a její součástí je hradební a parkánová zeď, které byly odkryty při archeologickém průzkumu. Torza historického upevnění Opravy tak dnes slouží jako výstavní exponáty.

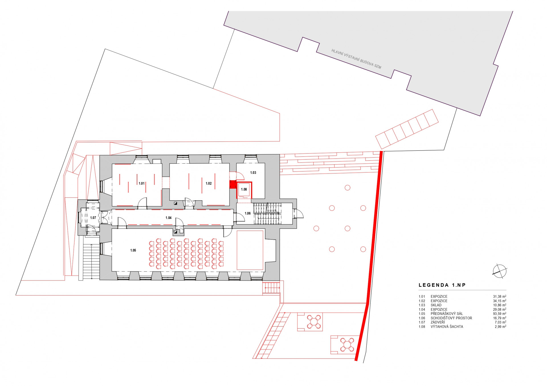
Další nové stavební vstupy do památky představuje výtah vložený do míst novodobých konstrukcí nebo podzemní propojení s historickým sídlem muzea. „V suterénu s klenbami jsme navrhli výstavní prostory, v patře podél západního průčelí přednáškový a výstavní prostor a v krovu se předpokládal další výstavní prostor,“ upřesňují architekti s tím, že podkroví je součástí prohlídkové expozice a nachází se v něm také typický kalhotový barokní komín.
„Je dobře, že se povedlo kulturní památce nalézt adekvátní využití. Bohužel se nepovedla prvotní idea, co nejvíce muzejní instituci otevřít veřejnosti. Současné vedení SZM díky nastaveným nájemním podmínkám nesehnalo nájemce kavárny, a tak chybí ta otevřená zvoucí náruč skrze zahradu směrem k městu,“ dodávají závěrem architekti.
- Ateliér: Atelier 38
- Autoři: Tomáš Bindr, Petr Doležal
- Země: Česká republika
- Adresa: Komenského 1/18, Opava
- Projekt: 2013-14
- Realizace: 2015-19