
Energeticky soběstačná chata od studia Ellement stojí v Beskydech na místě zaniklé usedlosti
Na úpatí Hostýnských vrchů a Javorníků na Moravě, v místě bývalé hospodářské usedlosti, vznikla jednoduchá chatka podle návrhu zlínského studia ellement architects. Chatka je řešena jako energeticky soběstačná dřevostavba na betonových základech, která se přizpůsobuje svažitému terénu. Součástí projektu byla také obnova cesty a ovocného sadu, který chatku obklopuje a vytváří nezaměnitelnou atmosféru. Chatka má vlastní studnu, elektřinu zajišťují fotovoltaické panely.
Ellement , 25. 5. 2023
architektura
K návrhu chatky-cabin vedla dlouhá cesta. Zadáním bylo původně ve stopě vyhořelé a lety smazané usedlosti postavit dům nový a vrátit do místa zpět život. Ještě stále jsem na cestě k domu, ale do místa se život postupně vrací. Na počátku byla obnova cesty a sadu, pokračovali jsme návrhem ovčína, který se postupně ze “salaše” abstrahoval na cabinu - chatku. Chatka je postavena nad bývalou usedlostí, využívá částečně svah pro umístění malého “sklepa” nad kterým je postavena kostka se střechou skloněnou k jednomu z rohu. Sklon není samoúčelný, ale reaguje na jižní orientaci fotovoltaických panelů. Chatka je soběstačná, energie jsou dostupné pouze ve velmi vzdáleném okolí. Zvenku kostka a uvnitř ní se odehrává velmi bohatý život, prostor je členěn na úrovně - oddělující vstup, pobytovou část i spaní. Chatka a její obyvatelé vnesli do místa opět nalezený život, sad začíná rodit své plody, stará studna zásobuje vodou zahradu a na mostě usedlosti je venkovní kuchyně.
Více k tématu

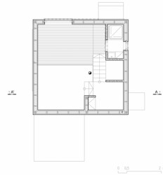
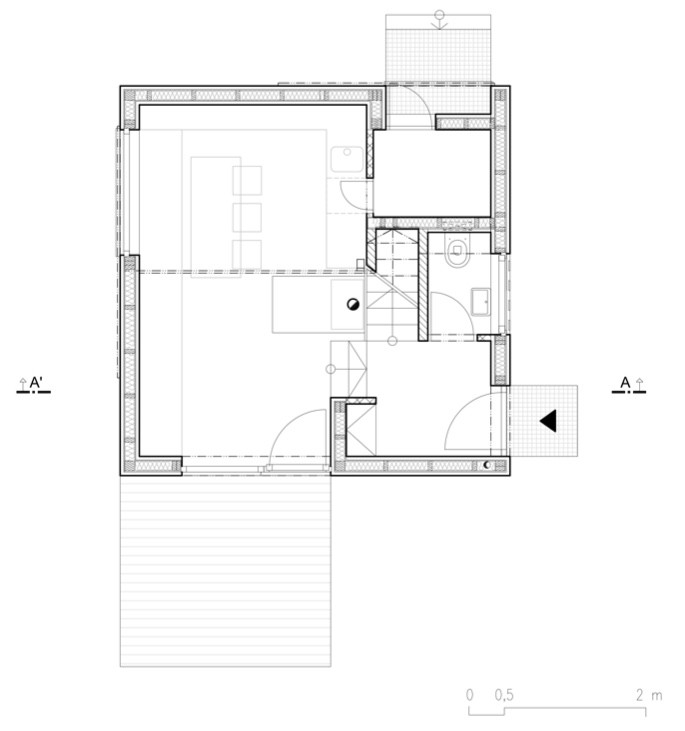
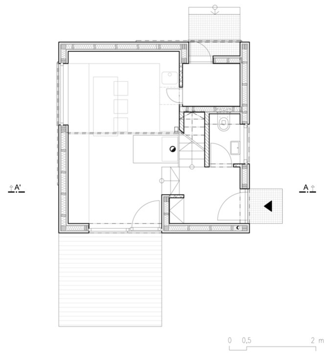
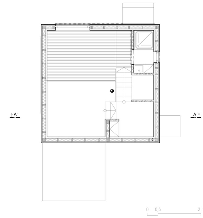
Dispoziční členění
Ze zádveří se po vyrovnávacím schodišti dostaneme do hlavního obytného prostoru s výstupem na venkovní terasu. Napravo od vstupu je toaleta a schodiště na mezonet se spaním a sociálním zařízením. Obytný prostor je propojen dveřmi s bočním vstupem se skladem. V podsklepené části je technická místnost.

Materiálové řešení
Chata je řešena jako dřevostavba na betonové podlahové desce a betonových základech. Dřevostavba je řešena jako hrázděná konstrukce s výplní z minerální vaty a bedněním stěn. Střecha je dřevěná trámová se záklopem. Střešní hydroizolace je z folie, izolace proti zemní vlhkosti je z asfaltových pásů. Sklep je vyzděn z betonových tvárnic. Podlahy jsou dřevěné s nášlapem z prken nebo ocelového plechu.
Technologie: ostrovní systém, fotovoltaické panely pro ohřev vody a elektřinu, vrtaná studna, jímka.


- Autoři: Hana Maršíková, Jitka Ressová
- Ateliér: Ellement
- Spolupráce: Martin Velecký, Kateřina Páterová, Ondřej Stolařík, Pavel Ohnoutek
- Země: Česká republika
- Generální dodavatel: LUMBER, s.r.o.
- Město: Liptál
- Ulice, číslo: Usedlost Povalčice
- Datum projektu: 2016
- Realizace: 2017
- Plocha pozemku: 162.00m2