
Na skleněné chatě. Dům, kde se díváte na nebe přes průhlednou střechu
Víkendový dům Das Glashaus si postavila mladá rodina nedaleko Berlína. Lze si ho také pronajmout a pozorovat v proskleném podkroví tanec světla a stínů, západy slunce i noční oblohu.
EARCH.CZ , 18. 12. 2023
Víkendový dům „Das Glashaus“ čili "skleněný dům" nabízí celoroční únik z města. Vyrostl v malé německé vesnici, navrhl ho Sigurd Larsen, dánský architekt žijící v Berlíně. O architektuře domu vypovídá již samotný název. Sklo zde totiž sehrálo významnou roli. Dům nabízí možnost strávit čas mimo město – v přírodě nedaleko lesa a jezera, s nimiž je tu člověk pořád v kontaktu.
Více k tématu
Víkendový dům v okrese Uckermark od studia Sigurd Larsen vyrostl ve vesnici severně od Berlína. Navržen byl pro mladou rodinu, která ho ale i celoročně pronajímá. Archetypální stavba uprostřed lesů a jezer vítá rodiny, páry nebo přátele a poskytuje jim krátký únik z města i delší dovolenou. Skleněný dům je otevřený v každém ohledu.
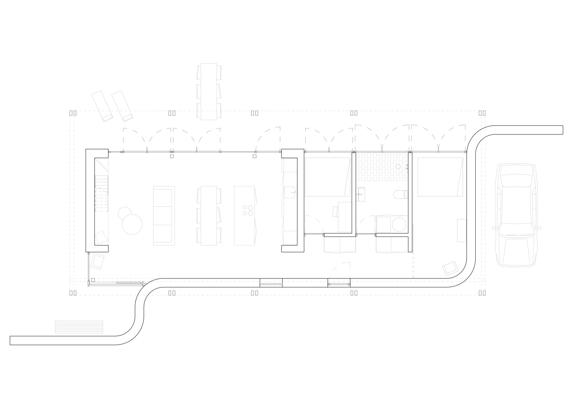
Prostý obdélníkový půdorys domu architekt doplnil prohnutou stěnou, která vytváří soukromí směrem od silnice. Všechny místnosti v domě se orientují do otevřené krajiny na západ a mají přístup na velkou krytou terasu.

Architekt Larsen zvolil pro ložnice poměrně nezvyklé uspořádání. Lůžka se nacházejí hned u francouzského okna. Postel je tak přístupná jak z interiéru, tak přímo z venkovní terasy. Stejný princip autoři použili i v koupelně. Sprchový kout je tedy také přístupný zvenčí. Díky takto netradiční dispozici vznikl živý otevřený prostor na pomezí interiéru a exteriéru, ve kterém mohou hosté pohodlně trávit čas v bezprostředním kontaktu s okolní přírodou.

Hranice mezi vnitřním a vnějším prostorem se rozvolňují i jinými způsoby. Obytná místnost má stěny z cihel, které se propisují z exteriéru do interiéru a dům tak působí sjednoceným dojmem. Obytný prostor s kuchyní navazuje přes velkoplošné prosklení na terasu. Zakřivená zeď směrem na východ ustupuje a vytváří tak malý dvorek chráněný před větrem, který probouzí první ranní paprsky.
Celé druhé podlaží domu nabízí odpočinek přímo pod dřevěným krovem střechy, který skrze celoprosklenou západní část střechy vyhlíží okolní pole a lesy. Polykarbonátová východní část střechy zase zajišťuje velkolepou hru se světlem, stínem a měnícími se barvami při západu slunce. Každý den hraje jedinečná střecha domu jinými barvami a poskytuje nový zážitek.

Architektovi Sigurdu Larsenovi se povedlo navrhnout víkendový dům, kde v teplých měsících splývají vnitřní prostory se zahradou definovanou zakřivenou zdí. V zimě se naopak kompaktní izolovaný dům stává útulným a intimním místem, ze kterého se dá pozorovat okolní zasněžená scenérie panoramatickými okny. Das Glashaus dokazuje, že i archetypální prvek jako je sedlová střecha, lze pojednat netradičním způsobem a dosáhnout tak jedinečného zážitku.
- Autoři: Sigurd Larsen
- Země: Německo
- Realizace: 2022
- Fotograf: Tobias König a Michael Romstöck
- Užitná plocha: 113 m² + 70 m² podkroví