Obnova, záchrana, adaptace. Španělští architekti proměnili historickou továrnu na čokoládu na rodinnou rezidenci
Bývalá továrna na čokoládu v centru malého španělského města prošla transformací podle návrhu regionálního ateliéru Anna & Eugeni Bach. Nové úpravy uzpůsobily objekt z 19. století plnohodnotnému bydlení, přičemž došlo k zachování původního konstrukčního rázu domu s nenahraditelnou atmosféru. Na probuzení stavby mělo také velký vliv přísun přirozeného světla, které zalilo interiéry všech třech podlaží.
Tereza Hůrská , 10. 3. 2020
Španělské slunce dosahuje zenitu, vší silou se opírá do staré zdi a pomalu se svými paprsky natahuje až do útrob domů. Světlo putuje mezi stěnami, teče po schodišti, hraje si se stínem. Kamenné zdi, které toho už tolik pamatují, se stávají dějištěm dosud nepoznané hry světla a stínu.
Nacházíme se přímo v centru jedenáctitisícového severošpanělského městečka La Bisbal d´Empordá, kde už od 19. století stojí budova bývalé továrny na čokoládu, která se minulý rok opět probudila k životu. Ne však již jako výrobní objekt, ale jako obytný dům s netradiční průmyslovou atmosférou.
Za transformací bývalé čokoládovny stojí studio Anny a Eugeniho Bachových, které před rokem oslavilo dvacet let svého působení na architektonické scéně. Dvě desítky let společné tvorby přinesly tomuto finsko-španělskému páru řadu urbanistických, architektonických i designových projektů a konverze starého výrobního objektu mezi ně svým pojetím samozřejmě zapadá.
Více k tématu

K HISTORII S CITEM
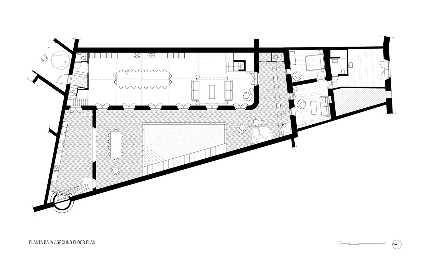
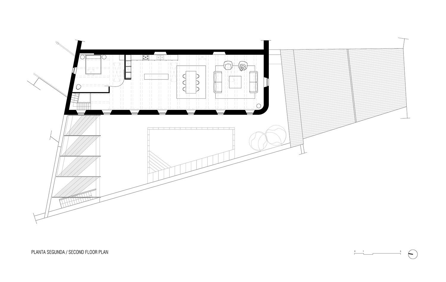
Projekt z La Bisbal představoval pro architekty nicméně velkou výzvu, jak přizpůsobit historický objekt v husté zástavbě malého historického města současným potřebám. Sami klienti chtěli přistoupit k objektu poměrně pietně a bylo tedy na architektech, aby svůj koncept rekonstrukce postavili na zachování původní atmosféry domu, kterou udává především jeho přírodní materialita. Architekti se museli vypořádat především se složitou konstrukcí stavby, neboť každé z trojice podlaží využívalo jiný systém nosných prvků – v přízemí se jednalo o kovové nosníky podpírající systém katalánských kleneb, druhé podlaží představovalo kombinaci kovových a dřevěných konstrukcí a nakonec střechu tvořila tenká deska z cihel krytá keramickými taškami.
Ve snaze zachovat původní kouzlo domu i po změně jeho funkce tak architekti přistoupili k projektu s náležitým citem. Původní konstrukce zůstaly zachovány a očištěny. Doplnilo je pouze několik současných prvků, jako například nové schodiště, které přispěly k lepšímu propojení a plynulosti prostor. Největší změnu objekt prodělal zejména v uzpůsobení interiéru reagujícím na vyvážení společenských a soukromých prostorů. Transformací prošly z hlediska využití také plochy v exteriéru, které reagují na teplé středomořské klima a dnes tak slouží jako venkovní kuchyň s jídelnou, krytá terasa a nechybí ani vodní plocha v podobě bazénku v centru pozemku.
Obdivuhodný je na práci studia Anna&Eugeni Bach nejen jejich přístup ke konstrukci a prostoru, ale také zacházení s materiálovou stránkou objektu. Původní kámen, dřevo a keramika, které dohromady tvoří typický příklad místní středomořské architektury, jsou doplněny soudobými prvky z betonu a kovu natřeného na pastelovou zelenou, jež se od staré vrstvy jasně odlišují – ovšem nenarušují ji. Všechny materiály zůstávají přiznané, nenásilný kontrast, který mezi starou a přidanou složkou v rámci objektu vzniká jen potvrzuje celkovou pravdivost, s níž architekti k projektu přistoupili.
- Spolupráce: Charline Boks, Project Architect
- Země: Španělsko
- Město: La Bisbal d’Empordà
- Realizace: 2019
- Užitná plocha: 550.00m2


