
Odhalený betonový strop dominuje zrekonstruovanému bytu v Bratislavě
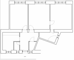
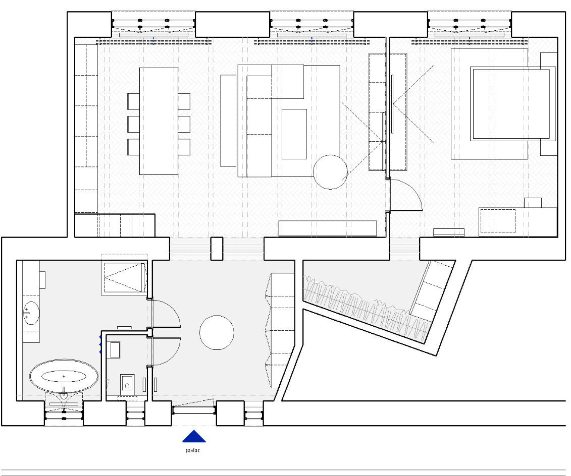
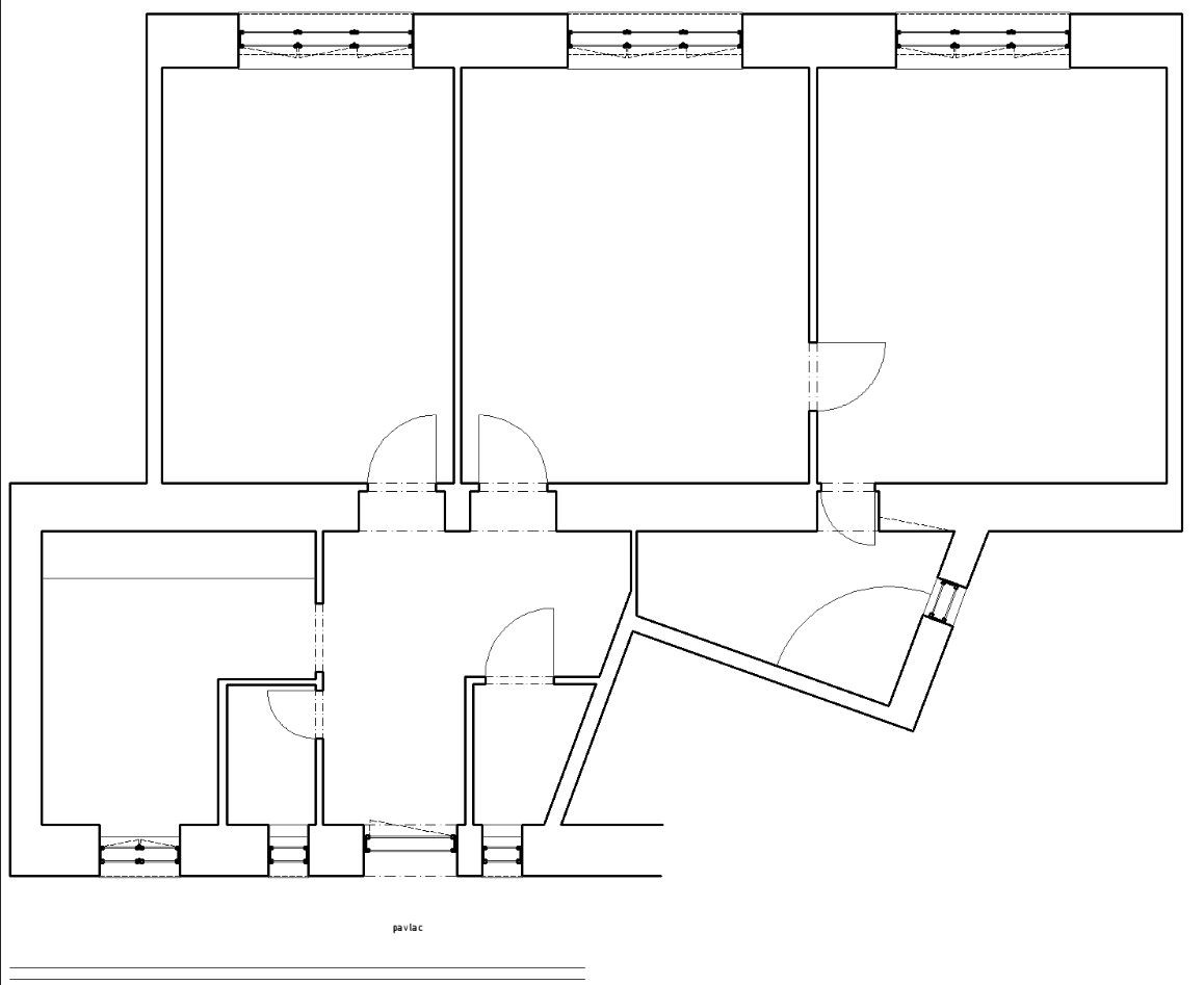
Aby vyhověl požadavkům současného stylu bydlení, navrhl architekt Branislav Bolco z bratislavského studia Cubedesign jednoduché změny v původním půdorysu bytu a z dříve rozdělených místností vytvořil jeden velkorysý otevřený prostor. Během rekonstrukce byly odrkyty některé původní povrchy, jako například žebrový betonový strop, které zůstaly v novém řešení interiéru viditelné.
Branislav Bolco / Cubedesign , 26. 7. 2018
- Ateliér: Cubedesign
- Země: Slovensko
- Město: Bratislava
- Realizace: 2018