Pražské Strašnice doplnil obytný soubor se zelenými střechami, obchodní pasáží i vnitroblokem
Celkem sedm bytových domů dohromady tvoří nové developerské projekty Green Port Strašnice a Rezidence Silver Port v pražských Strašnicích. Domy pomocí různých výšek reagují na urbanistický kontext lokality, kde vilová zástavba přechází ve vyšší obytné stavby. Stavby oděné do fasád ze světlého cihlové obkladu sdílí společný vnitroblok s parkovou úpravou.
EARCH.CZ , 12. 6. 2023 / Advertorial
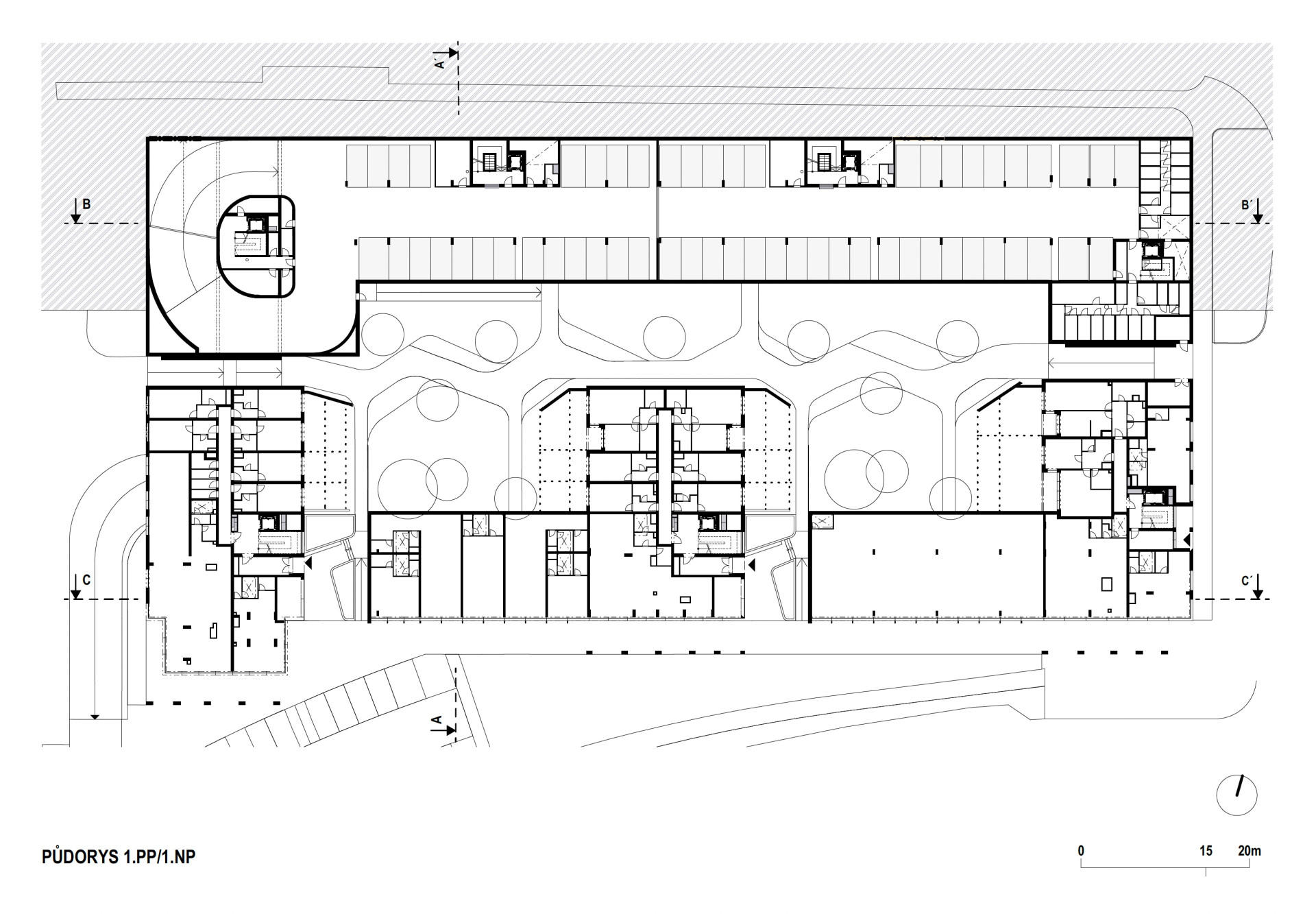
Na jedné straně dvou až třípodlažní vily, na druhé vysoké bytové domy. To je urbanistický kontext lokality pražských Strašnic, kde v posledních letech vyrostly nové rezidenční projekty developerské společnosti JRD Real Estate podle návrhu architektonického studia Podlipný Sladký architekti. „Obytný soubor je navržen ve formě polouzavřeného bloku s veřejně přístupným parterem, který je tvořen jednotlivými vzájemně navazujícími hmotami bytových domů a obchodních prostor,“ popisují základní schéma projektu architekti.
Více k tématu
Přestože je projekt rozdělen do dvou částí nazvaných Green Port Strašnice, investora JRD Real Estate a Rezidence Silver Port investora Rezidence na Palouku s.r.o., která spadá pod společnost SUDOP Invest a.s., tvoří jeden ucelený urbanistický a architektonický celek. Názvy jsou inspirované sídlem České námořní plavby, která se na pozemcích dříve nacházela. Tématika námořnictví se pak propisuje také do názvů jednotlivých domů podle konkrétních světových přístavů, např. Hamburk, Amsterdam, Barcelona, i do detailů společných prostorů budov a parteru.
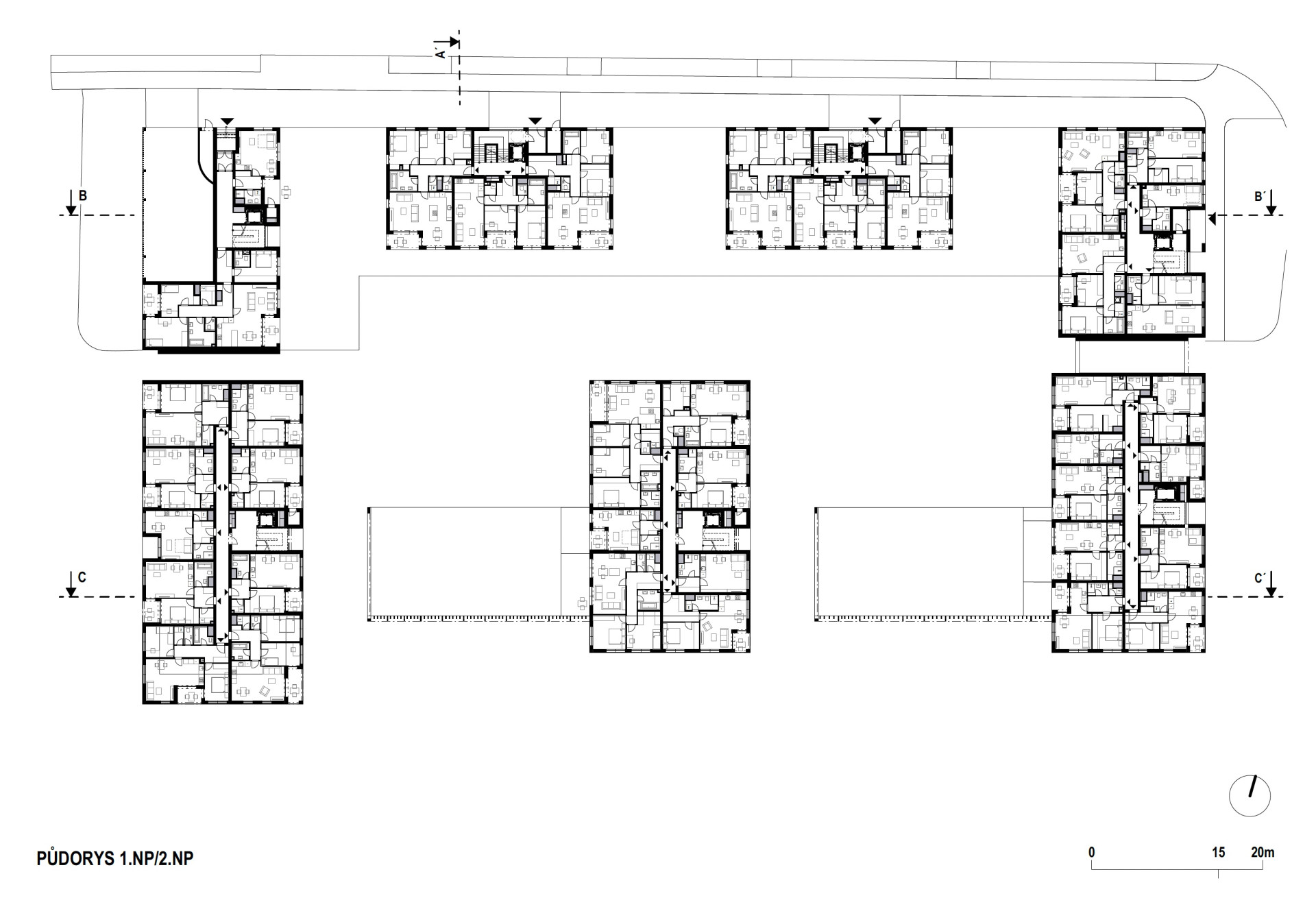
V severní části pozemku se nachází projekt Rezidence Silver Port tvořený čtyřmi bytovými domy usazenými na společné podnoži polozapuštěných podzemních garáží. „Tyto objekty jsou nižší (4+1 NP) a v rámci celého záměru vytváří plynulý přechod k zástavbě v ulici Počernická, kde jsou na druhé straně ulice již postaveny bytové domy o vyšší podlažnosti,“ vysvětlují architekti.

Jižní část pak zaplňuje trojice vyšších staveb (7+1 a 5+1) které jsou vzájemně propojeny kolmo orientovaným jednopodlažním křídlem obchodních a nebytových prostor vykazujícím městotvorný charakter. „Hmoty jednotlivých bytových domů jsou v úrovni 2. NP vykonzolovány přes obchodní parter v přízemí a vytváří tak dojem podloubí. Dům na jihozápadě půdorysně mírně předstupuje a pohledově tak uliční frontu uzavírá a reaguje na oblý tvar ulice Počernická,“ upřesňují autoři návrhu. „Obytný blok je ve směru východ-západ průchozí ve formě dvou velkorysých průchodů na výšku dvou podlaží z ulice Na palouku a Nad Vodovodem.“
Všechny domy pracují se stejnými architektonickými prvky. Jedná se o jednoduché kubické hmoty s obvykle jedním ustupujícím podlažím, které mají pravidelný rastr fasád s okny a nikami lodžií. Exteriér budov pracuje především se dvěma materiály tvořícími barevný kontrast. Fasády jsou obloženy světlými cihelnými pásky se strukturovaným povrchem Stiltreu DF 4074 silber grau used look od společnosti Klinker Centrum, ve kterých vynikají lodžie s hladkou tmavou omítkou.

Většinu pohledově exponovaných střech pokrývá vegetace, celkem jde o bezmála tisíc metrů čtverečních zelených střech. Prostorný vnitroblok je zpracován do podoby klidného parku se širokým chodníkem navazujícím na dva průchody celým blokem. Zajímavostí jsou také budky pro rorýse obecného, které jsou integrovány přímo do izolace budov.
- Ateliér: PS_A
- Země: Česká republika
- Město: Praha
- Celková plocha Green Port: 9004 m²
- Celková plocha Silver Port: 5352 m²
- Investor Green Port: JRD Real Estate
- Investor Silver Port: Rezidence na Palouku s.r.o.
- Projekt: 2017
- Realizace: 2022