
Šetrný modulární domek nad útesem postavili za šest týdnů
Australské společnosti ArchiBlox zaměřující se na prefabrikované modulární stavby zabrala příprava i samotná výstavba rodinného domu nad pobřežním útesem v Sydney necelých devět měsíců. Nenápadný a šetrný objekt se zelenou střechou zachytávající dešťovou vodu nabízí na relativně skromné ploše vysoký komfort bydlení.
EARCH.CZ , 6. 1. 2020
Dům se nachází na útesu Avalon Beach Cliffs v australském Sydney, odkud se otevírá výhled na vyhlášená místa pro surfování. Vzhledem k podloží mírného svahu útesu dům stojí na konstrukčních podpěrách, aby pod ním mohla přirozeně protékat voda a nedocházelo k narušení terénu.
Za návrhem i realizací domu stojí australská společnost ArchiBlox, která jej stejně jako ostatní objekty ve svém portfoliu zhotovila jako modulární prefabrikát. Výroba domu tedy probíhá v továrně a na samotné parcele dochází pouze k rychlému smontování připravených částí. Díky tomu měla výstavba jen malý dopad na místní krajinu. Fáze návrhu trvala dva měsíce, získávání povolení pět měsíců a samotná instalace domu na parcele pak zabrala pouhých šest týdnů.
Více k tématu

Na ohleduplnost domu k životnímu prostředí mysleli jeho autoři také v dalších rovinách. Na rozdíl od většiny sousedních staveb je dům orientován podél pobřeží s hlavní fasádou na sever, což umožňuje dobré provětrávání interiéru díky proudům vzduchu od pobřeží i prosvětlení severním sluncem (vzhledem k podmínkám jižní polokoule). Zelená střecha pak zachycuje drahocennou dešťovou vodu do velkých nádrží a zároveň zmírňuje jeho vizuální dopad na okolí.
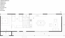
Majitelé, kteří předtím žili v Japonsku, požadovali zařídit interiér v modré a oranžové jako reakci na pískové pláže a oceán. Ovlivnění japonskou kulturou se podle autorů projevilo v celkových požadavcích na maximální jednoduchost domu včetně například obkladu koupelny porcelánovými dlaždicemi imitujícími dřevo. Pro obklad domu autoři použili vlnitý plech vhodný pro přímořské oblasti a tvrdé dřevo pocházející z nedalekých lesů.


- Země: Austrálie
- Generální dodavatel: ArchiBlox
- Město: Sydney
- Datum projektu: 2015
- Realizace: 2015
- Zastavěná plocha: 106.00m2