Architektura / rodinné domy

Široký záběr

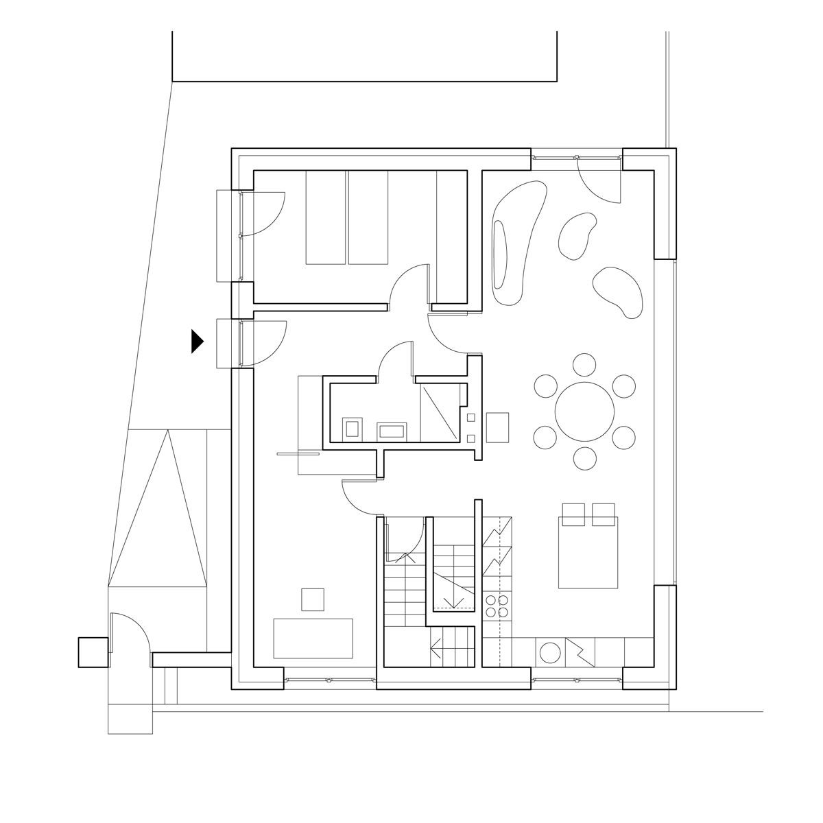
Za rozměrným oknem rekonstruovaného statku ve Žloukovicích se stihlo vystřídat již několik ročních období, jeho obyvatelé tak jistě poznali krásu rozhledu po širé krajině, kterou jim nabídl zásah studia Edit! Samotný prožitek však zůstává stejně silný, a to i v opačném směru, z pohledu zvenčí. Drobnými, ale perfektně zacílenými změnami dostal dům moderní vzhled, a přitom zůstal nadále venkovský, zapadající do kontextu.

edit! architects , 20. 12. 2016

  • Ateliér: edit! architects
  • Autoři: Ivan Boroš, Juraj Calaj, Vítězslav Danda, Lenka Míková
  • Země: Česká republika
  • Město: Nižbor
  • Ulice, číslo: Žloukovice
  • PSČ: 267 05
  • Suma: 3 200 000.00
  • Měna: CZK
  • Datum projektu: 2010
  • Realizace: 2011
  • Užitná plocha: 160.00m<sup>2</sup>
  • Zastavěná plocha: 100.00m<sup>2</sup>
  • Foto ©: Michal Šeba

Mohlo by vás zajímat

Generální partner
Hlavní partneři