
Škola kontrolórka. Budova v Hrdlořezích umí hlídat vnitřní mikroklima, hospodaření s energiemi i žáky, jestli chodí do školy
Původně byla šedo-oranžová, dnes je šedo-dřevěná. Na obálce, která za sebou skrývá konstrukci ze 70. let, hodně záleží. Školní budově totiž pomáhá být energeticky šetrnou, v tomto případě dokonce energeticky plusovou. Za rok si vyrobí více energie, než spotřebuje.
Adéla Vaculíková , 2. 8. 2023 / Advertorial
Na střeše má fotovoltaiku s bateriovým úložištěm, vytápění, ohřev vody a chlazení zprostředkovávají dvě tepelná čerpadla. 70 % chlazení si ale dokáže zajistit pasivně, je vybavená inteligentním systémem pro větrání a rekuperaci. Má taky žaluzie, které se samy zatáhnou, když je potřeba. Budova školy v pražských Hrdlořezích je nadprůměrně chytrá, někdo by mohl namítnout, že až přechytralá. Má dokonce přehled i o tom, kolik se v ní nachází lidí, a pokud žák nedorazí na výuku, rodiče dostanou upozornění.
Automatický řídící systém primárně řeší mikroklima uvnitř budovy. Díky němu tak nehrozí, že by v nějaké třídě bylo příliš vydýcháno, horko nebo zima. Zkrátka nastavuje ideální studijní podmínky v závislosti na rozvrhu učeben. U příjemného vnitřního klimatu to ale nekončí, budova totiž dokáže vyhodnotit i to, kolik energie ke svému provozu potřebuje. „Inovativní systém řízení předpovídá a doporučuje nákup a prodej elektřiny. Spotřebu budovy zná den dopředu,“ říká Jiří Tencar, projektant a energetický specialista z firmy ECOTEN, která školu vyprojektovala.
Více k tématu
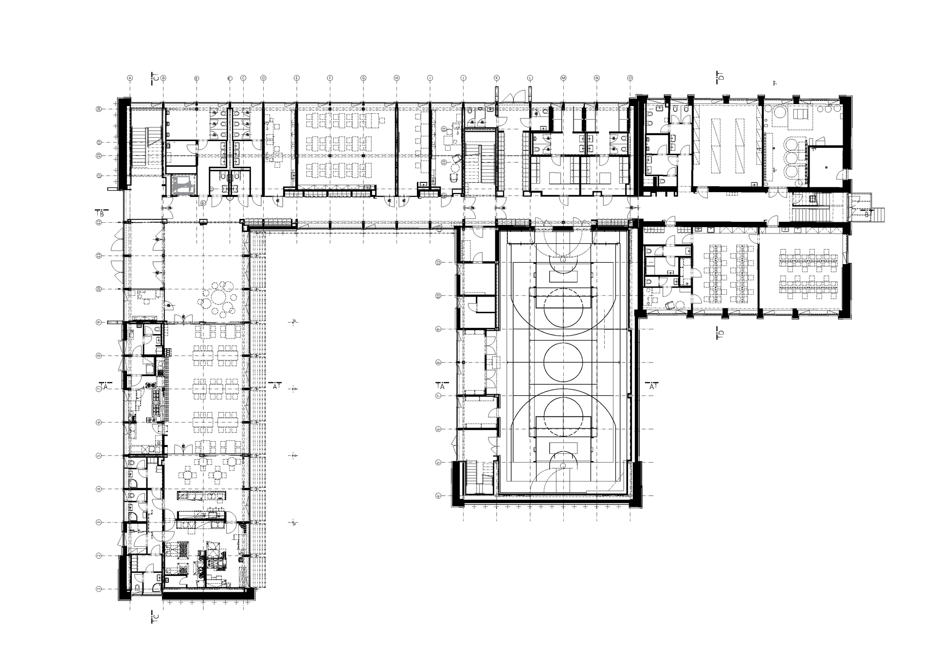
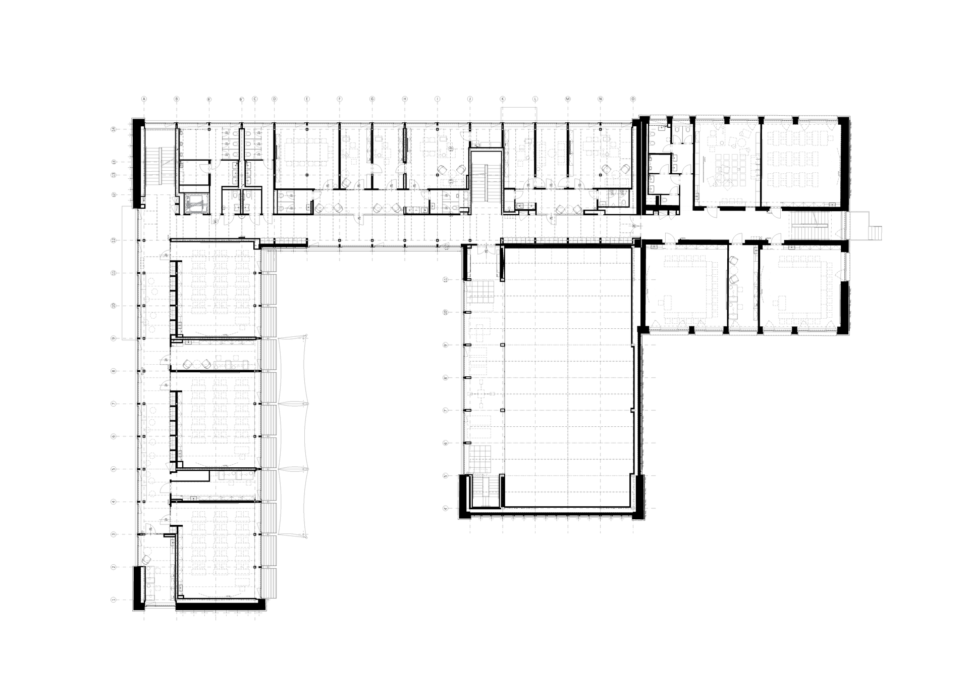
V budově sídlí Střední odborná škola – Centrum odborné přípravy a Gymnázium. Navržena byla tak, aby dobře sloužila širokému spektru oborů – od těch učňovských až po gymnaziální. „Celý prostorový koncept staví na transparentnosti, která by měla být u veřejných institucí prioritou, kompletní bezbariérovost je samozřejmostí,“ říká Jiří Tencar. Interiéry jsou pojaty vzdušně, ze tříd a kabinetů se vstupuje do prostorných chodeb. Pracovalo se také s průhledy a skleněnými příčkami. Škola na Českobrodské ulici má vše, co potřebuje, mimo učeben a kabinetů taky tělocvičnu a místa pro relaxaci.
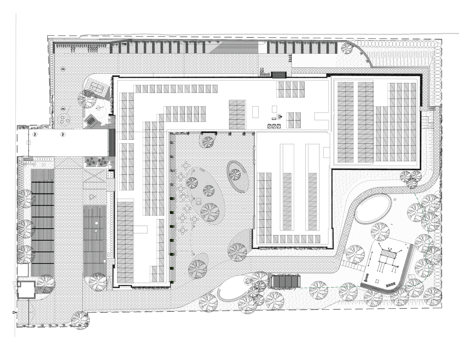
Příjemně působí třeba atrium, kde je hodně zeleně. S tou se ve škole pracovalo na několika místech – vegetační jsou všechny střechy, po fasádách rostou popínavé rostliny, kolem budovy jsou rozmístěné zatravněné ostrovy, kde jednou vzrostou stromy. Všechny povrchy jsou schopné vsakovat dešťovou vodu, ta přebytečná pak putuje do akumulační nádrže, odkud se dále využívá k zavlažování, nebo do nádrže retenční. Politika hospodaření s vodou je ve škole samostatným tématem. Například se pracuje i s takzvanou šedou vodou – tedy tou použitou ve sprchách a umyvadlech. Následně se čistí a využívá ke splachování toalet.

Budova školy na Českobrodské ulici pochází ze 70. let a před rekonstrukcí byla mimořádně nehospodárná. Postupně se z její konstrukce sundalo úplně všechno. V plášti a stropech se navíc našel azbest, takže znovupoužít některé materiály nebylo možné. Zůstala však původní konstrukce, která určila i dnešní hmotové rozvržení stavby. Konstrukci vůbec poprvé obalil lehký obvodový plášť panelového typu na bázi dřeva ENVILOP. Ten je výsledkem českého aplikovaného výzkumu na ČVUT v Praze a vyvinutý jako náhrada boletických panelů, které se používaly od 60. let a na škole v Hrdlořezích byly taky. Pro povrchovou úpravu ENVILOP autoři rekonstrukce zvolili vláknocementové fasádní desky Swisspearl Patina Original (dříve Cembrit) a dřevěný obklad, konkrétně rombusové tyče ze sibiřského modřínu bez povrchové úpravy. „Hlavním důvodem pro použití těchto materiálů byla architektura a výraz budovy. Primární myšlenkou bylo akcentovat přírodní materiál fasády, tedy že je dřevěná. Vláknocementovými deskami jsme vytvořili vizuální odlišení funkcí a akcenty, jsou také na zděných částech skeletu a na tělocvičně. Na průčelích a vedle vstupu do školy jsou u vláknocementu konstrukce pro popínavé rostliny,“ popisuje Jiří Tencar.

Realizace je z hlediska použitých materiálů a inteligentních systémů netradiční a výsledky úspěšnosti ještě zhodnotí čas. „Budova slouží jako živá laboratoř pracující s velmi rozsáhlým objemem provozních dat, která jsou využívána pro další výzkum a hodnocení provozu budovy,“ říká Jiří Tencar. Jako vůbec první ovšem dosáhla enviromentální certifikace v podobě zlatého certifikátu SBToolCZ – „národního českého certifikačního nástroje pro vyjádření úrovně kvality budov, a to v souladu s principy udržitelné výstavby“. Projekt byl oceněn také v posledním ročníku soutěže Adapterra Awards, která oceňuje realizace přispívající svými adaptačními schopnostmi k ochlazování měst a zadržování vody v krajině, projekt školy v Českobrodské ulici konkrétně zvítězil v kategorii Zastavěná území.
- Autoři: Jiří Tencar, Pavel Šulc, Jiří Škopek, Michaela Václavská, Norbert Glejdura, Marek Machač, Lukáš Skládal, Ondřej Fábry, Václav Mašek, Petr Ducháček, Petr Jakovec, Lucie Roubalová, Monika Hrubešová, David Nývlt, Patricia Sičáková, Karolína Vojáčková, Ondřej Kramer
- Ateliér: ECOTEN
- Země: Česká republika
- Adresa:: Českobrodská 362/32a, 190 00 Praha 9
- Investor: Hl. město Praha skrze Střední odborná škola – Centrum odborné přípravy a Gymnázium Poděbradská 179/1, 190 00 Praha 9
- Fotograf: Martin Micka
- Dodavatel: SUBTERRA a.s.
- Realizace: 2019–2022
- Při realizaci byly použity produkty Swisspearl: fasádní desky Swisspearl Patina Original, barva P 070