
Škola v korunách stromů a rozpočtu navzdory
Mezi finalisty ceny Miese van der Rohe pro rok 2017 se probojovala i základní škola v dublinském Inchicore. Její stavba se potýkala nejen se stísněným školním pozemkem, ale i s omezeným rozpočtem a ekonomickými potížemi samotného Irska. I přesto se ale architektům podařil důstojný, až nevšední počin. Dětem, které se zde učí s výhledem do korun stromů, tak můžeme jenom tiše závidět.
Donaghy + Dimond , 15. 2. 2017
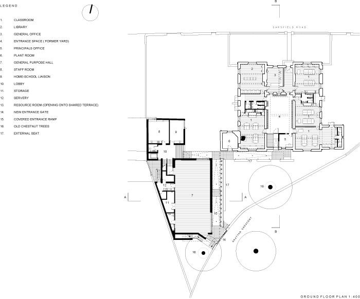
V projektu dostavby základní školy jsou starší školní budova z 19. stol. a školní dvůr předělány tak, aby s novou budovou tvořily tandem. Dohromady nově pojímají učebny, víceúčelový sál a prostory určené personálu, rodičům a dalším vzdělávacím aktivitám. Nová struktura má doplňovat a rozšiřovat starou školu a propojovat ji s městem a s místní komunitou.
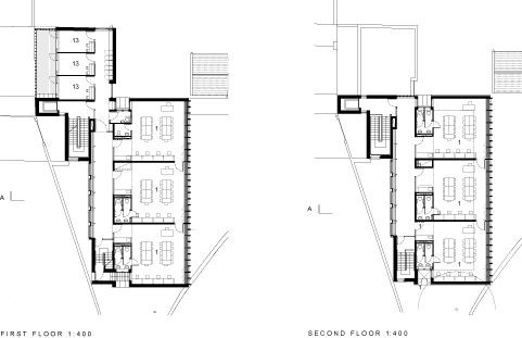
Škola se nachází na západním okraji dublinského centra. Vznikla jako součást občanské infrastruktury, jež byla budována společně s příchodem železnice do Irska, a měla sloužit právě místním železničářům v Inchicore. Úkolem architekta pak bylo opatřit školu novými třídami, inkluzivní studovnou, zařízením pro personál a víceúčelovým sálem, aby ulevil stísněné starší budově. Celý areál leží na sevřeném trojúhelníkovém pozemku, který je obezděný vápencovou zdí, ze dvou stran ohraničený silnicí a ze třetí strany železničářským domem. Na jihu školního dvora i za zdí se potom klene shluk kaštanů. Právě mezi nimi je nová budova umístěna, kolmo k té staré, a skrze novou bránu proraženou ve zdi zpřístupňuje dvůr i z jihovýchodu.
Kontakt novostavby s terénem je minimalizovaný, díky čemuž mohly být stromy zachovány a plocha dvora nezmenšena. Konzolová hmota učeben přesahuje školní zeď, přitahuje pozornost k novému vchodu a zároveň kryje bezbariérový přístup. Nadstavba nových tříd leží na zděné základně, která je provedena v podobném stylu jako zdi okolních staveb a která vyrovnává výškový rozdíl mezi ulicí a školním dvorem a skýtá prostor pro nový sál. Cihloví se vine dál ke schodišti, výtahu, studovně a místnostem pro personál, vstupuje dovnitř budovy a obklopuje předsíň. Podlaha a schody v ní jsou zhotoveny z leštěného betonu, zábradlí schodiště má sloupky z voskované měkké oceli, které byly zapuštěny do jednotlivých stupňů. Z tohoto robustního světa se vstupuje do učeben, rozevírajících se do baldachýnu stromů.
Bývalý vnitřní dvůr starší školní budovy je zastřešen a slouží jako nová vstupní hala, obklopená učebnami a umožňující pohledy vzhůru ke korunám stromů. Zároveň z nového nádvoří propouští mírné jižní světlo. Vstupní hala, takto otevřená k nebi, slouží dětem jako školka pro rostlinstvo a spojuje staré i nové nádvoří. Zadní dvorek se nově stává dvorkem předním a umožňuje, aby se kolem sedátek, na nádvoří, ve stínu stromů a vyčnívající hmoty nové školní budovy odehrával život žáků i místní komunity.
Nová školní budova je potom zhotovena z betonových panelů o vysoké nosnosti, jež jsou dále spojeny betonovou konstrukcí a pro tepelnou izolaci a celkovou pevnost stavby doplněny železobetonovými panely v podlaze a ve střeše. Nové, přečnívající učebny jsou pokryty deskami z kaštanu jedlého a východním směrem závěsnou dřevěnou fasádou. Slunolamy jsou vyladěny tak, aby bránily ostrému slunečnímu svitu ve třídách; zároveň prodlužují učební prostory do korun stromů. Jak se během roku střídají roční období a zabarvení listů, mění se dramaticky i atmosféra učeben. Kaštanové zhotovení rámů a opláštění je odolné a ponechané přirozenému stárnutí. Reaguje tak na své okolí a minimalizuje náklady na údržbu.
Hospodárnost celé konstrukce byla podstatným rysem celého návrhu, cena musela být v souladu se striktními vládními rozpočtovými normami a na reflektování statusu historicky významné starší školní budovy nezbývalo příliš prostředků. Samotné stavění bylo třeba rozložit do několika etap, aby mohla škola i při stavební činnosti dále fungovat. Doba stavby se tak chtě nechtě protahovala, a navíc byla podvázána ekonomickým poklesem Irska, kdy musel v průběhu realizace nastoupit nový zhotovitel, protože ten původní zbankrotoval.
Více k tématu
- Autoři: Marcus Donaghy, Will Dimond
- Ateliér: Donaghy + Dimond, Donaghy + Dimond
- Země: Irsko
- Město: Dublin
- Užitná plocha: 1 605.00m2
- Plocha pozemku: 3 190.00m2