
Starý kostel ve Skotsku potkaly výrazné moderní úpravy. Světlý interiér dnes využívá místní komunitní centrum
Kostel v Edinburghu prošel pod taktovkou lokálního studia výraznou transformací. Původní jednolodní prostor je dnes rozdělen na několik úrovní a dominuje mu dřevo. Pozornost padala také na otázku udržitelnosti – například hrotitá ostění oken vyplnila nová izolační dvojskla.
Adéla Vaculíková , 10. 1. 2023
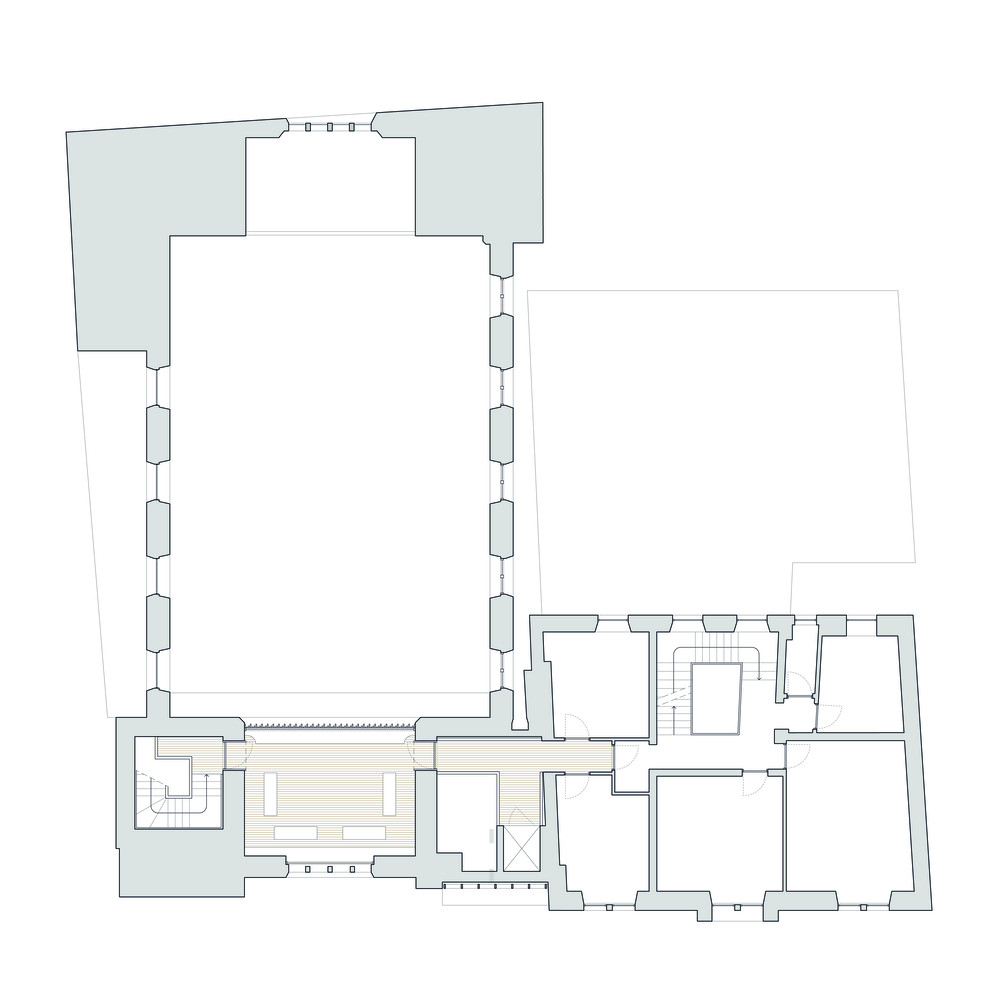
Greyfriars Charteris Center je komunitní centrum v Edinburghu, které našlo své útočiště v bývalém kostele uprostřed města. Sakrální stavba z roku 1913 sloužila svému účelu přesně sto let. Čtyři roky po jejím uzavření došlo k vypsání uzavřené architektonické soutěže na její rekonstrukci. Ačkoliv se dnes v budově nachází komunitní centrum a coworking, její původní poslání je stále patrné z exteriéru i interiéru.
Jednolodní kostel s věží v průčelí transformovalo lokální architektonické studio Konishi Gaffney Architects. Architekti se vydali cestou zachování původního hmotového rozložení stavby a výraznější vstupy provedli především uvnitř. Všechny nové doplňky také od původní struktury výrazně odlišili. Nově vybílenému interiéru tak dominují vestavby ze dřeva.
Více k tématu
Architekti nechali prostor uvnitř kostela rozdělit na několik nových úrovní. Jednotlivé místnosti navíc oddělili skleněnými příčkami v dřevěných nebo kovových rámech. Důležitým aspektem transformace se totiž stala propojenost a transparentnost. V průčelí kostela dokonce došlo k prodloužení spodních hrotitých oken tak, aby bylo do budovy z ulice dobře vidět. Všechny okenní otvory navíc dostaly nové dvojité zasklení, aby pomohly ke snížení tepelných ztrát. „Spolu s rozsáhlým využitím dřeva v projektu došlo k významnému zlepšení stávající budovy kostela z hlediska jejího vlivu na životní prostředí. To zahrnovalo i instalaci izolace v podkroví. Původní vytápění bylo nahrazeno účinným systémem a v celém kostele bylo instalováno nízkoenergetické LED osvětlení,“ dodávají architekti.

Součástí transformace bývalého kostela bylo rovněž vybudování nové přístavby. Ta zaplňuje proluku mezi kostelem a sousedními řadovými domy. Architekti ji pojali opět kontrastně – na první pohled ji odlišili od původního zdiva, a navíc tak akcentovali nový vstup do komunitního centra. Přístavba má dřevěnou konstrukci a je obložená teracovými panely. „Teracové panely jsou ve vyšších úrovních členěny řadou štíhlých dřevěných lamel, které dodávají fasádě rytmus a řád,“ popisují architekti. Uvnitř přístavby se pak nachází schodiště, které propojuje jednotlivá podlaží – nejnižší úroveň je věnovaná coworkingu, zbytek budovy funguje pro účely komunitního centra a jako zázemí pro konání akcí. Pro ty je možné využit třeba nový amfiteátr nebo společenský sál, který je vsazený přímo do kostelní lodi.
- Ateliér: Konishi Gaffney Architects
- Země: Velká Británie
- Město: Edinburgh