V Londýně přestavěli historický areál kostela na zahradní muzeum
V sousedství Lambethského paláce, sídla londýnského arcibiskupa z Canterbury, vytvořili architekti z kanceláře Dow Jones Architects nový multifunkční prostor Garden Museum. Původně anglikánský kostel Panny Marie v Lambeth přeměnili na galerii a areál kostela doplnili o menší pavilony sloužící jako kavárna či prostory pro výuku a společenské akce. Nová přístavba je obložena bronzovými šindeli, které svým vzhledem korespondují se starou kamennou budovu kostela i zelenými korunami okolních platanů.
EARCH.CZ , 18. 7. 2018
Z areálu Garden Museum se nabízí výhled na řeku Temži a parlamentní budovy. Objekt zároveň přiléhá k Lambethskému paláci, který je téměř 800 let londýnskou rezidencí arcibiskupa z Canterbury, hlavy anglikánské církve. Muzeum se nachází s odsvěceném, památkově chráněném kostele Panny Marie v Lambeth, čímž se jednoznačně vztahuje k historickému a kulturnímu kontextu místa i k okolním zahradám.
Více k tématu

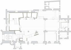
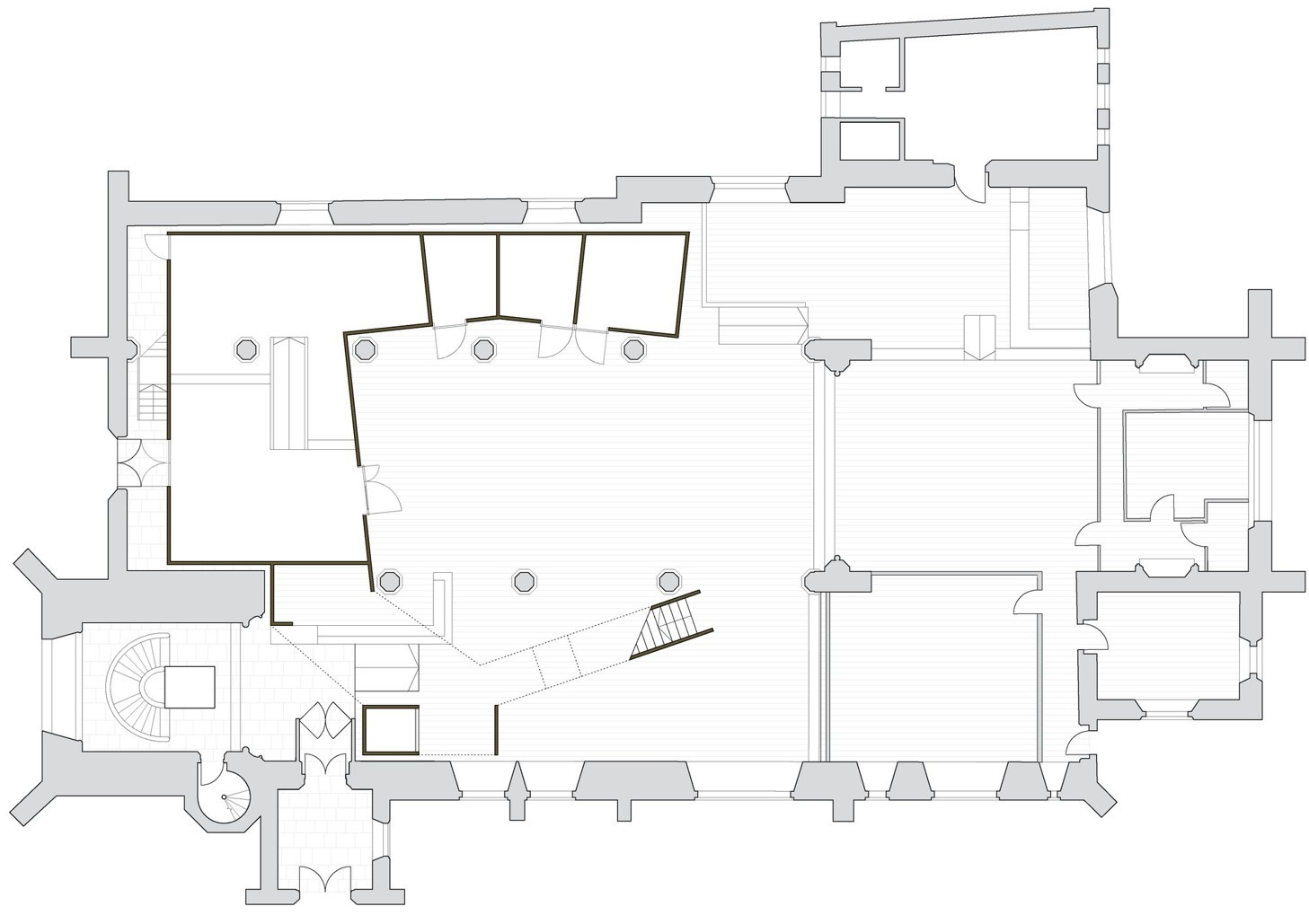
První fáze projektu z roku 2008 zahrnovala vytvoření dvoupodlažní galerie uvnitř kostela a dalších místností s kulturním a vzdělávacím využitím včetně uzpůsobení hlavní lodě kostela pro konání kulturních a společenských akcí. Úpravy výrazně podpořily rozkvět společenského života v celém areálu a již v prvním roce způsobily 400% nárůst počtu návštěvníků.
V rámci druhé fáze o došlo o pět let později k celkovému rozšíření muzea - a to jak v prostoru stávajícího kostela, tak i směrem do přilehlého hřbitova. Pavilony poskytují prostory pro výuku, společenské akce a kavárnu. Propojuje je prosklená chodba, rámující novou zahradu podle návrhu krajinného architekta Dana Pearsona.
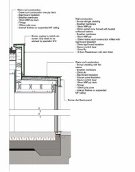
Pozemek historického areálu představoval řadu výzev. V návrhu tak architekti museli zohlednit několik chráněných stromů, historických hrobek, hřbitov s přibliže 36 000 těly i výhledy na Lambethský palác. Z těchto důvodů vznikla nová přístavba v podobě lehké dřevěné konstrukce stojící na tenkém betonovém základě o tloušťce 300 milimetrů, kterou architekti pokryli bronzem.
Pavilony jsou obložené zakázkovými bronzovými šindeli, které v určitém měřítku odrážejí kůru okolních platanů. Platany byly do Británie dovezeny královským botanikem Johnem Tradescantem, který je na místním hřbitově pochován. Kvůli tomu jsou tyto stromy pro celý areál zcela zásadním prvkem.
Aby se mohla prověřit vhodnost konkrétního obkladového materiálu, došlo přímo na pozemku k postavení makety fasády v měřítku 1:1. Z trojice testovaných materiálů mosazi, předoxidované mědi a bronzu byl nakonec vybrán poslední jmenovaný, jelikož se jeho barva vlivem počasí promění z jasně měděné na zemitě hnědou. Díky této barvě nová přístavba nenarušuje své okolí a naopak umožňuje ještě větší zdůraznění historických památek.
Překrývané bronzové šindele ve velikosti 950 x 450 milimetrů byly vytvarovány přímo na místě a upevněny na pružnou námořní překližku s oddělující průvzdušnou membránou. Šindele těsně obepínají fasádu, dotýkají se oken i štíhlé konstrukce střechy a vytvářejí tak čistý obrys. Bronzové šindele našly své uplatnění také v některých částech interiéru. Díky tomu dochází ke spojení vnitřních částí objektu s jeho okolím a zároveň se dokazuje, že moderní architektura nemusí být v konfliktu s cennými historickými památkami.
- Ateliér: Dow Jones Architects
- Země: Velká Británie
- Stavebník: Richardson Roofing
- Město: Londýn
- Ulice, číslo: Lambeth Palace Road
- PSČ: SE1 7LB
- Realizace: 2017
