
Víkendový dům u kanadského jezera sestává z pětice prefabrikovaných modulů
Když dorazilo 5 rozměrných modulů na své místo v kanadských lesích u jezera Manitou, byly už z větší části zařízené. Jejich usazení, vybavení a dotažení posledních úprav zabralo díky tomu jen několik týdnů. Při návrhu objektu architekti zároveň dbali na ekologicky co možná nejšetrnější řešení.
EARCH.CZ , 24. 11. 2020
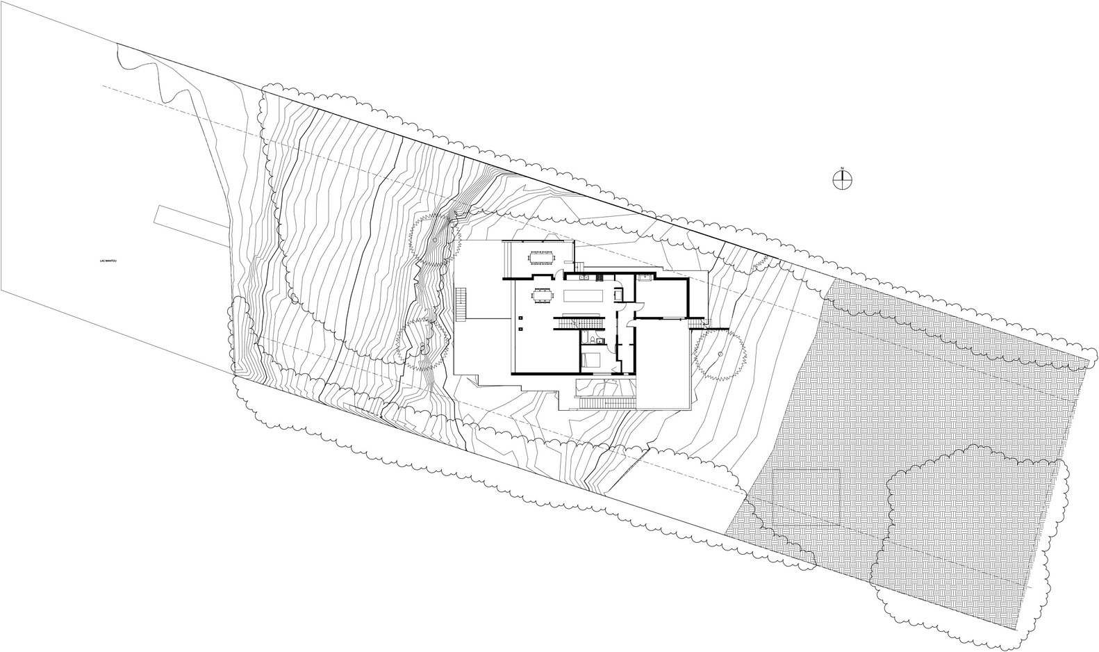
Malá kanadská obec Ivry-sur-le-Lac v provincii Québec patří mezi oblíbené rekreační oblasti – můžou za to místní husté lesy, romantické jezero Manitou i výhodné dopravní spojení. Obyvatelé Montréalu se sem navíc autem dostanou během jedné hodiny. Není proto divu, že na břehu jezera vyrůstá jedna chatka za druhou.
Více k tématu

Majitelé nového modulárního prefabrikovaného domu se k jezeru Manitou jezdí rekreovat už 25 let. Tehdy si tu koupili jednu starou chatu, která už jim ale v posledních letech nedokázala nabídnout požadovaný komfort, a tak se rozhodli pro stavbu nového objektu. A s tímto záměrem oslovili zaběhlé kanadské architektonické studio Figurr Architects Collective.
Aby celá akce zabrala co nejméně času a zároveň nemuselo dojít k výraznějším zásahům do krajiny, navrhli architekti chatu realizovat pomocí prefabrikovaných modulárních jednotek. Jednotlivé části tak byly vyrobené a částečně zařízené (podlahy, okna, izolace) už před převozem na pozemek, kde následně došlo k jejich usazení, smontování a vybavení.

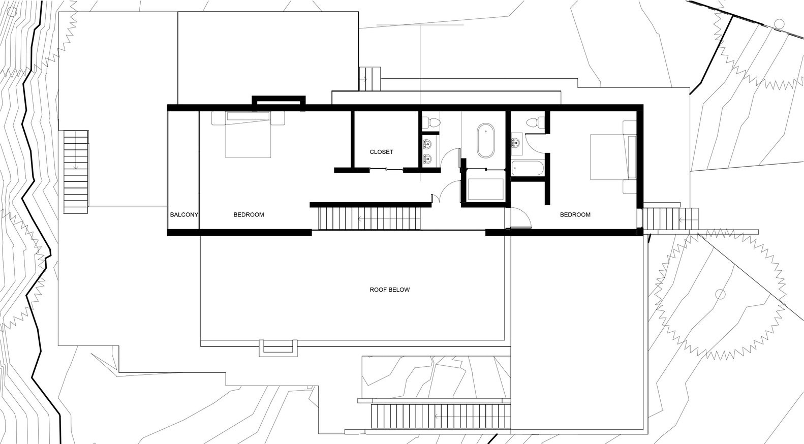
Celkem 5 modulů o délce 15 metrů poskytuje majitelům vysoký komfort v těsném kontaktu s přírodou. Dům nabízí celkem 3 podlaží. V přízemí najdeme otevřený společný prostor kuchyně, jídelny a obýváku, ložnici i dílnu s malířským ateliérem, horní podlaží nabízí dvě ložnice s vlastním sociálním zázemím a suterén patří dalším dvěma ložnicím s víceúčelovým prostorem.
Každé podlaží navíc svým obyvatelům nabízí přímý kontakt s venkovním prostředím. Interiér přízemí podstatně rozšiřuje velká dřevěná terasa, suterén je přímo napojen na zahradní patio, horní podlaží pak disponuje balkonem i přístupem na střechu modulu pod ním, která tak slouží jako terasa.

Důležitým kritériem celého projektu byla ekologická šetrnost řešení. Architekti proto využívali primárně lokální udržitelné materiály, velká okna umožňují dostatečný přístup přímého slunce do interiéru, čímž se snižují náklady na vytápění i svícení.


