Architektura / občanské stavby

Židovské komunitní centrum v Londýně

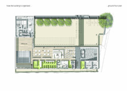
Mosaz představuje definující prvek – a to jak zevnitř, tak zvenku – tohoto nového londýnského kulturního a komunitního komplexu, který zde popisují architekti Lifschutz Davidson Sandilands.

Lifschutz Davidson Sandilands , 22. 10. 2015

  • Ateliér: Lifschutz Davidson Sandilands
  • Země: Velká Británie
  • Realizace: 2015
  • Město: Londýn
  • Ulice, číslo: 341-351 Finchley Road
  • PSČ: NW3 6ET
  • Realizace: 2015
  • Materiál: měď

Mohlo by vás zajímat

Generální partner
Hlavní partneři