
Zubní klinika od Studia Raketoplán vyrovnává výškovou rozdílnost jabloneckých ulic
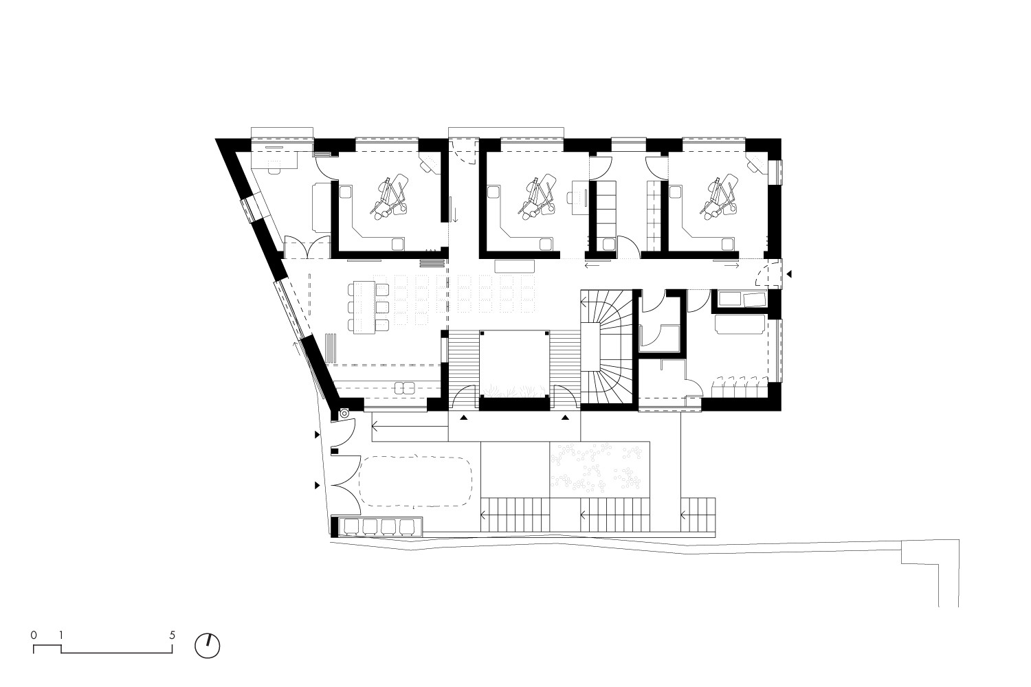
Sevřená mezi jabloneckými ulicemi, na místě bývalé sudetské zástavby, stojí nová zubní klinika od Studia Raketoplán. Kompaktní objekt svým nepravidelným tvarem vyrovnává výškovou nerovnost přilehlých ulic a stává se novou pokornou dominantou okolí. Vnitřní uspořádání kliniky pojali architekti jako malé město ukryté pod jednou střechou, které ožívá příchodem pacientů, drnčením telefonu na recepci i zvukem zubařské vrtačky. Interiér nabízí také pestrou paletu použitých materiálů od odhalených tvárnic a betonu po kámen a ořechové dřevo, které ovšem dohromady vytváří jednotný celek.
Studio Raketoplán , 25. 4. 2019
- Autoři: Pavel Nalezený, Radek Vaňáč
- Ateliér: Studio Raketoplán
- Spolupráce: Samuel Nekola, Tadeáš Pech, Adam Bažant, Michal Švec, Jana Kratochvílová, Zuzana Ficalová, Šimon Marek
- Země: Česká republika
- Město: Jablonec nad Nisou
- Ulice, číslo: Nad Mlýnem, 5322/22
- PSČ: 46601
- Realizace: 2018
- Užitná plocha: 293.00m2
- Zastavěná plocha: 267.00m2
- Plocha pozemku: 745.00m2
- Poznámka: Grafický design - David Březina, Zuzana Kubíková (ExLovers)