Byt na Žižkově / Koněvova

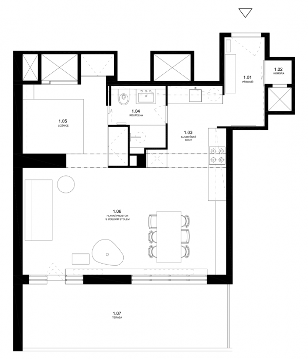
Původní byt s dvěma regulérními pokoji, z nichž jeden byl rozdělen SDK příčkou na kobercové pásce na dva minipokoje, doplňovala samostatná toaleta, koupelna a kuchyně v chodbě. Během stavby nezůstalo nic z toho. Do volného prostoru zasahoval pouze komín a uprostřed stál osamoceně a trochu nepatřičně jeden betonový sloup. Na konci je tento sloup zapojen do středového bloku, který je průchozí koupelna, ale také jediný dělící prvek v prostoru bytu. Za komínem se vymezil intimnější prostor pro ložnici.
Rozměry jsou kompaktní, ale velmi příjemné a postačující na 50 m2 byt. Díky otevření podbití stropu se ještě více akcentuje velkorysá výška prostoru 3,2 m a jedna otevřená místnost je pak lépe spojena s terasou a výhledem na vrch Vítkov. Beton odhalené nosné konstrukce nebyl pohledově čistý, proto jsme ho natřeli na bílou barvu. Díky tomu vynikla jeho struktura a do interiéru vnesla tvrdší dekor.
Materiály, které jsou použité v bytě, by se daly rozdělit do dvou skupin. Ty, co jsou původní nebo odkazují na dobu vzniku domu a ty, co jsou do prostoru vnesené jako nové.
Z původních materiálů se zachovalo terrazzo, které se ponechalo ve vstupní části a koupelně. Při rekonstrukci se objevily dubové vlysy v rybinovém vzoru. Nic neobvyklého, ale toto téma nám přišlo jako nosné a vzor jsme použili i na dubových prknech. Vznikl tak zvětšený formát parketové podlahy.
Docela jasnou představu jsme měli o pracovní desce v kuchyni. Musel to být mramor. Ten se použil i jako parapet pod okny. Svým charakterem a znovuobjevením ve 30. letech nám seděl do celkového konceptu bytu.
Nový materiál, který je asi v největší míře použitý v interiéru, je borová překližka, která je ošetřena přírodním černým voskovým olejem. Její dekor vytváří další grafickou strukturu v bytě. Je použita na kuchyňské lince, která přechází do hlavního prostoru jako knihovna, posteli a skříních, ale také skříni v koupelně.
Na policích v knihovně a v kuchyni jsou z 3 mm tlustého surového železa poličky. Surové železo je také na posuvných dveřích do komory, která je v předsíni. Koupelna je pak natřena voděodolnou tmavě tyrkysovou barvou. Barva se propisuje do hlavního prostoru v podobě kovových dveří. Jde také vidět za světlíkem, který je nad dveřmi a sprchovým koutem.
Zařízení interiéru a i všechny drobnosti v bytě jsou kombinací starých používaných věcí a nového designu. Například i do koupelny se vnesly staré prvky po naší babičce. Od starých Rako dlaždiček pod zrcadlem, které shodou náhod měli podobný odstín jako barva celé koupelny nebo umyvadlo ze 30. let (z bourané koupelny). Podnož pod umyvadlo je oproti tomu od designéra Michala Maláška. Nebo věčná židle 18 od Tonu a vedle ní židle Macao od Wiesner Hager.
Všechny použité materiály mají výrazné dekory nebo strukturu. I přes větší množství použitých odlišných dekorů se skvěle doplňují.
- Autoři: Markéta Bromová
- Ateliér: Markéta Bromová architekti
- Spolupráce: Lukáš Brom
- Země: Česká republika
- Město: Praha 3 - Žižkov
- PSČ: 130 00
- Datum projektu: 2013
- Realizace: 2015
- Užitná plocha: 50.00m2
- Foto ©: Veronika Raffajová
Související projekty
Související architekti
Související ateliéry a firmy
Mohlo by vás zajímat















