Koncepce domu vychází z přírodního prostředí. Nízká přízemní hmota je umístěna v zahradě mezi vzrostlými borovicemi tak, aby byly v co největší míře zachovány - vytváří vertikálu mezi horizontálami. Střecha domu je osázena zelení - trávy a byliny z okolí domu vytvářejí louku na střeše. Fasády domu jsou obloženy dřevem -  dřevo umocňuje splynutí s přírodním prostředím.

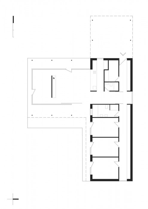
Dispozice domu je definována tvarem písmene L. Před vstupem do domu je řešeno parkování pod přístřeškem, ze zádveří je přístupná hala, která kříží provozy klidové a společenské části domu. Společenská část je tvořena otevřeným prostorem s funkcí jídelny, obývacího pokoje a částečně oddělené pracovny. Křídlo obytné části má celoprosklené stěny, které zcela propojují interiér se zahradou.  Ložnice, dětské pokoje a koupelna jsou přístupné z chodbové šatny v druhém křídle domu.

Dům je realizován z dřevěného fošinkového systému v kombinaci s ocelovými sloupy. Obvodovou stěnu tvoří dřevěné hranoly se ztužujícím záklopem z desek OSB, které byly na stavbu dováženy ve velkoplošných stěnových dílech. Zastřešení je provedeno z lepených nosníků s bedněním.

Stěny i střecha jsou zatepleny dřevovláknitou tepelnou izolací, zevnitř zaklopeny sádrokartonem. Vnější stěny jsou obloženy dřevěnými fošnami, fasáda i střecha jsou provětrávány. Vytápění domu je podlahové, doplněné o systém řízeného větrání s rekuperací tepla.

Generální partner
Hlavní partneři